GM Service Manual Online
For 1990-2009 cars only

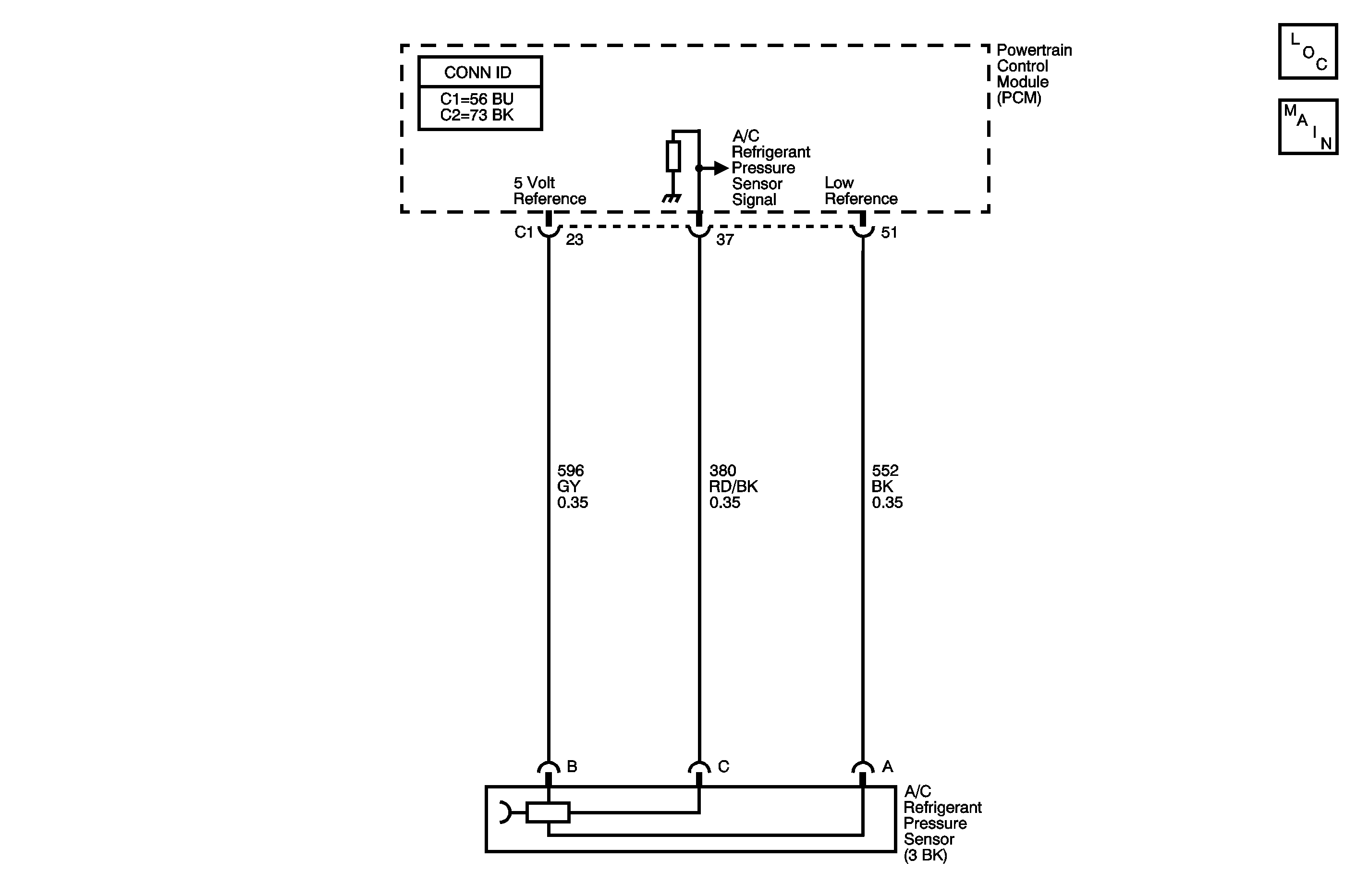
DTC P0530, P0532, or P0533 PCM, L61


Object Number: 1251153  Size: MF
Master Electrical Component List
A/C Compressor Controls- 2.2L

Circuit Description

The powertrain control module (PCM) monitors the high side refrigerant pressure through the A/C refrigerant pressure sensor. The PCM supplies a 5.0 volt reference and a low reference to the sensor. Changes in the A/C refrigerant pressure cause the A/C refrigerant pressure sensor signal to the PCM to vary. When the pressure is high, the signal voltage is high. When the pressure is low, the signal voltage is low. When pressure is high, the PCM commands the cooling fans on. When pressure is too high or too low, the PCM will not allow the A/C compressor clutch to engage.

Conditions for Running the DTC

    • Engine is running.
    • Any of the conditions for setting the DTC are met for 15 seconds.
    • Battery voltage is between 11 to 18 volts.

Conditions for Setting the DTC

    • The PCM detects that the A/C pressure is less than 0 psi (0.01 volts).
    • The PCM detects that the A/C pressure is more than 428 psi (4.92 volts).
P0530: The PCM detects a too low or too high signal on the A/C refrigerant pressure sensor signal circuit.

P0532: The PCM detects a low signal on the A/C refrigerant pressure sensor signal circuit.

P0533: The PCM detects a high signal on the A/C refrigerant pressure sensor signal circuit.

Action Taken When the DTC Sets

    • The PCM will not illuminate the malfunction indicator lamp (MIL)
    • The PCM stores the Failure Records.
    • The A/C compressor clutch is disabled.

Conditions for Clearing the DTC

    • The history DTC will clear after 40 consecutive ignition cycles have occurred without a malfunction.
    • The DTC can be cleared by using the scan tool.
    • The DTC will become history if the PCM no longer detects a failure.

Diagnostic Aids

Test the following conditions:

    • Visually inspect the sensor for contamination or damage.
    • Inspect for the following that may affect the sensors accuracy:
       - A malfunction within the refrigerant system causing high pressure.
       - Visually inspect the A/C components and lines for damage.
    • Refer to Testing for Intermittent Conditions and Poor Connections in Wiring Systems.

Test Description

The numbers below refer to the step numbers on the diagnostic table.

  1. Tests for the proper operation of the circuit in the low voltage range.

  2. Tests for the proper operation of the circuit in the high voltage range. If the fuse in the jumper opens when you perform this test, the signal circuit is shorted to ground.

  3. Tests for a short to voltage in the 5 volt reference circuit.

  4. Tests for a high resistance or an open in the low reference circuit.

Step

Action

Values

Yes

No

Connector End View Reference: HVAC Connector End Views

1

Did you perform the HVAC Diagnostic System Check?

--

Go to Step 2

Go to Diagnostic System Check - HVAC Systems - Manual

2

Important: The ambient air temperature must be above 4°C (40°F).

  1. Turn OFF the ignition.
  2. Inspect the A/C compressor for free rotation operation.
  3. Start the engine.
  4. Place the HVAC control module in the OFF position.

Does the A/C compressor operate?

--

Go to HVAC Compressor Clutch Does Not Disengage

Go to Step 3

3

  1. Install a scan tool.
  2. Turn ON the ignition, with the engine OFF.
  3. With a scan tool, observe the A/C Refrigerant Pressure-A/C High Side Pressure parameter in the powertrain control module or engine control module, General Info Inputs / Outputs data list.

Does the scan tool indicate that the A/C Refrigerant Pressure parameter is within the specified range?

0.1-4.9 V

Go to Diagnostic Aids

Go to Step 4

4

  1. Turn OFF the ignition.
  2. Disconnect the A/C refrigerant pressure sensor.
  3. Turn ON the ignition, with the engine OFF.
  4. With a scan tool, observe the A/C Refrigerant Pressure-A/C High Side Pressure parameter in the powertrain control module, General Info Inputs / Outputs data list.

Does the scan tool indicate that the A/C Refrigerant Pressure parameter is less than the specified value?

0.1 V

Go to Step 5

Go to Step 11

5

  1. Turn OFF the ignition.
  2. Connect a 3 amp fused jumper wire between the 5 volt reference circuit of the A/C refrigerant pressure sensor and the signal circuit of the A/C refrigerant pressure sensor.
  3. Turn ON the ignition, with the engine OFF.
  4. With a scan tool, observe the A/C Refrigerant Pressure-A/C High Side Pressure parameter in the powertrain control module, General Info Inputs / Outputs data list.

Does the scan tool indicate that the A/C Refrigerant Pressure parameter is greater than the specified value?

4.9 V

Go to Step 6

Go to Step 9

6

  1. Disconnect the fused jumper wire.
  2. Measure the voltage between the 5 volt reference circuit of the A/C refrigerant pressure sensor and the low reference circuit of the A/C refrigerant pressure sensor.

Does the voltage measure less than the specified value?

4.9 V

Go to Step 7

Go to Step 8

7

  1. Turn OFF the ignition.
  2. Disconnect the negative battery cable.
  3. Measure the resistance from the low reference circuit of the A/C refrigerant pressure sensor to a good ground.

Does the resistance measure less than the specified value?

5 ohms

Go to Step 13

Go to Step 12

8

Test the 5 volt reference circuit of the A/C refrigerant pressure sensor for a short to voltage. Refer to Circuit Testing and Wiring Repairs in Wiring Systems.

Did you find and correct the condition?

--

Go to Step 17

Go to Step 14

9

Test the 5 volt reference circuit of the A/C refrigerant pressure sensor for a short to ground, a high resistance, or an open. Refer to Circuit Testing and Wiring Repairs in Wiring Systems.

Did you find and correct the condition?

--

Go to Step 17

Go to Step 10

10

Test the signal circuit of the A/C refrigerant pressure sensor for a short to ground, a high resistance, or an open. Refer to Circuit Testing and Wiring Repairs in Wiring Systems.

Did you find and correct the condition?

--

Go to Step 17

Go to Step 14

11

Test the signal circuit of the A/C refrigerant pressure sensor for a short to voltage. Refer to Circuit Testing and Wiring Repairs in Wiring Systems.

Did you find and correct the condition?

--

Go to Step 17

Go to Step 14

12

  1. Disconnect the powertrain control module.
  2. Test the low reference circuit of the A/C refrigerant pressure sensor for a high resistance or an open. Refer to Circuit Testing and Wiring Repairs in Wiring Systems.

Did you find and correct the condition?

--

Go to Step 17

Go to Step 14

13

Inspect for poor connections at the harness connector of the A/C refrigerant pressure sensor. Refer to Testing for Intermittent Conditions and Poor Connections and Connector Repairs in Wiring Systems.

Did you find and correct the condition?

--

Go to Step 17

Go to Step 15

14

Inspect for poor connections at the harness connector of the powertrain control module. Refer to Testing for Intermittent Conditions and Poor Connections and Connector Repairs in Wiring Systems.

Did you find and correct the condition?

--

Go to Step 17

Go to Step 16

15

Replace the A/C refrigerant pressure sensor. Refer to Air Conditioning (A/C) Refrigerant Pressure Sensor Replacement in Heating, Ventilation and Air Conditioning.

Did you complete the replacement?

--

Go to Step 17

--

16

Important: Perform the programming procedure for the powertrain control module.

Replace the powertrain control module. Refer to Powertrain Control Module Replacement in Engine Controls-2.2 L.

Did you complete the replacement?

--

Go to Step 17

--

17

  1. Use the scan tool in order to clear the DTCs.
  2. Operate the vehicle within the Conditions for Running the DTC as specified in the supporting text.

Does the DTC reset?

--

Go to Step 2

System OK