GM Service Manual Online
For 1990-2009 cars only

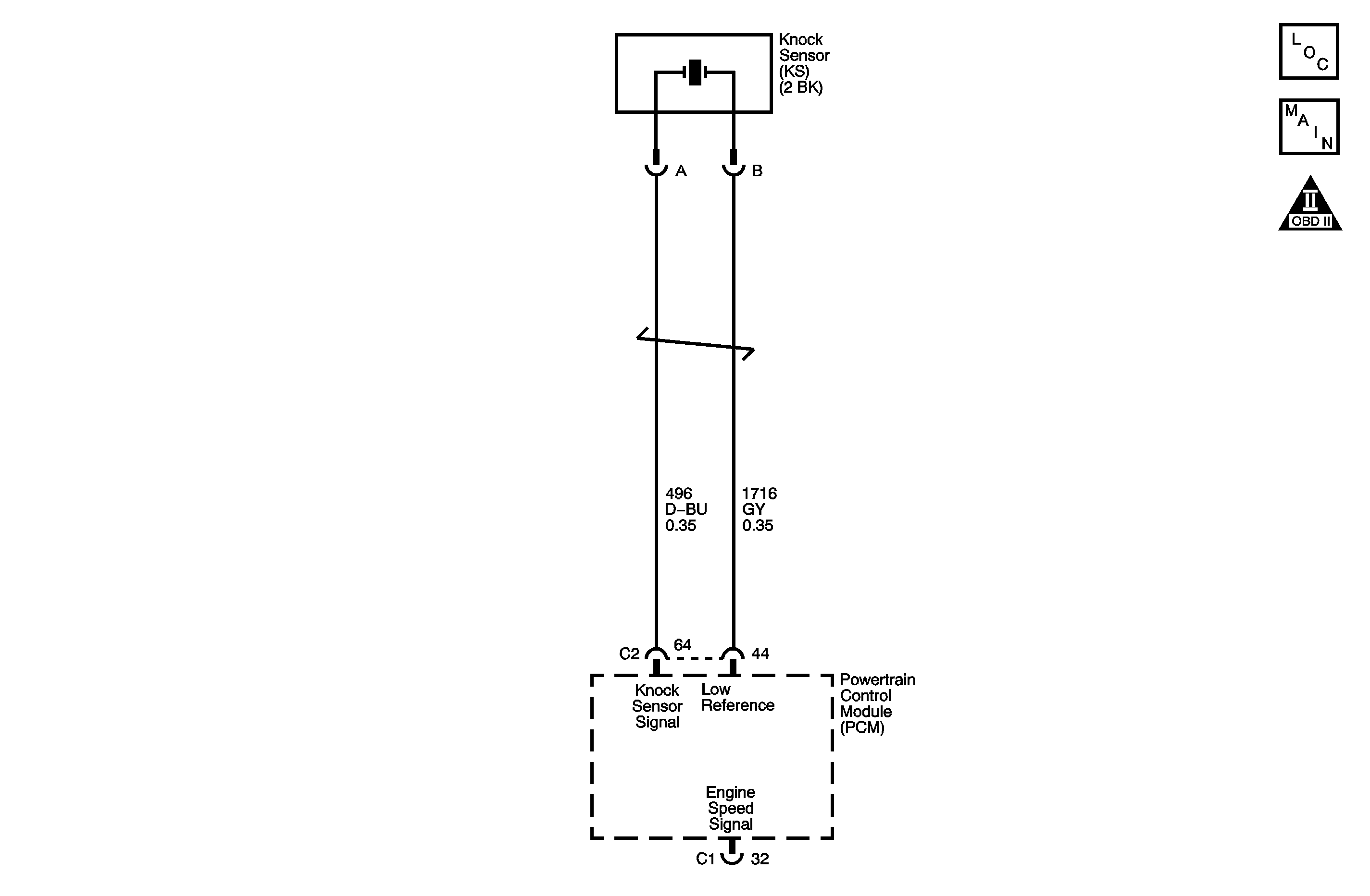
Object Number: 1246251  Size: MF
Engine Controls Component Views
Engine Controls Schematics

Circuit Description

The knock sensor (KS) system enables the powertrain control module (PCM) to control the ignition timing for the best possible performance while protecting the engine from potentially damaging levels of detonation. The KS is located on the intake side of the engine block. The KS produces an AC voltage signal that varies depending on the vibration level during engine operation. The PCM adjusts the spark timing based on the amplitude and the frequency of the KS signal. The PCM receives the KS signal through a signal circuit. The KS ground is supplied by the PCM through a low reference circuit. The PCM learns an average KS noise level using a calibrated average. The PCM should monitor a normal KS signal within the noise channel. When the PCM detects a KS signal that varies outside of the noise channel, the PCM will retard the spark timing until the knock goes away. If the PCM is operating on large amounts of spark retard and is unable to eliminate the knock, DTC P0326 will set.

Conditions for Running the DTC

The engine is running.

Conditions for Setting the DTC

    • The KS signal indicates an engine knock is present.
    • The PCM commanded spark retard at a given engine load and speed is more than the calibrated value.

Action Taken When The DTC Sets

    • The control module stores the DTC information into memory when the diagnostic runs and fails.
    • The MIL will not illuminate.
    • The control module records the operating conditions at the time the diagnostic fails. The control module stores this information in the Failure Records.

Conditions for Clearing the DTC

    • A last test failed, or current DTC, clears when the diagnostic runs and passes.
    • A history DTC clears after 40 consecutive ignition cycles if no failures are reported by this or any other non-emission related diagnostic.
    • Clear the DTC with a scan tool.

Step

Action

Yes

No

Schematic Reference: Engine Controls Schematics

Connector End View Reference: Engine Controls Connector End Views or Powertrain Control Module Connector End Views

1

Did you perform the Diagnostic System Check-Engine Controls?

Go to Step 2

Go to Diagnostic System Check - Engine Controls

2

  1. Inspect for a loose or broken vehicle accessory and/or accessory bracket.
  2. If a condition is found, repair as necessary.

Did you find and correct the condition?

Go to Step 4

Go to Step 3

3

  1. Start the engine.
  2. Inspect for excessive engine mechanical noise. Refer to Symptoms - Engine Mechanical in Engine Mechanical - 2.2L (L61).
  3. If a condition is found, repair as necessary.

Did you find and correct the condition?

Go to Step 4

Go to Detonation/Spark Knock

4

  1. Clear the DTCs with a scan tool.
  2. Turn OFF the ignition for 30 seconds.
  3. Start the engine.
  4. Operate the vehicle within the Conditions for Running the DTC. You may also operate the vehicle within the conditions that you observed from the Freeze Frame/Failure Records.

Does the DTC fail this ignition?

Go to Step 2

Go to Step 5

5

Observe the Capture Info with a scan tool.

Are there any DTCs that have not been diagnosed?

Go to Diagnostic Trouble Code (DTC) List

System OK