GM Service Manual Online
For 1990-2009 cars only
Figure 1:

(1 of 5) - Uplevel


Object Number: 886917  Size: FP
Figure 2:

(2 of 5) - Uplevel


Object Number: 888816  Size: FP
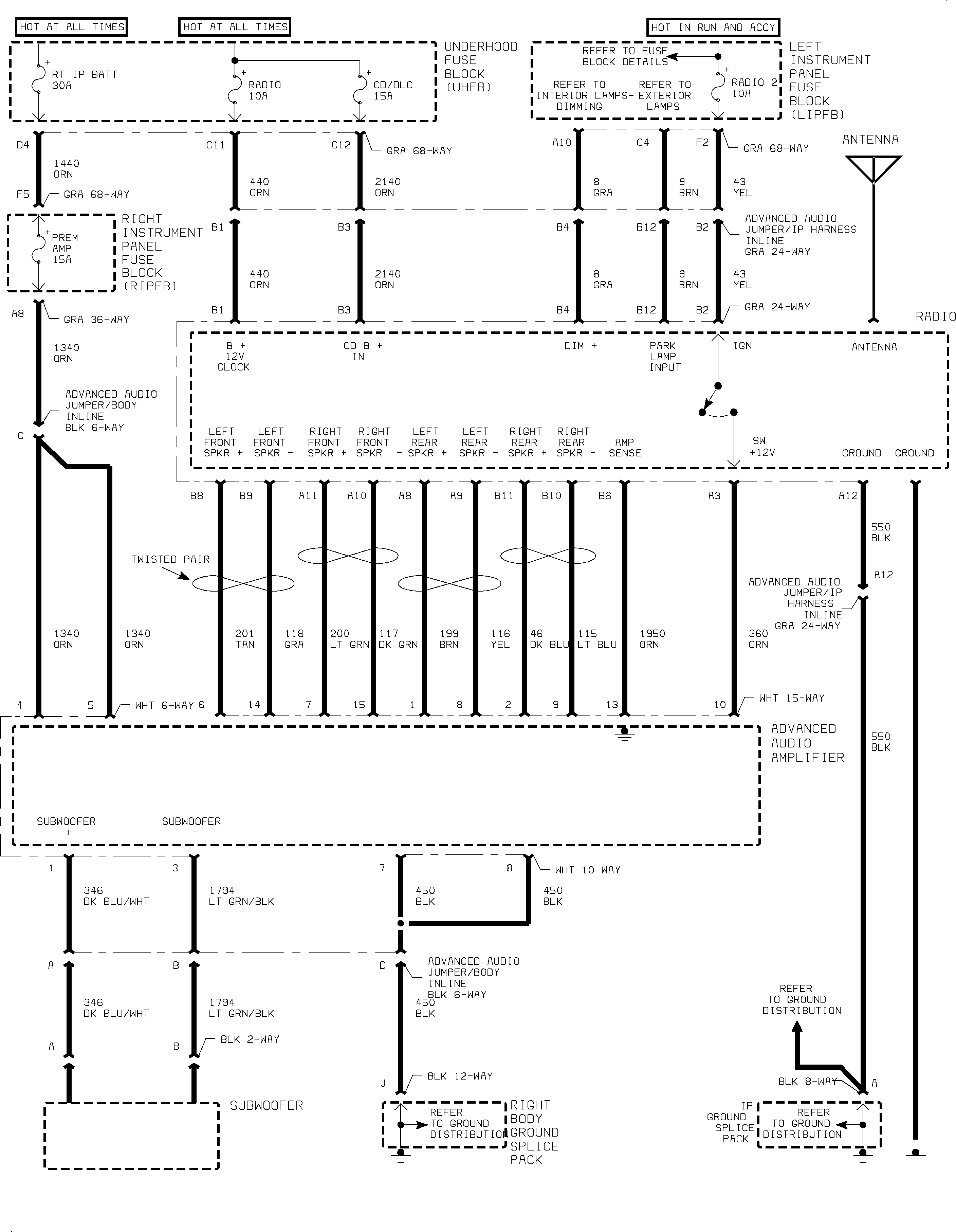
Figure 3:

(3 of 5) - Advanced


Object Number: 886932  Size: FP
Figure 4:

(4 of 5) - Advanced


Object Number: 888825  Size: FP
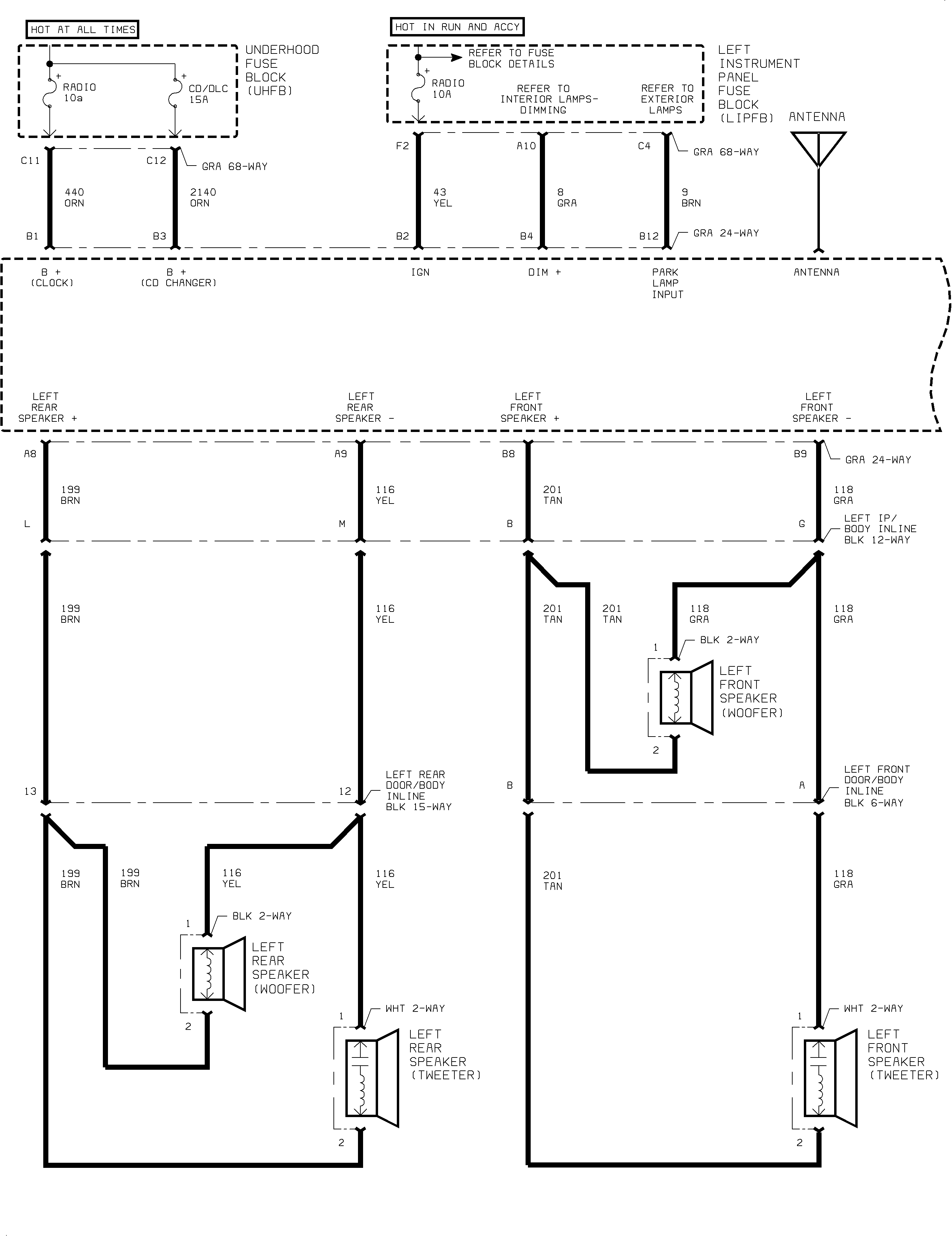
Figure 5:

(5 of 5) - Uplevel and Advanced (With CD Changer/Player)


Object Number: 886938  Size: FP