GM Service Manual Online
For 1990-2009 cars only

Object Number: 889818  Size: MF

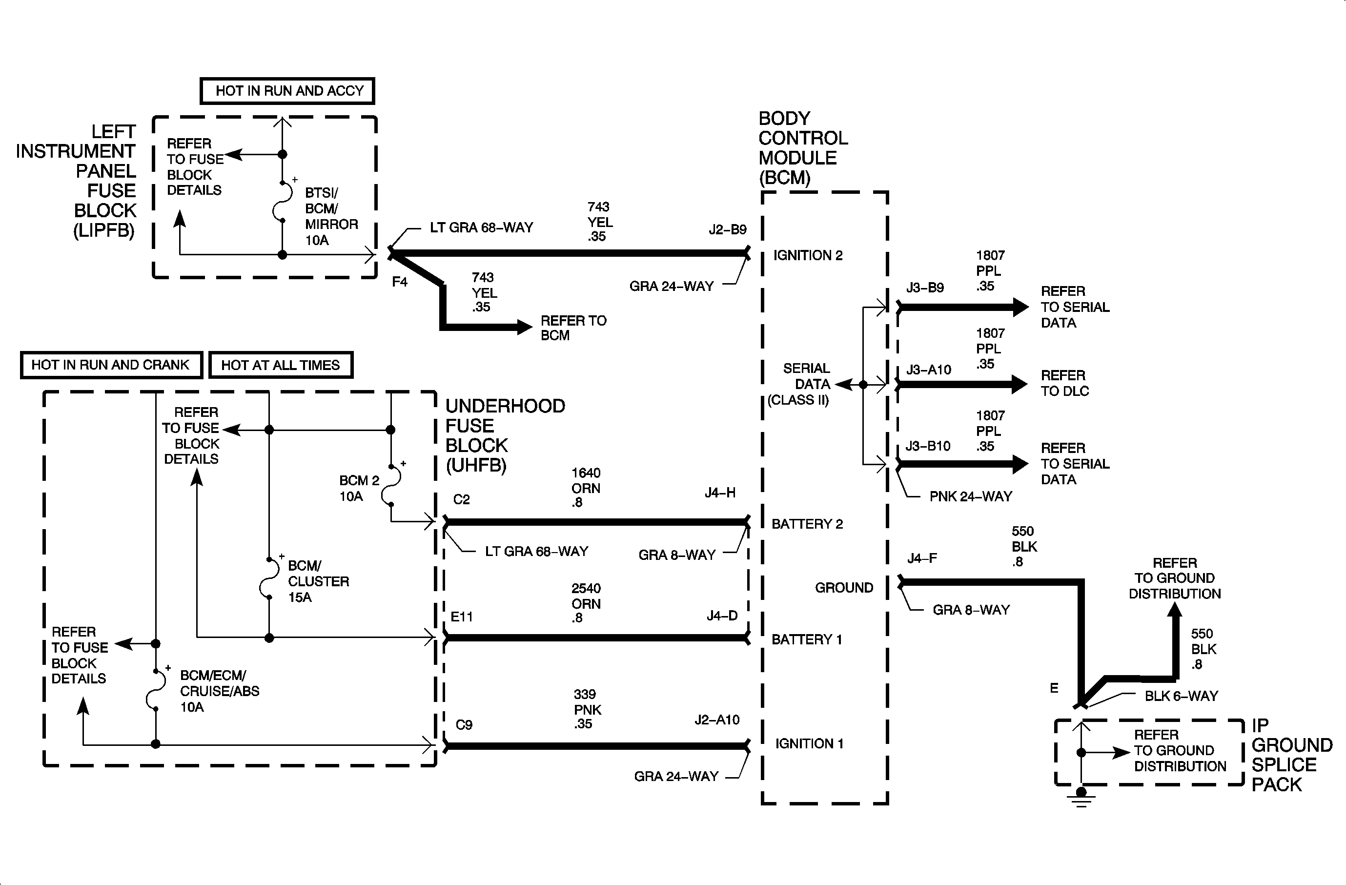
Class II serial data is a 0-7 volt variable pulse width message scheme, logic 0's and logic 1's, used to communicate information between modules and for communication to an off-board scan tool. Contained in each module memory is a list of serial data messages and default actions taken by the module if one of the important messages is not received. One of the most important messages is the state of health (SOH) message used to inform each module that other modules on the Class II link are functioning correctly.

Each module on the Class II link must first learn all modules connected to the Class II link every time the ignition is turned ON. Each message that a module sends out on the link contains a source identifier used to identify where the information came from. Once a module receives information, it will store the attached controller ID. If this same information is not received later in the ignition cycle, lost communications with a specific controller DTC will set. DTC U1064 sets when a controller does not receive specific information from the BCM after it had already learned its source ID in that ignition cycle.

DTC Parameters

DTC U1064 will set if the PCM or SDM lost Class II communications with the BCM when:

    • The condition exists for longer than 3 seconds.
    • The PCM or SDM already learned the BCM source identifier in the ignition cycle. The BCM had initially communicated with both the PCM and SDM when the ignition was first turned ON.
    • The ignition is ON.

DTC U1064 runs continuously with ignition the ON.

DTC U1064 is a type C DTC.

Diagnostic Aids

To locate an intermittent problem, use the scan tool to monitor the BCM located under the DIAGNOSTIC CIRCUIT CHECK - CLASS II MESSAGE MONITOR with the ignition ON and the engine OFF. INACTIVE will be displayed if the BCM is not communicating on the Class II link.

If an intermittent loss of battery power to the BCM via circuit 2540 exists, the scan tool communication with the BCM will be lost and the engine will not start.

If an intermittent loss of ignition power to the BCM via circuit 339 exists, the scan tool communication with the BCM will NOT be lost, however, the engine will stall and not restart

If circuit 743 or 1640 is open, communications with the BCM will exist and the engine will start and run normally.

If an intermittent open in circuit 550 will cause a lack of BCM communication and the engine will not start.


Object Number: 887350  Size: FP