GM Service Manual Online
For 1990-2009 cars only

Object Number: 899075  Size: MF

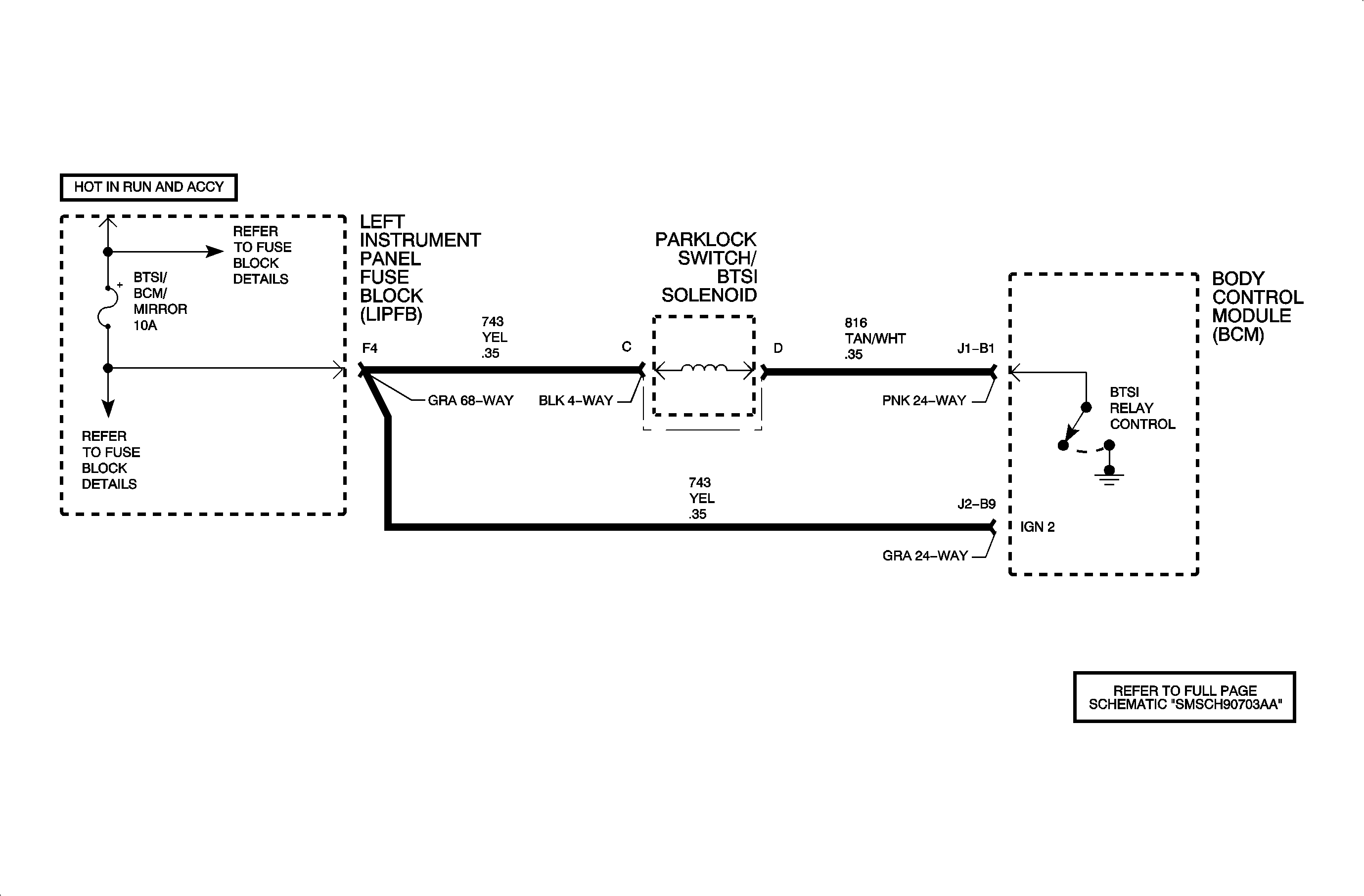
Circuit Description

The brake transmission shift interlock (BTSI) solenoid is energized by the body control module (BCM) switching circuit 816 to ground while ignition is in RUN. When energized, the BTSI solenoid will allow shifting from PARK. A condition for shifting from PARK is the foot brake must be applied. The BCM receives this information over the serial data link from the engine controller. The BTSI solenoid will allow shifting from PARK when ignition is in ACC position without a brake pedal input.

The BCM also monitors ignition 1 circuit 339 and ignition 2 circuit 743, to determine if the ignition switch is in the RUN or ACC position.

Conditions for Setting the DTC

    • Ignition in RUN or ACC
    • Foot brake is not applied (ouput is off)
    • Circuit 816 is shorted to ground which will not allow you to shift out of PARK
    • No light will illuminate in I/P
    • Circuit 816 is open which will allow you to shift out of PARK, without applying the brake pedal.

Diagnostic Aids

    • Check for poor connection at the BCM. Inspect harness connectors for backed out terminals, improper terminal mating, broken connector locks, improperly formed or damaged terminals and poor terminal to wire connection (terminal crimped over wire insulation and not conductors).
    • Inspect wiring harness for damage. Check for broken or chaffed insulation.
    • If fault is suspected to be intermittent, wiggling harness wiring may help in locating fault.

B2707


Object Number: 898875  Size: FP