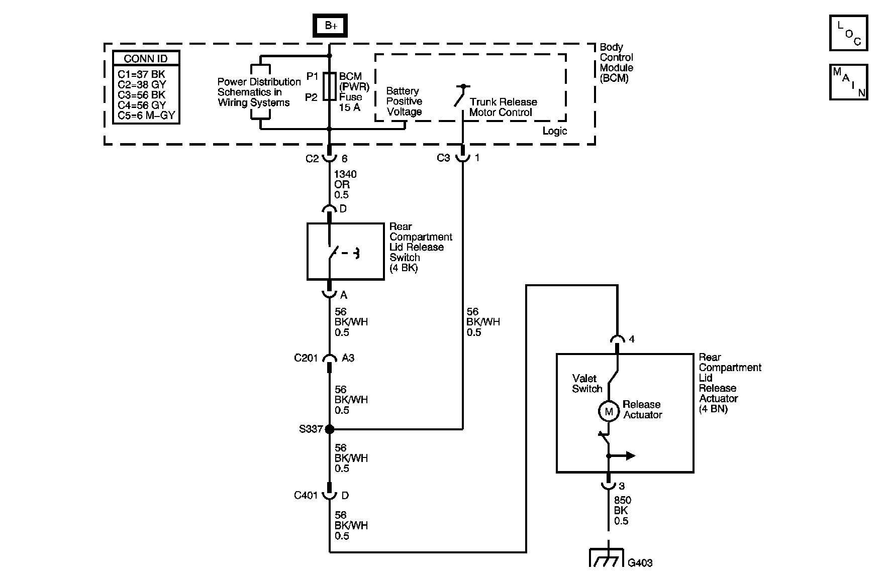
The rear compartment lid release solenoid is controlled by the intergrated body control module (IBCM). The IBCM supplies battery positive voltage to the rear compartment lid release solenoid when the keyfob trunk release button is pressed. When the rear compartment lid release control circuit is shorted to battery positive voltage for a minimum of 30 seconds, DTC B3268 is set.
Voltage supplied to the IBCM is in the normal operating range (approximately 9-16 volts).
The rear compartment lid control circuit is shorted to battery positive voltage for a minimum 30 seconds.
| • | The rear compartment lid release solenoid output is constantly on. |
| • | The IBCM stores DTC B3268 in memory. |
| • | A current DTC B3268 will clear when the malfunction is no longer present. |
| • | All IBCM history codes clear after 100 ignition cycles (from OFF to ON) with no current codes active during the 100 ignition cycles. |
| • | Current and history codes may be cleared using the scan tool. |
| • | If the rear compartment lid release control circuit is shorted to battery positive voltage, the rear compartment lid will not latch closed. |
| • | If the DTC is a history DTC, the problem may be intermittent. Refer to Testing for Intermittent Conditions and Poor Connections in Wiring Systems. |
The numbers below refer to the step numbers on the diagnostic table.
Listen for an audible click when the rear compartment lid release solenoid operates. Command both the ON and OFF states. Repeat the commands as necessary.
Verifies that the body control module is providing voltage to the rear compartment lid release solenoid.
Tests for an open in the ground circuit to the rear compartment lid release solenoid.
Tests if voltage is constantly being applied to the rear compartment lid release solenoid.
Step | Action | Yes | No |
|---|---|---|---|
1 | Did you perform the Body Rear End Diagnostic System Check? | Go to Step 2 | |
Does the rear compartment lid release solenoid turn ON and OFF with each command? | Go to Testing for Intermittent Conditions and Poor Connections in Wiring Systems | Go to Step 3 | |
Does the test lamp turn ON and OFF with each command? | Go to Step 4 | Go to Step 5 | |
Does the test lamp turn ON and OFF with each command? | Go to Step 8 | Go to Step 10 | |
Does the test lamp remain illuminated with each command? | Go to Step 7 | Go to Step 6 | |
6 | Test the control circuit of the rear compartment lid release solenoid for a short to battery positive voltage. Refer to Circuit Testing and Wiring Repairs in Wiring Systems. Did you find and correct the condition? | Go to Step 13 | Go to Step 9 |
7 | Test the control circuit of the rear compartment lid release solenoid for a short to voltage. Refer to Circuit Testing and Wiring Repairs in Wiring Systems. Did you find and correct the condition? | Go to Step 13 | Go to Step 9 |
8 | Inspect for poor connections at the rear compartment lid release solenoid. Refer to Testing for Intermittent Conditions and Poor Connections and Connector Repairs in Wiring Systems. Did you find and correct the condition? | Go to Step 13 | Go to Step 11 |
9 | Inspect for poor connections at the harness connector of the body control module. Refer to Testing for Intermittent Conditions and Poor Connections and Connector Repairs in Wiring Systems. Did you find and correct the condition? | Go to Step 13 | Go to Step 12 |
10 | Repair the ground circuit of the rear compartment lid release solenoid. Refer to Wiring Repairs in Wiring Systems. Did you complete the repair? | Go to Step 13 | -- |
11 | Replace the rear compartment lid release solenoid. Did you complete the replacement? | Go to Step 13 | -- |
12 |
Important: Perform the setup procedure for the body control module. Refer to Body Control Module (BCM) Programming/RPO Configuration in Body Control System. Replace the body control module. Refer to Body Control Module Replacement in Body Control System. Did you complete the replacement? | Go to Step 13 | -- |
13 |
Does the DTC reset? | Go to Step 2 | System OK |