GM Service Manual Online
For 1990-2009 cars only

Radio/Audio System Schematics w/o U67


Object Number: 1217113  Size: FS
Master Electrical Component List
Radio/Audio System Description and Operation
Fuse Block-Underhood : HVAC Blower, Radio/Onstar and CD/DLC - Fuse Block-Left I/P : IGN3
Fuse Block-Underhood : HVAC Blower, Radio/Onstar and CD/DLC - Fuse Block-Left I/P : IGN3
Fuse Block-Right I/P : Rear Wiper/Sunroof - Fuse Block-Left I/P : Wiper, BTSI/BCM/Mirror and Radio
Interior Lights Dimming Schematics
Park Lamps- Wagon
Onstar Schematics
G191 and G303

Radio/Audio System Schematics w/ U67

Figure 1:

Radio Power, Ground, and Audio Amplifier


Object Number: 1217115  Size: FS
Master Electrical Component List
Radio/Audio System Description and Operation
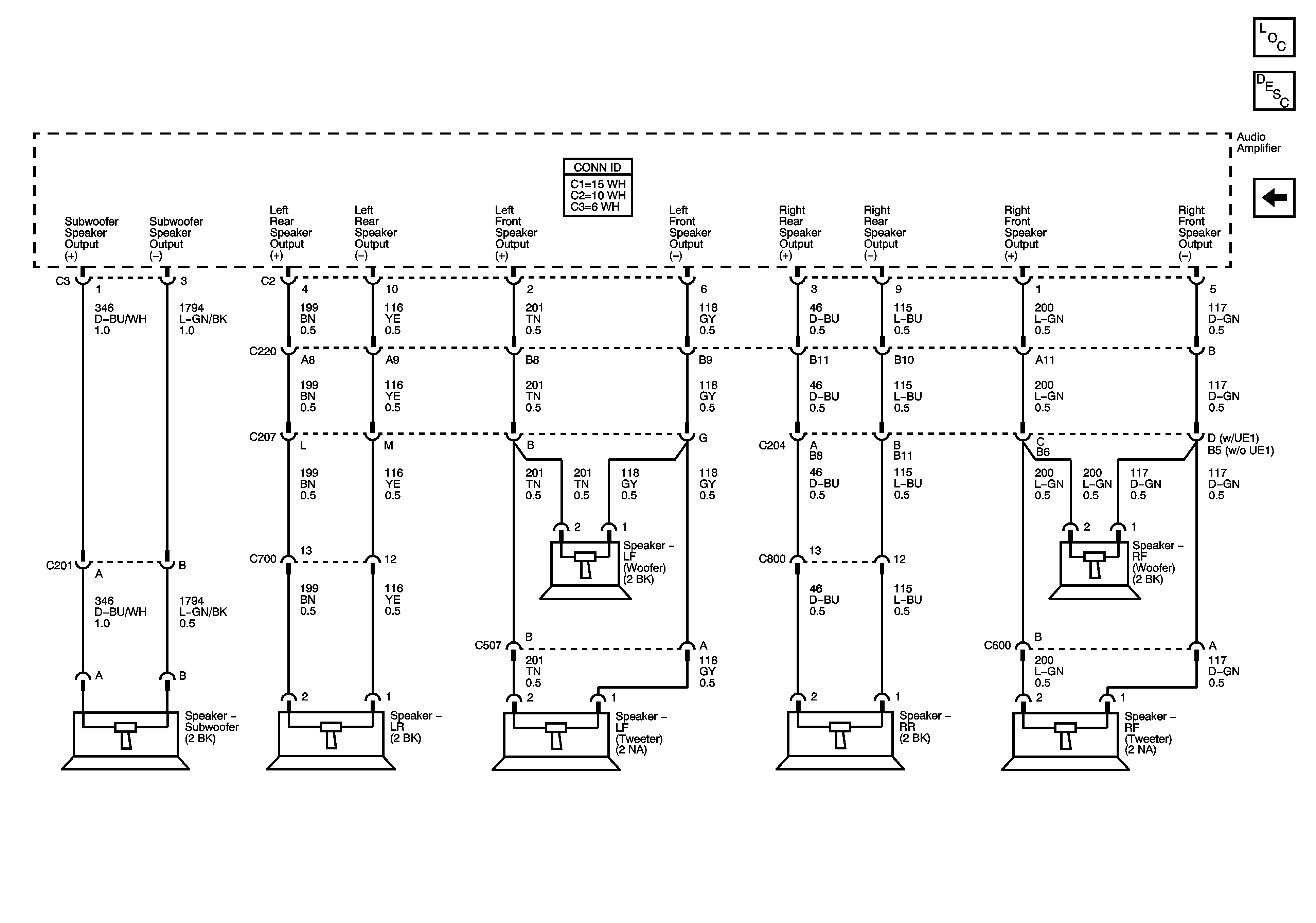
Speakers
Fuse Block-Underhood : HVAC Blower, Radio/Onstar and CD/DLC - Fuse Block-Left I/P : IGN3
Fuse Block-Right I/P : Rear Wiper/Sunroof - Fuse Block-Left I/P : Wiper, BTSI/BCM/Mirror and Radio
Fuse Block-Underhood : IP BATT RT - Fuse Block-Right I/P : Prem Amp, Door Lock, Body and Fog lamp
Fuse Block-Underhood : HVAC Blower, Radio/Onstar and CD/DLC - Fuse Block-Left I/P : IGN3
Interior Lights Dimming Schematics
Park Lamps- Wagon
Onstar Schematics
Entertainment Schematic Icons
Entertainment Schematic Icons
G300
G191 and G303
Figure 2:

Speakers


Object Number: 1217117  Size: FS
Master Electrical Component List
Radio/Audio System Description and Operation
Amplifier, Radio Power and Ground