GM Service Manual Online
For 1990-2009 cars only
Makes
🢒
Saturn
🢒
2005
🢒
L300/LW300
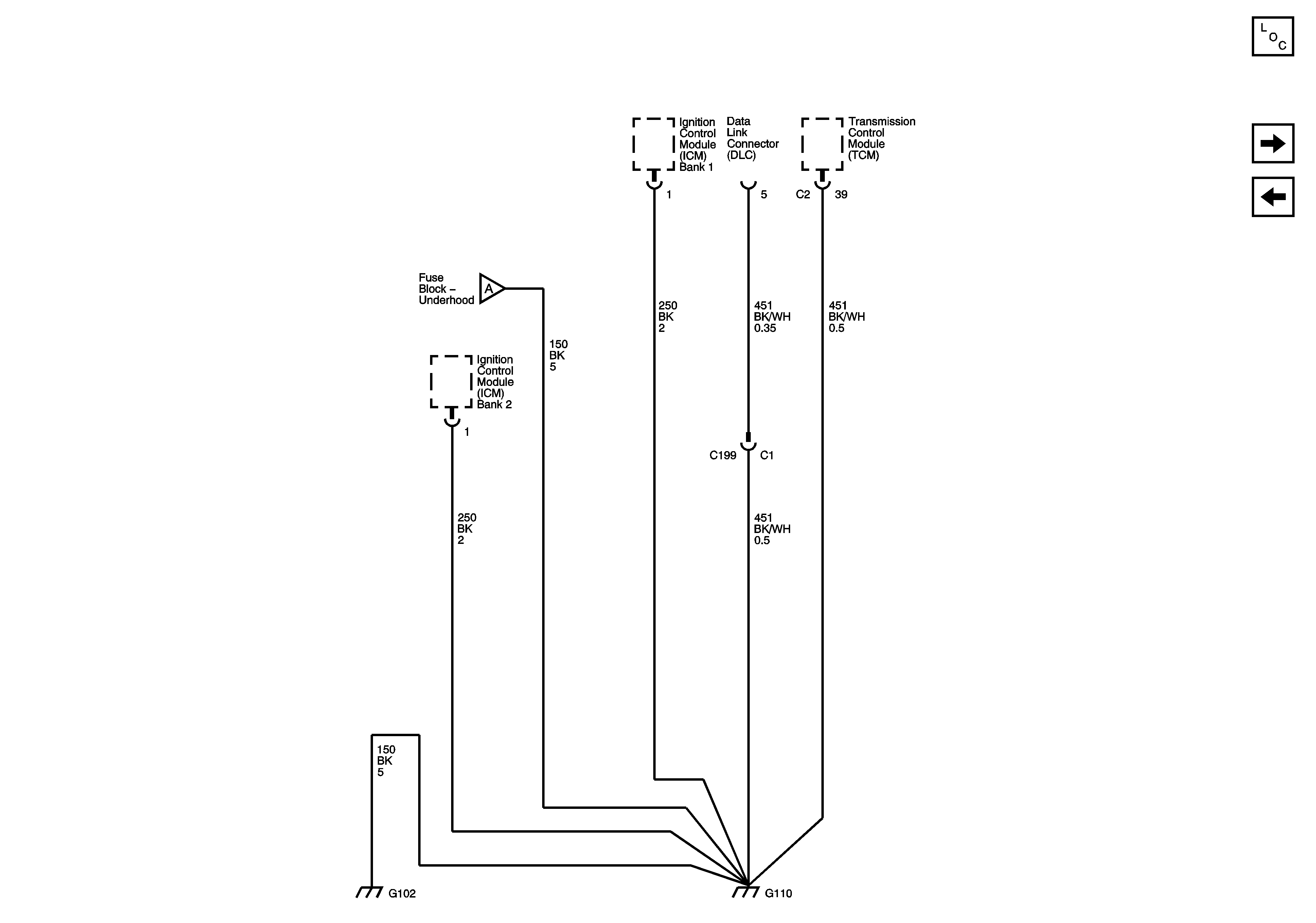
🢒 G110 (2 of 2) and G102
G110 (2 of 2) and G102
G110 2 of 2 and G102
Master Electrical Component List
G300 (1 of 3)
G110 - 1 of 2
G110 - 1 of 2