GM Service Manual Online
For 1990-2009 cars only
Makes
🢒
Saturn
🢒
2005
🢒
L300/LW300
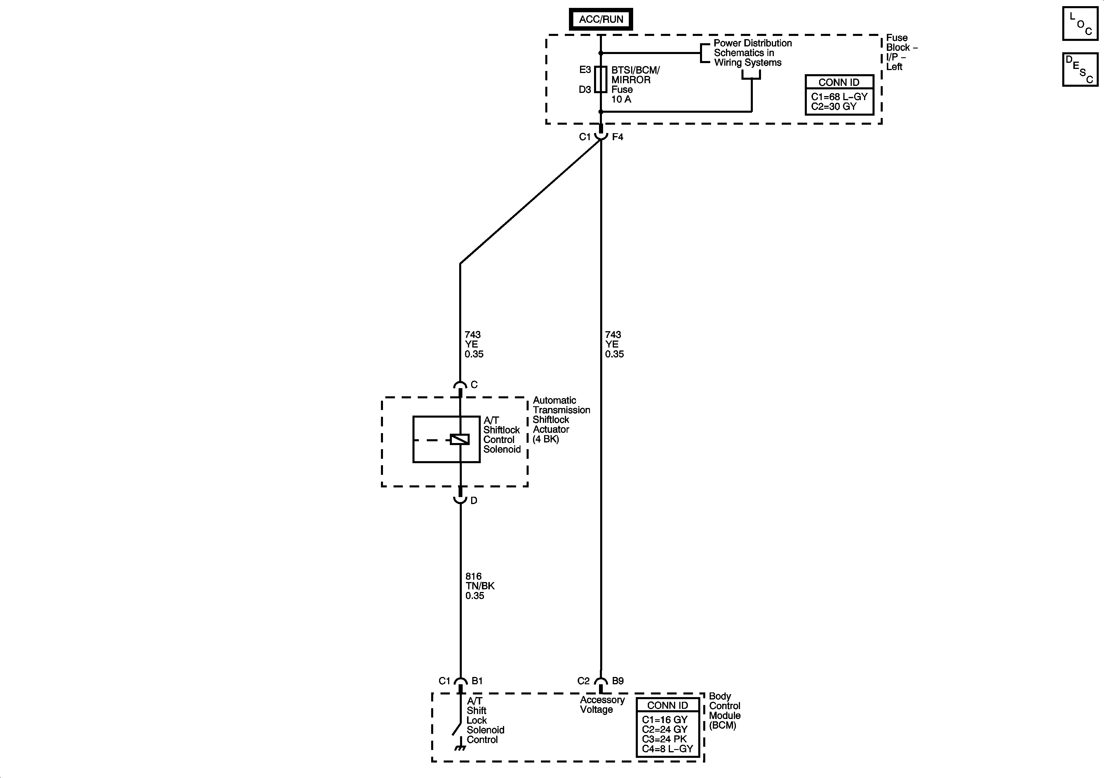
🢒 A/T Shift Lock Controls
A/T Shift Lock Controls
Master Electrical Component List
Automatic Transmission Shift Lock Control Description and Operation
BTSI/BCM/MIRROR, RADIO, RR WIPER, and WIPER Fuses