GM Service Manual Online
For 1990-2009 cars only

Object Number: 1409167  Size: LF
Master Electrical Component List
Automatic Transmission Controls Schematics
OBD II Symbol Description Notice
Control Module References

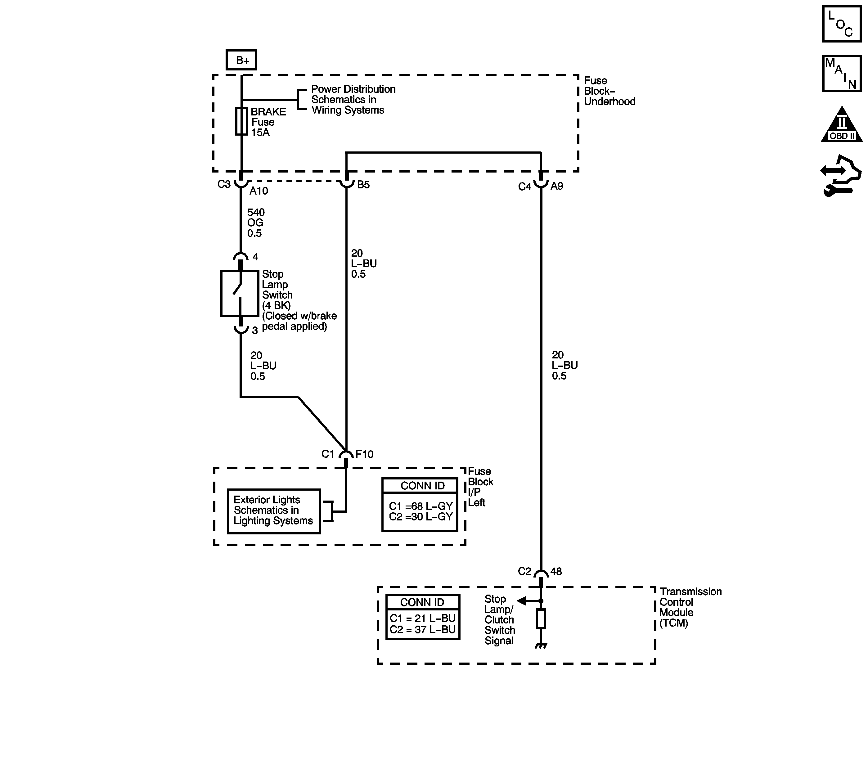
Circuit Description

The stop lamp switch indicates brake pedal status to the transmission control module (TCM). The normally-open stop lamp switch supplies ignition voltage to the TCM. Applying the brake pedal closes the switch, supplying voltage to the TCM. Releasing the brake pedal interrupts voltage to the TCM. When the TCM senses ignition voltage at the stop lamp switch input, the TCM de-energizes the torque converter clutch (TCC) solenoid valve.

When the TCM detects an open stop lamp switch, stuck OFF, during decelerations, DTC P0719 sets. DTC P0719 is a type C DTC.

DTC Descriptor

This diagnostic procedure supports the following DTC:

DTC P0719 Brake Switch Circuit Low Voltage

Conditions for Running the DTC

No VSS DTCs P0502 or P0503.

Conditions for Setting the DTC

DTC P0719 sets if the TCM detects a open stop lamp switch or circuit for 15 minutes during vehicle deceleration and the following conditions occur 8 times:

  1. The vehicle speed is greater than 32 km/h (20 mph) for 4 seconds;
  2. The vehicle speed is 8-32 km/h (5-20 mph) for 3-6 seconds;
  3. The vehicle speed is less than 8 km/h (5 mph).

Action Taken When the DTC Sets

    • The TCM does not request the engine control module (ECM) to illuminate the malfunction indicator lamp (MIL).
    • The TCM requests the ECM to illuminate the service vehicle soon (SVS) lamp.
    • The TCM freezes transmission adaptive functions.
    • The TCM records the operating conditions when the Conditions for Setting the DTC are met. The TCM stores this information as Failure Records.
    • The TCM stores DTC P0719 in TCM history.

Conditions for Clearing the SVS Lamp/DTC

    • The TCM clears the SVS lamp request when the condition no longer exists.
    • A scan tool can clear the SVS Lamp/DTC.
    • The TCM clears the DTC from TCM history if the vehicle completes 40 warm-up cycles without a non-emission-related diagnostic fault occurring.
    • The TCM cancels the DTC default actions when the fault no longer exists and the DTC passes.

Test Description

The numbers below refer to the step numbers on the diagnostic table.

  1. Disconnecting the stop lamp switch connector, jumping the circuit, and observing a status change, isolates the stop lamp switch as the source of the DTC.

  2. If the ignition 1 voltage circuit shorts to ground, the BRAKE fuse opens.

  3. If the stop lamp switch is properly adjusted, then the stop lamp switch must be replaced.

  4. Replace the TCM only after you have completed the preceding diagnostic steps.

Step

Action

Value(s)

Yes

No

1

Did you perform the Diagnostic System Check - Vehicle?

--

Go to Step 2

Go to Diagnostic System Check - Vehicle in Vehicle DTC Information

2

  1. Install a scan tool.
  2. Turn ON the ignition, with the engine OFF.
  3. Important: Before clearing the DTC, use the scan tool in order to record the Failure Records. Using the Clear Info function erases the Failure Records from the TCM.

  4. Record the DTC Failure Records.
  5. Clear the DTC.
  6. Select Brake Switch on the scan tool.
  7. Disconnect the stop lamp switch connector.
  8. Using the J-35616 connector test adapter kit, install a fused jumper wire between the ignition 1 voltage and the stop lamp switch signal circuits of the stop lamp switch connector.

Did the Brake Switch status change from Open to Closed?

--

Go to Step 5

Go to Step 3

3

  1. Remove the BRAKE fuse.
  2. Inspect the fuse for an open.

Refer to Circuit Protection - Fuses in Wiring Systems.

Is the fuse open?

--

Go to Step 4

Go to Step 6

4

Important: The condition that affects this circuit may exist in other connecting branches of the circuit. Refer to Power Distribution Schematics in Wiring Systems for complete circuit distribution.

Test the ignition 1 voltage circuit of the stop lamp switch for a short to a ground.

Refer to Testing for Short to Ground and Wiring Repairs in Wiring Systems.

Did you find and correct the condition?

--

Go to Step 9

--

5

  1. Inspect the stop lamp switch for proper adjustment.
  2. Adjust the stop lamp switch as necessary.

Refer to Stop Lamp Switch Replacement in Lighting Systems.

Did the stop lamp switch require adjustment?

--

Go to Step 9

Go to Step 7

6

  1. Test the ignition 1 voltage circuit of the stop lamp switch for an open.
  2. Test the signal circuit of the stop lamp switch for an open.

Refer to Testing for Continuity and Wiring Repairs in Wiring Systems.

Did you find and correct a condition?

--

Go to Step 9

Go to Step 8

7

Replace the stop lamp switch.

Refer to Stop Lamp Switch Replacement in Lighting Systems.

Did you complete the replacement?

--

Go to Step 9

--

8

Replace the TCM.

Refer to Control Module References in Computer/Integrating Systems for replacement, set-up, and programming.

Did you complete the replacement?

--

Go to Step 9

--

9

Perform the following procedure in order to verify the repair:

  1. Select DTC.
  2. Select Clear Info.
  3. Operate the vehicle under the following conditions:
  4. • Turn ON the ignition, with the engine OFF.
    • Apply and release the brake pedal.
    • The TCM must receive 12 volts, stop lamp switch open, on the circuit for 2 seconds.
  5. Select Specific DTC.
  6. Enter DTC P0719.

Has the test run and passed?

--

Go to Step 10

Go to Step 2

10

With the scan tool, observe the stored information, capture info and DTC info.

Does the scan tool display any DTCs that you have not diagnosed?

--

Go to Diagnostic Trouble Code (DTC) List - Vehicle in Vehicle DTC Information

System OK