GM Service Manual Online
For 1990-2009 cars only

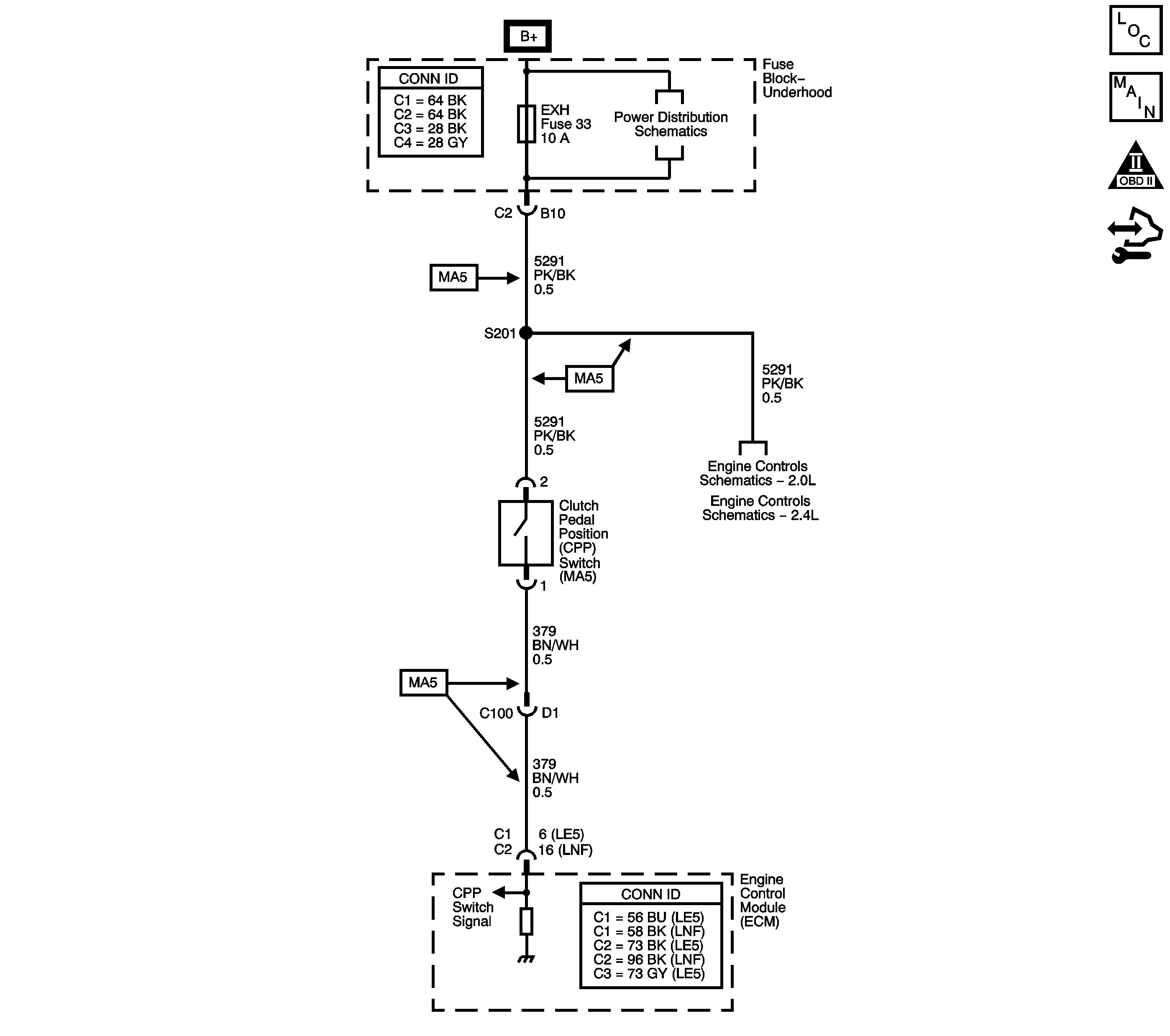
Object Number: 1751412  Size: LF
Master Electrical Component List
Manual Transmission Schematics
OBD II Symbol Description Notice
Control Module References

Circuit Description

The clutch switch is a normally closed switch, clutch pedal released. The engine control module (ECM) detects an ignition voltage on the clutch switch circuit when the clutch switch is closed. The ECM detects 0 volts on the clutch switch circuit when the clutch switch is open, clutch pedal depressed.

When the ECM detects a large number of gear changes without detecting a clutch switch transition, DTC P0833 sets. DTC P0833 is a type B DTC.

DTC Descriptor

This diagnostic procedure supports the following DTC:

DTC P0833 Clutch Pedal Switch 2 Circuit

Conditions for Running the DTC

    • No VSS DTCs P0502 or P0503.
    • The vehicle speed is greater than 15 km/h (9 mph).

Conditions for Setting the DTC

    • The ECM must detect 20 or more gear changes with less than 6 clutch pedal transitions.
    • Time between gear changes must be 4 seconds or greater.

Action Taken When the DTC Sets

    • The ECM illuminates the malfunction indicator lamp (MIL) during the second consecutive trip in which the Conditions for Setting the DTC are met.
    • The ECM disables Cruise Control.
    • The ECM records the operating conditions when the Conditions for Setting the DTC are met. The ECM stores this information as Freeze Frame and Failure Records.
    • The ECM stores DTC P0833 in ECM History during the second consecutive trip in which the Conditions for Setting the DTC are met.

Conditions for Clearing the MIL/DTC

    • The ECM turns OFF the MIL during the third consecutive trip in which the diagnostic runs and passes.
    • A scan tool can clear the MIL/DTC.
    • The ECM clears the DTC from ECM history if the vehicle completes 40 warm-up cycles without an emission-related diagnostic fault occurring.
    • The ECM cancels the DTC default actions when the ignition switch is OFF long enough in order to power down the ECM.

Test Description

The number below refers to the step number on the diagnostic table.

  1. This test confirms if the scan tool is receiving a clutch switch position signal.

  2. This step inspects the clutch pedal connector and adjustment.

Step

Action

Values

Yes

No

1

Did you perform the Diagnostic System Check - Vehicle?

--

Go to Step 2

Go to Diagnostic System Check - Vehicle

2

  1. Install a scan tool.
  2. Turn ON the ignition, with the engine OFF.
  3. Important: Before clearing the DTCs, use the scan tool in order to record the Freeze Frame and Failure Records. Using the Clear Info function erases the Freeze Frame and Failure Records from the ECM.

  4. Clear the DTC.
  5. Use the scan tool to monitor the clutch pedal position switch parameter.
  6. Apply and release the clutch pedal several times.

Does the scan tool indicate a change in state when the clutch pedal is either applied or released?

--

Refer to Testing for Intermittent Conditions and Poor Connections

Go to Step 3

3

Inspect the clutch pedal position switch and the connector.

Does the clutch switch or the connector require service?

--

Go to Step 11

Go to Step 4

4

Inspect the EXH fuse for an open. Refer to Circuit Protection - Fuses .

Is the EXH fuse open?

--

Go to Step 9

Go to Step 5

5

Using a DMM, measure voltage at the EXH fuse.

Does the DMM indicate the specified value?

B+

Go to Step 6

Go to Step 12

6

  1. Turn OFF the ignition.
  2. Disconnect the clutch pedal position switch connector.
  3. Turn ON the ignition with the engine OFF.
  4. Using a DMM, measure the voltage at the ignition 1 voltage circuit at the switch connector.

Does the DMM indicate the specified value?

B+

Go to Step 7

Go to Step 13

7

  1. Clear all DTCs.
  2. Use the scan tool to monitor the clutch pedal position switch parameter.
  3. Use a fused jumper wire to repeatedly connect and disconnect pin 1 and pin 2 of the clutch pedal position switch electrical connector.

Does the scan tool display that the clutch is applying and releasing?

--

Go to Step 15

Go to Step 8

8

  1. Turn the ignition switch OFF.
  2. Disconnect C1 (LE5) or C2 (LNF) at the ECM.
  3. Using the DMM, test for continuity and a short to voltage on the clutch pedal position switch signal circuit.

Did you find a short to voltage, high resistance or an open on the clutch pedal position switch signal circuit?

--

Go to Step 14

Go to Step 16

9

  1. Turn the ignition switch OFF.
  2. Remove the EXH fuse.
  3. Disconnect the clutch pedal position switch connector and C2 at the fuse block underhood.
  4. Using a DMM, test for a short to ground on the ignition 1 voltage circuit at the switch connector.

Is the ignition 1 voltage circuit grounded?

--

Go to Step 13

Go to Step 10

10

Using a DMM, test for a short to ground on the clutch pedal position switch signal circuit at the switch connector.

Is the clutch pedal position switch signal circuit grounded?

--

Go to Step 14

Go to Step 15

11

Replace the clutch pedal position switch, or repair the connector, as necessary. Refer to Clutch Pedal Position Switch Replacement or Connector Repairs .

Did you complete the repair?

--

Go to Step 17

--

12

Repair the power distribution circuit to the EXH fuse.

Did you complete the repair?

--

Go to Step 17

--

13

Repair the open, high resistance or short to ground in the ignition 1 voltage circuit or a parallel circuit that uses the brake fuse.

Refer to Wiring Repairs .

Did you complete the repair?

--

Go to Step 17

--

14

Repair the open, high resistance, short to ground or short to voltage in the clutch pedal position switch signal circuit.

Refer to Wiring Repairs .

Did you complete the repair?

--

Go to Step 17

--

15

Replace the clutch pedal position switch.

Refer to Clutch Pedal Position Switch Replacement .

Is the action complete?

--

Go to Step 17

--

16

Replace the ECM.

Refer to Control Module References for replacement, setup, and programming.

Is the action complete?

--

Go to Step 17

--

17

  1. Select the DTC.
  2. Select Clear Info.
  3. Operate the vehicle from 0 km/h (0 mph) to above 38 km/h (24 mph) then back to 0 km/h (0 mph) 7 times.
  4. Select Specific DTC.
  5. Enter DTC P0833.

Has the test run and passed?

--

Go to Step 18

Go to Step 2

18

With the scan tool, observe the stored information, capture info and DTC info.

Does the scan tool display any DTCs that you have not diagnosed?

--

Go to Diagnostic Trouble Code (DTC) List - Vehicle

System OK