GM Service Manual Online
For 1990-2009 cars only
Makes
🢒
Saturn
🢒
2008
🢒
SKY
🢒
Diagnostic Navigation
🢒
Vehicle Diagnostic Information
🢒 Automatic Transmission Controls Schematics
Figure
1:
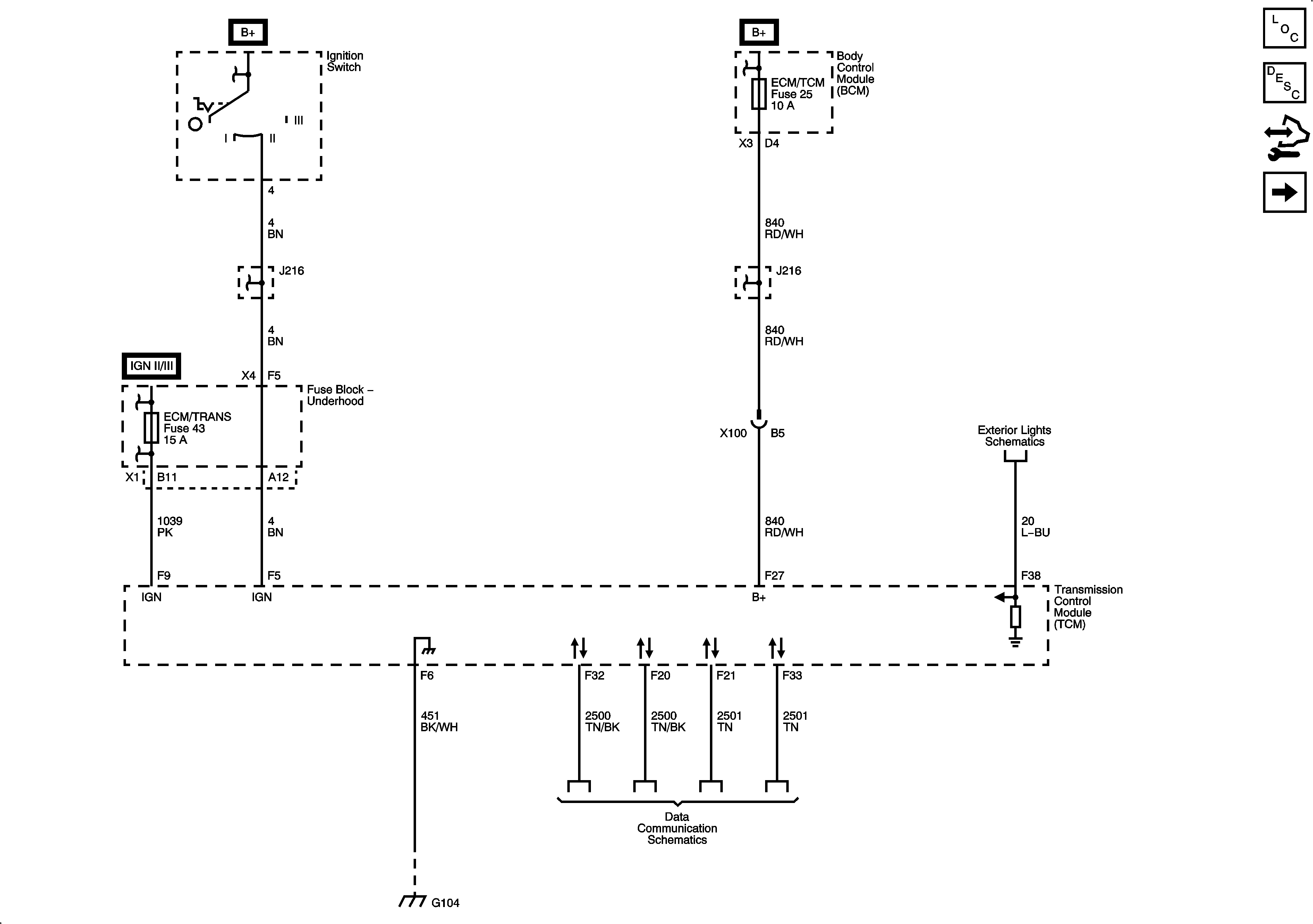
DLC, Ground, and Power
Master Electrical Component List
Transmission Component and System Description
Control Module References
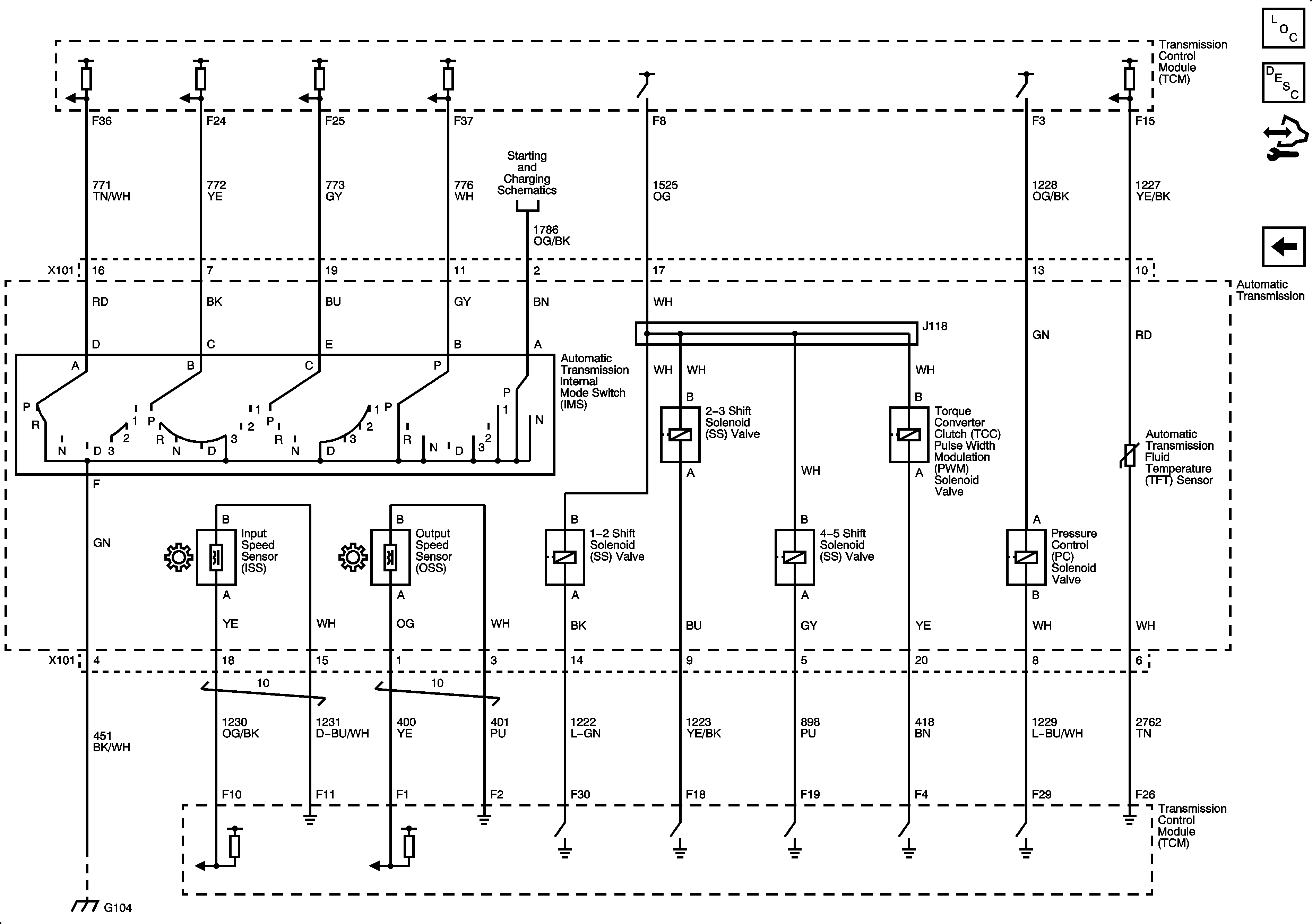
Shift Solenoids, TFT and VSS
Figure
2:
Shift Solenoids, TFT, and VSS
Master Electrical Component List
Transmission Component and System Description
Control Module References
Power, Ground, DLC, and MIL