GM Service Manual Online
For 1990-2009 cars only

Service Manual Update for All 2000 S-Series Service Manuals Regarding DTCs P0231, P0232, P0418, P1418, and Cooling Fan Diagnostics

Subject:Service Manual Update for All the 2000 S-Series Engine Service Manuals Regarding DTCs P0231, P0232, P0418, P1418, and Cooling Fan Diagnostics

Models:2000 Saturn S-Series vehicles



Purpose

The purpose of this bulletin is to update all the 2000 S-Series Engine Service Manuals at your location.

Obtain all the 2000 S-Series Engine Service Manuals at your location and update as indicated below.

a) Cross out the following pages with a marker pen:

    • 172 and 173 for DTC P0231 Fuel Pump Relay Control Circuit Low Voltage
    • 174 and 175 for DTC P0232 Fuel Pump Relay Control Circuit High Voltage
    • 224 and 225 for DTC P0418 Secondary Air Injection System Relay Circuit
    • 282 and 283 for DTC P1418 Secondary Air Injection System Relay Control Circuit High
    • 732 for Chart 3 - Cooling Fan Inoperative

b) Remove staple from upper corner of this bulletin.

c) Follow location instructions at the bottom of the remaining pages of this bulletin and update service manual.

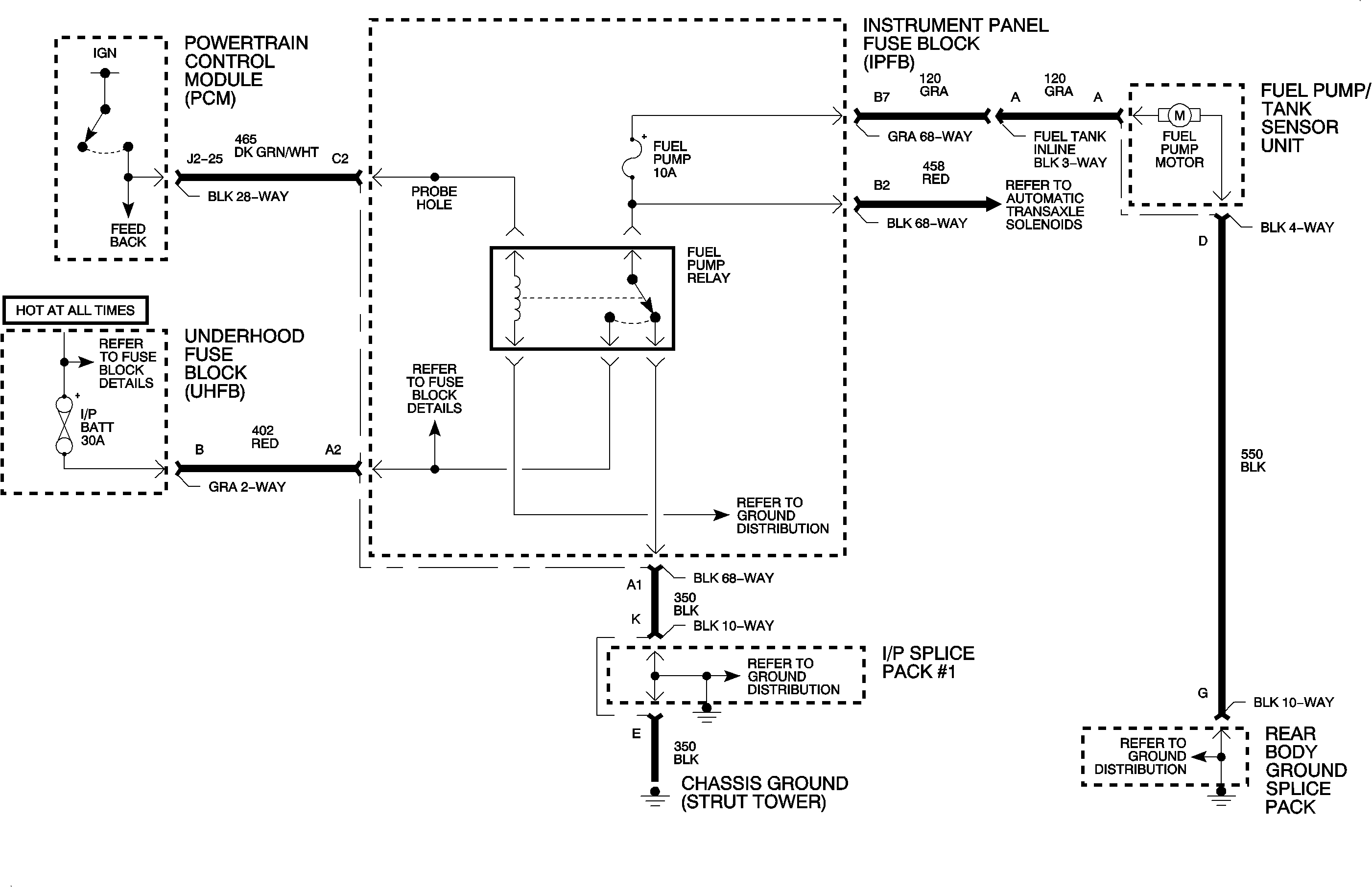
DTC P0321 - FUEL PUMP RELAY CONTROL CIRCUIT LOW VOLTAGE


Object Number: 885300  Size: MF

The PCM controls the fuel pump motor by supplying ignition voltage to the fuel pump relay coil. The fuel pump runs continuously whenever the engine is running or runs for 2 seconds if the ignition is turned On and the engine is not cranked. The PCM controls an internal driver which supplies the fuel pump relay coil direct ignition voltage faults whenever the fuel pump relay is commanded On. The relay coil is monitored for low and high voltage faults. DTC P0231 sets when the fuel pump relay is being commanded Off and the feedback voltage at the PCM is high.

DTC PARAMETERS

DTC P0231 will set if fuel pump relay voltage is less than 2.5 volts when fuel pump relay is commanded On.

DTC P0231 diagnostic runs continuously with ignition On and fuel pump relay commanded On.

DTC P0231 is a type D DTC.

DIAGNOSTIC AIDS

To locate an intermittent problem, use Scan tool to command FUEL PUMP RELAY On, while monitoring the FUEL PUMP REL. - LOW VOLT test. When a fault (short to ground or shorted solenoid) exists, the Scan tool will display TEST FAIL.

The test will fail only when the device is being commanded On and the voltage at the PCM is low. The test updates every 100 ms whenever the ignition is turned On and the device is being commanded On via the Scan tool or PCM.

Fuel pump relay coil resistance: 75 - 105 ohms

The PCM supplies voltage on ckt 465 when the fuel pump relay is commanded Off. This is normal. This voltage normally will not light a test light.


Object Number: 881941  Size: FP

DTC P0232 - FUEL PUMP RELAY CONTROL CIRCUIT HIGH VOLTAGE


Object Number: 885300  Size: MF

The PCM controls the fuel pump motor by supplying ignition voltage tot he fuel pump relay coil. The fuel pump runs continuously whenever the engine is running or runs for 2 seconds if the ignition is turned On and the engine is not cranked. The PCM controls an internal driver which supplies the fuel pump relay coil direct ignition voltage faults whenever the fuel pump relay is commanded On. The relay coil is monitored for low and high voltage faults. DTC P0232 sets when the fuel pump relay is being commanded On and the feedback voltage at the PCM is low.

DTC PARAMETERS

DTC P0232 will set if fuel pump relay voltage is less than 2.5 volts when fuel pump relay is commanded Off.

DTC P0231 diagnostic runs continuously with ignition On and fuel pump relay commanded off.

DTC P0232 is a type D DTC.


Object Number: 882050  Size: FP

DIAGNOSTIC AIDS

To locate an intermittent problem, use Scan tool to monitor FUEL PUMP REL. - OPEN or FUEL PUMP REL. - HIGH VOLT test with ignition On, engine Off. When a fault (open or short to voltage) exists, The Scan tool will display TEST FAIL for both tests.

The test will fail only when the device is being commanded Off and the voltage at the PCM is high. The test updates every 100 ms whenever the ignition is turned On and the device is being commanded Off via the Scan tool or PCM.

Fuel pump relay coil resistance: 75 - 105 ohms

The PCM supplies voltage on ckt 465 when the fuel pump relay is commanded Off. This is normal. This voltage normally will not light a test light.

DTC P0418 - SECONDARY AIR INJECTION SYSTEM RELAY CIRCUIT


Object Number: 882566  Size: MF

The AIR system is used to accelerate the heating process of the catalytic converters by introducing outside air into the exhaust manifold. The AIR system operates on cold engine starts when the catalytic converters work least efficient. The PCM controls the air pump motor by controlling the ground for the air pump relay coil. The PCM monitors the relay coil circuit for low and high voltage faults. DTC P0418 sets when the air pump relay is commanded Off and the feedback voltage at the PCM is low.

DTC PARAMETERS

DTC P0418 will set if air pump relay voltage is less than 1.25 volts when air pump relay is commanded Off.

DTC P0418 diagnostic runs continuously with ignition On and air pump relay commanded Off.

DTC P0418 is a type D DTC.

DIAGNOSTIC AIDS

To locate an intermittent problem, use Scan tool to monitor the AIR PUMP REL. - LOW VOLT or AIR PUMP REL. - OPEN test with ignition On, engine Off. When a fault (open or short to ground) exists, the Scan tool will display TEST FAIL for both tests.

The tests will fail only when the device is being commanded Off and the voltage at the PCM is low. The tests update every 100 ms whenever the ignition is turned On and the device is being commanded Off via the Scan tool or PCM.

AIR pump relay coil resistance: 75-105 ohms.


Object Number: 882098  Size: FP

DTC P1418 - SECONDARY AIR INJECTION SYSTEM RELAY CONTROL CIRCUIT HIGH


Object Number: 882566  Size: MF

The AIR system is used to accelerate the heating process of the catalytic converters by introducing outside air into the exhaust manifold. The AIR system operates on cold engine starts when the catalytic converters work least efficient. The PCM controls the air pump motor by controlling the ground for the air pump relay coil. The PCM monitors the relay coil circuit for low and high voltage faults. DTC P1418 sets when the air pump relay is commanded On and the feedback voltage at the PCM is high.

DTC PARAMETERS

DTC P1418 will set if air pump relay voltage is greater than 1.25 volts when air pump relay is commanded On.

DTC P1418 diagnostic runs continuously on cold engine starts when air pump relay is commanded On.

DTC P1418 is a type D DTC.

DIAGNOSTIC AIDS

To locate an intermittent problem, use Scan tool to command air pumpl relay on while montoring the AIR PUMP REL. - HIGH VOLT test.. When a fault (short to voltage or shorted solenoid) exists, the Scan tool will display TEST FAIL.

The test will fail only when the device is being commanded On and the voltage at the PCM is high. The tests update every 100 ms whenever the ignition is turned On and the device is being commanded On via the Scan tool or PCM.

AIR pump relay coil resistance: 75-105 ohms.


Object Number: 883007  Size: FP