GM Service Manual Online
For 1990-2009 cars only

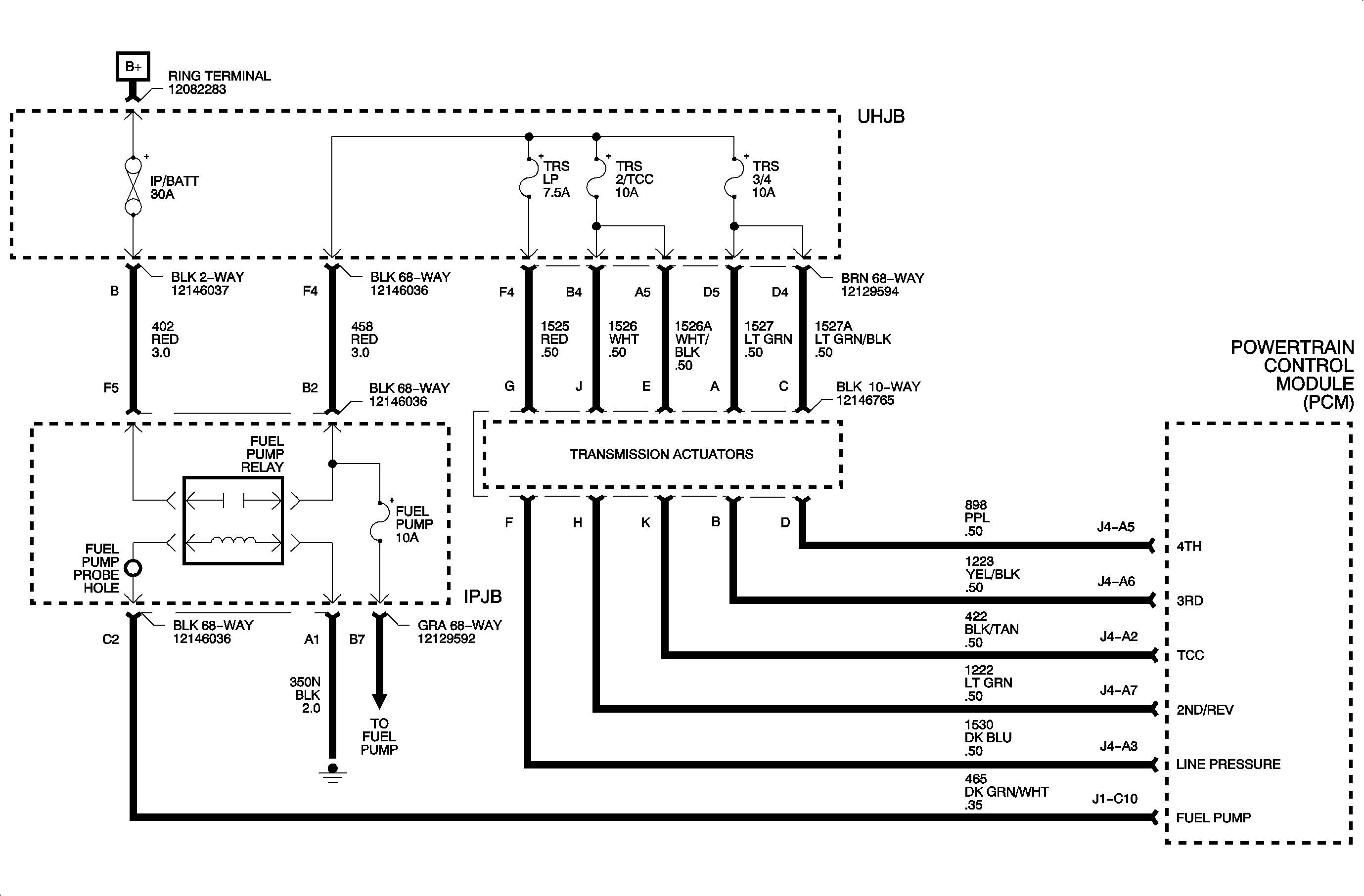
Circuit Description


Object Number: 902002  Size: MF

The PCM applies voltage on circuit 465 to the normally open fuel pump relay. The fuel pump relay provides voltage to all solenoid circuits and the fuel pump through voltage provided from the ignition switch circuit 402. DTC P0702 sets if the PCM detects less than 0.9 volts to all 5 solenoids.

Conditions for Setting the DTC

DTC P0702 is set when the PCM has detected the following conditions:

    • The engine is running for 1 minute.
    • The voltage to all 5 solenoids, monitored at terminals J4A02, J4A03, J4A05, J4A06, and J4A07 on the PCM, below 0.9 volts.
    • Ignition voltage is above 9.5 volts.

Test Description

Numbered steps below refer to numbers steps on the chart.

  1. This step verifies the problem exists currently creating an active DTC.
  2. If circuit 458 is grounded or open, DTC P0702 will set. This test checks circuit 458 for any faults.
  3. Ignition switch faults and poor connections in circuits 458, 465, and 402 will cause DTC P0702.

Diagnostic Aids

If driveability conditions exist, concentrate on the control side of the circuitry, e.g. circuit 465, the PCM, and relay.

The vehicle will exhibit 4th gear starts when DTC is active, hydraulic back-up/high line.

Repair Verification

Monitor the DTC menu Code Status for Pass Since Code Clear and Pass This Ignition Cycle. When both have passed, the repair is verified.

Criteria for pass:

    • Engine running
    • Voltage to all 5 solenoids is greater than 0.9 volts
    • Ignition voltage greater than 9.5 volts

Object Number: 902589  Size: FP