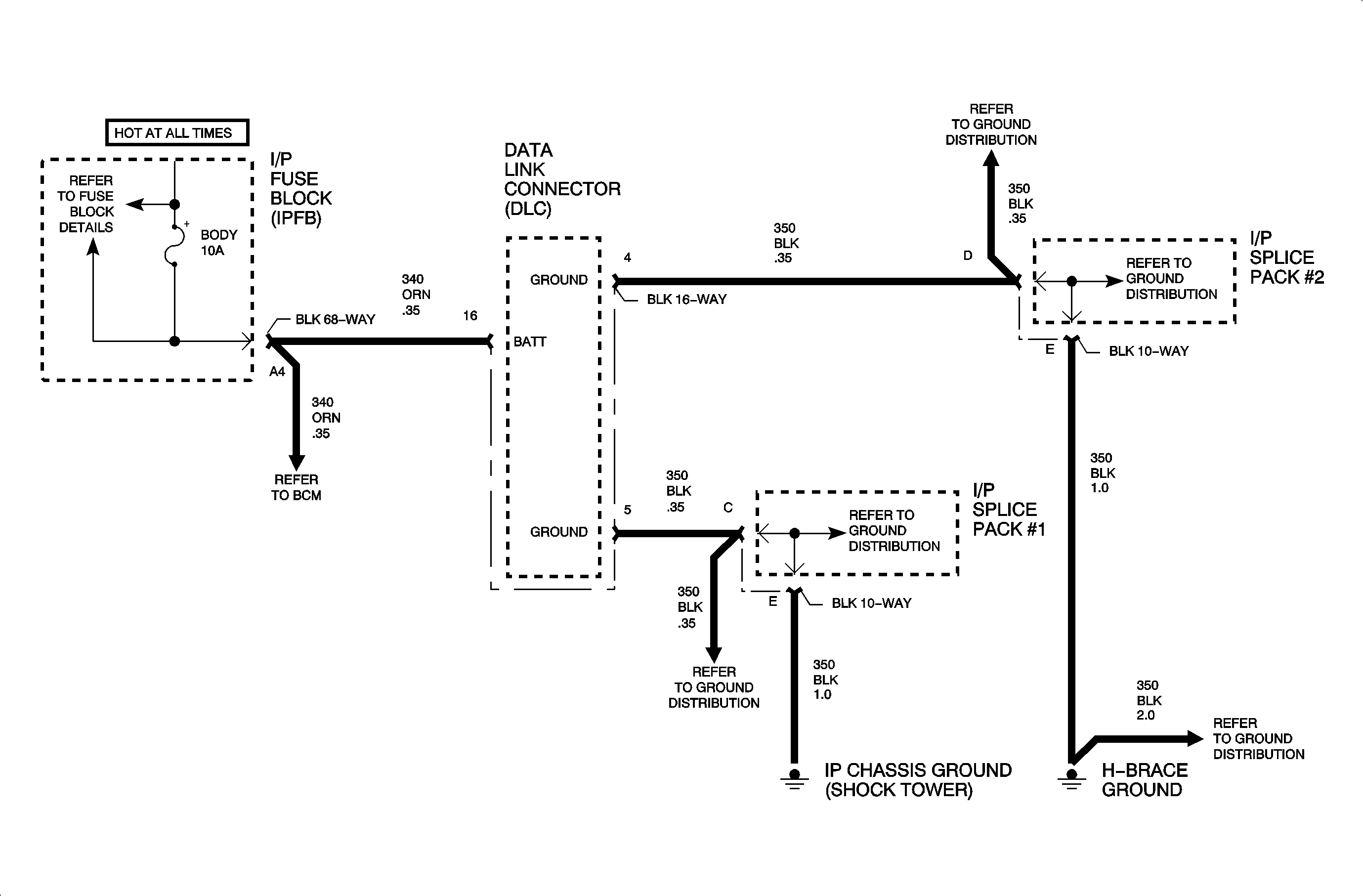
Most scan tools use the power supply as well as the ground circuits at the DLC. This chart only diagnoses the vehicle, not the scan tool. Before using this chart, be sure that the scan tool operates properly on another vehicle.