GM Service Manual Online
For 1990-2009 cars only

RKE Diagnostic Information

Subject:Service Manual Update for Remote Keyless Entry Diagnostic Information

Models:1996 Saturns equipped with a remote keyless entry (RKE) system



Purpose:

The first editions of the 1996 Electrical Service Manual and 1996 Powertrain Controls Service Manual were published with some omissions or errors in the remote keyless entry electrical schematics, diagnostic trouble trees and function checks. For your convenience, this bulletin provides complete diagnostic information, and removal and installation procedures for the 1996 remote keyless entry (RKE) system.

This information will be included in the second editions of the 1996 Electrical Service Manual and 1996 Powertrain Controls Service Manual which are expected to be printed in late 1995 or early 1996.


Object Number: 881605  Size: FP

Object Number: 881598  Size: FP

Object Number: 881584  Size: FP

Object Number: 1201828  Size: SH

Object Number: 885390  Size: FP

Diagnosis

Fuses

IP BATT Fuse

Location: Underhood junction block

Type: 30A Maxifuse

Feeds: Circuit 402

If the following systems are operating normally, the fuse is most likely good:

    • Headlamp switch
    • Dome lamp
    • Remote mirror switch
    • Map lights (SL/SC only)
    • Power door locks
    • Radio

If the fuse is blown, determine the cause of the blown fuse and repair.

Replace the fuse as needed.

IGN4 Fuse

Location: Underhood junction block

Type: 30A Maxifuse

Feeds: Circuit 202

If the vehicle starts, the fuse is good.

If the fuse is blown, determine the cause of the blown fuse and repair.

Replace the fuse as needed.

IGN1 Fuse

Location: Instrument panel junction block

Type: 10A Minifuse

Feeds: Circuit 39

If one of the following systems is operating normally, the fuse is most likely good:

    • I/P cluster
    • Power door locks
    • Perf/Norm switch

If the fuse is blown, determine the cause of the blown fuse and repair.

Replace the fuse as needed.

BODY Fuse

Location: Instrument panel junction block

Type: 10A Minifuse

Feeds Circuit 340

If one of the following systems is operating normally, the fuse is most likely good:

    • Power door locks
    • Dome lamp
    • Cargo lamp switch
    • Remote mirror switch
    • Map light

If the fuse is blown, determine the cause of the blown fuse and repair.

Replace the fuse as needed.

LOCKS Fuse

Location: Instrument panel junction block

Type: 20A Minifuse

Feeds: Circuit 740B

If one of the following systems is operating normally, the fuse is most likely good:

    • Power door locks
    • Cigar lighter

If the fuse is blown, determine the cause of the blown fuse and repair.

Replace the fuse as needed.

Grounds

Before checking the ground circuit from the component all the way to the ground stud, check the circuit from the splice pack ground by testing some of the other subsystems grounded by the same splice pack. If the other subsystems function properly, it s most likely that the path from the splice pack to ground is good, or at least one of the paths is good with redundantly grounded splice packs.

Left Body Ground Splice Pack

Location: Left side under the drivers seat.

The left side body splice pack provides a ground path for the left side body harness. The left body ground splice pack has an integral ring terminal that grounds the splice pack directly to the body of the vehicle. If one of the following systems is operating normally, the ground circuit is most likely good.

    • Dome lamp
    • Power mirror
    • Sunroof

Check for OPENS/SHORTS.

Repair as needed.

Circuit Description

Lock -- Transmitter

When a lock command is received from the transmitter, the remote control door lock module, also known as the RKE module, provides battery voltage through circuit 195R to the LOCK relay in the IPJB. The LOCK relay coil, grounded by circuit 550A, energizes and causes the relay contacts to close. When the relay contact closes, battery voltage is provided through the LOCKS fuse, through the relay and out of the IPJB to each of the door lock motors. he driver door lock motor is grounded by the remote control door lock module ground circuit 550RR. The other door lock motors are grounded through the UNLOCK relay by the IPJB ground circuit 550A.

Lock -- Switches

The lock operation of the drivers and passenger's door switches is the same as when operated by the transmitter, except the battery voltage is provided by either switch to the LOCK relay instead of the remote control door lock module.

Unlock -- Transmitter-- Driver's Door

When an unlock command is received from the transmitter, the remote control door lock module provides battery voltage through circuit 294K (SL/SW) or 294E (SC) to the drivers door lock motor. Ground potential is provided at the IPJB, through the normally closed contact of the LOCK relay and through each of the remaining door lock monitors.

Unlock -- Transmitter -- All Doors Except the Driver's Door

When a second unlock command is received from the transmitter within 5 seconds of the first unlock command, the remote control door lock module provides battery voltage through circuit 194R to the UNLOCK relay in the IPJB. The UNLOCK relay coil, grounded by circuit 550A, energizes and causes the relay contacts to close. When the relay contacts close, battery voltage is provided through the LOCKS fuse, through the relay, and out of the IPJB to each of the door lock motors -- in opposite directions of lock -- except the drivers door lock motor. The door lock motors are grounded through the LOCK relay by the IPJB ground circuit 550A

INSERT FLOW CHART

Function Check

Function

Normal Results

press LOCK

All doors lock. Dome lamp illuminates for 2 seconds, and the horn will sound if the horn chip function is enabled.

press UNLOCK

Driver's door unlocks. Pressing unlock again within 5 seconds unlocks the remaining doors. The dome lamp illuminates for 40 seconds, unless the ignition is turned to run. with the dome lamp in the DOOR position and all the vehicle doors are closed.

press DECKLID/LIFTGATE RELEASE

Ignition turned OFF. Decklid/liftgate will unlock and the dome lamp illuminates for 40 seconds or until the ignition is turned to RUN. Decklid/liftgate release will also operate with the ignition ON, as long as the vehicle speed equals zero. Decklid/liftgate release is disabled when the vehicle speed is greater than zero.

Symptom Table

Symptom

Procedure

Decklid/Liftgate -- DTC P1695 -- RKE -- Open or short to ground.

Chart 1

Decklid/liftgate -- DTC P1696 -- RKE -- Voltage high.

Chart 2

Decklid/liftgate inoperative LOCK and UNLOCK functions operate normally.

Chart 3

The LOCK and UNLOCK functions on the transmitter and interior door switches is inoperative.

DECKLID/LIFTGATE operates normally.

Inspect CKT 550A for open between IPJB and the left body ground splice pack. If OK, replace the remote control door lock (RKE) module.

The LOCK function is inoperative, the UNLOCK function operates normally.

Chart 4

The LOCK function inoperative, only the driver door UNLOCK function operates.

Inspect and replace the LOCKS fuse. Inspect for short-to-ground in CKT 295 or 294K (SL/SW) or 295E or 294E (SC) or driver door lock motor between IPJB and remote control door lock (RKE) module. If OK, refer to Power Distribution in the Electrical Service Manual for other possible short circuits.

The LOCK and UNLOCK functions are inoperative for the drivers door. The LOCK and UNLOCK for all other doors operates normally.

Inspect for an open in CKT 295 (SL/SW) or 295E or 294W (SC) or driver door lock motor between IPJB and the remote control door lock (RKE) module.

Inspect the driver door switch. If OK, replace the RKE module.

The UNLOCK function is inoperative for all doors except the driver door. The LOCK function operates normally.

Inspect for an open CKT 194R.

Inspect the UNLOCK relay. If OK, replace the RKE module.

The driver door LOCK is inoperative. The switch also does not lock the other doors. The passenger door switch operates normally.

Inspect for an open/short-to-ground in CKT 195A between IPJB and the driver door switch. If OK, replace the driver door switch.

The passenger door LOCK is inoperative. The switch also does not lock the other doors. The drivers door switch operates normally.

Inspect for an open/short-to-ground in CKT 195C (SL/SW), CKT 195D (SC) between IPJB and the passenger door switch.

If OK, replace the passenger door switch.

The driver door UNLOCK is inoperative. The switch also does not lock the other doors. The passenger door switch operates normally.

Inspect for an open/short-to-ground in CKT194 between IPJB and the driver door switch.

Inspect the driver door switch. If OK, replace the RKE module.

The passenger door UNLOCK is inoperative. The switch also does not lock the other doors. The driver door switch operates normally.

Inspect for an open/short-to-ground in CKT 194C (SL/SW), CKT 194D (SC) between IPJB and the passenger door switch.

If OK, replace the passenger door switch.

The passenger door LOCK and UNLOCK are inoperative. The driver door switch operates normally.

Inspect for an open/short-to-ground in CKT 340P between IPJB and the passenger door switch.

Inspect for an open/short-to-ground in CKT 294B (SL/SW), CKT 194F (SC) or motor or CKT 295B (SL/SW) CKT 295 (SC). If OK, replace the passenger door switch.

The right rear door LOCK and UNLOCK is inoperative.

Inspect for an open/short-to-ground in CKT 294J (SL) 294H (SW) or motor or CKT 295J (SL), CKT 295H (SW). If OK, inspect the door linkage.

The left rear door LOCK and UNLOCK is inoperative.

Inspect for an open/short-to-ground ion CKT 294C or motor or CKT 295C. If OK, inspect the door linkage.

The illuminated entry does not work with the LOCK and UNLOCK functions.

Refer to Dome Lamp System in the Electrical Service Manual.

The transmitters will not synchronize or program.

Chart 5

The horn is inoperative.

Chart 6

The RKE system interferes with other system frequencies.

The Remote Keyless Entry System operates on a radio frequency subject to Federal Communications Commission (FCC) Regulations. The Saturn RKE system complies with Part 15 of the FCC rules.

Other systems may not.

Inform the customer that changes or modifications to the RKE system could violate FCC regulations.

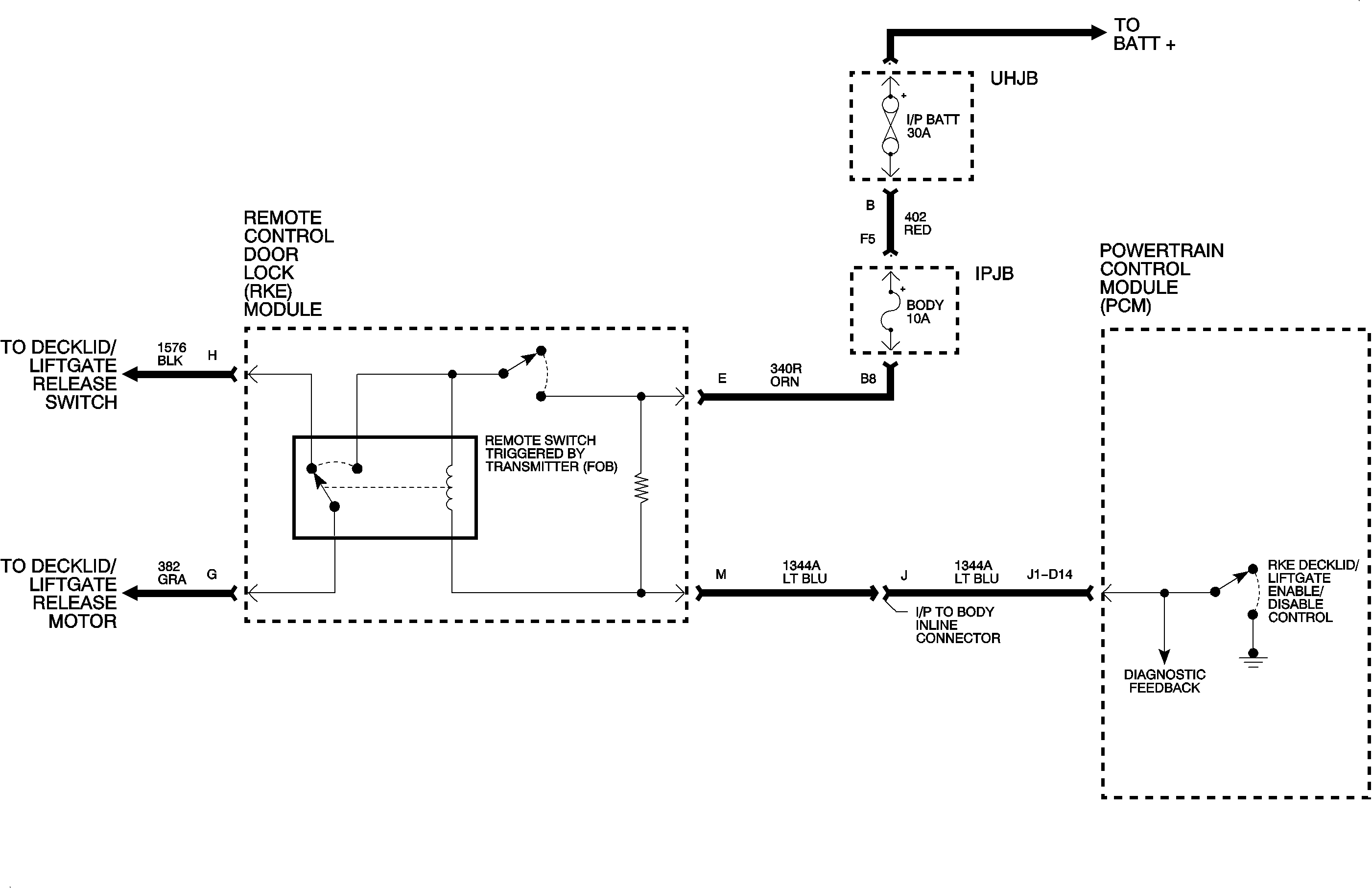
DTC P1695 -- RKE -- Open or Short to Ground -- Low


Object Number: 885942  Size: MF

Circuit Description

The powertrain control module (PCM) internal switch is normally closed when the vehicle is not moving. The remote control door lock (RKE) module remote switch is normally open. When the internal switch is closed, the PCM commands a LOW and the PCM diagnostic feedback should indicate a LOW. In this state, when the vehicle symbol button ids depressed on the transmitter, a signal is sent to the receiver module to close the remote switch. The PCM diagnostic feedback still detects a LOW due to the voltage drop across the coil. When the remote switch is closed, the coil is energized, and the internal relay switch closes to provide power to the decklid or liftgate release latch causing the decklid or liftgate to open.

The PCM internal switch is commanded open when the vehicle is moving. The remote control door lock (RKE) module remote switch is normally open. When the internal switch is commanded open, the PCM diagnostic feedback should indicate a HIGH. In this state, when the vehicle symbol button is depressed on the transmitter, a signal is sent to the receiver module to close the remote switch. However, even though the remote switch is closed, the coil never gets energized because the PCM internal switch remains open when the vehicle is moving. Therefore, power never reaches the decklid or liftgate release latch, causing the decklid or liftgate to remain closed while the vehicle is moving.

DTC Parameters

DTC P1695 is set when the PCM has detected an open or short-to-ground in the RKE circuitry , CKT 402, 340R, 1344B, 1344A. The following conditions must occur to set DTC P1695:

    • The vehicle is moving.
    • The remote switch is either open or closed.
    • The PCM switch is commanded open, HIGH but the diagnostic feedback indicates a LOW.

Diagnostic Aids

RKE system testing can be accessed on the scan tool by selecting SPECIAL TEST, OPTIONS, and then RKE.

If the problem is intermittent:

    • Use the scan tool to view the status of the PCM diagnostic feedback. When the vehicle is not moving, the PCM diagnostic feedback should indicate a LOW. Use the scan tool to command the PCM switch open, HIGH. Wiggle the wires while monitoring the PCM diagnostic feedback and watch it change in status from LOW to HIGH.
        When performing function checks on the RKE system, be sure to do the following:
    • Move the vehicle outside and as far away as possible from motors, heaters, alarm systems, interfering frequencies, vehicles, building walls and metal objects. This is to prevent any outside forces from influencing the system performance.
    • Turn the ignition OFF, roll the windows down, and close the doors. If the system is not working, this is to prevent locking your keys or anything else in the vehicle while performing diagnostics.

Object Number: 883721  Size: FP

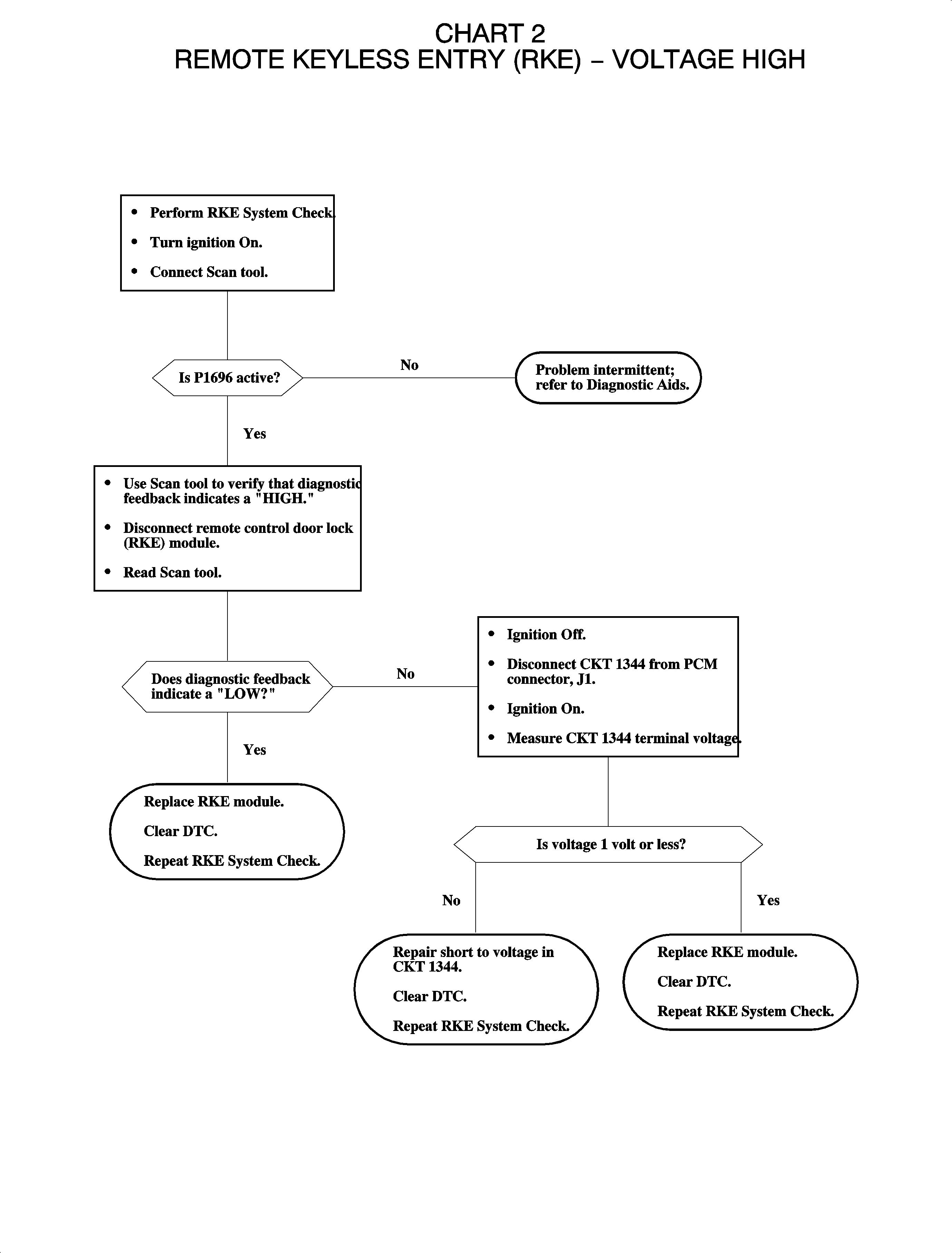
DTC P1696 -- Remote Keyless Entry (RKE) -- Voltage High


Object Number: 885942  Size: MF

Circuit Description

The powertrain control module (PCM) internal switch is normally closed when the vehicle is not moving. The remote control door lock (RKE) module remote switch is normally open. When the internal switch is closed, the PCM commands a LOW and the PCM diagnostic feedback should indicate a LOW. In this state, when the vehicle symbol button ids depressed on the transmitter, a signal is sent to the receiver module to close the remote switch. The PCM diagnostic feedback still detects a LOW due to the voltage drop across the coil. When the remote switch is closed, the coil is energized, and the internal relay switch closes to provide power to the decklid or liftgate release latch causing the decklid or liftgate to open.

The PCM internal switch is commanded open when the vehicle is moving. The remote control door lock (RKE) module remote switch is normally open. When the internal switch is commanded open, the PCM diagnostic feedback should indicate a HIGH. In this state, when the vehicle symbol button is depressed on the transmitter, a signal is sent to the receiver module to close the remote switch. However, even though the remote switch is closed, the coil never gets energized because the PCM internal switch remains open when the vehicle is moving. Therefore, power never reaches the decklid or liftgate release latch, causing the decklid or liftgate to remain closed while the vehicle is moving.

DTC Parameters

DTC P1696 is set when the PCM has detected an open or short-to-ground in the RKE circuitry , CKT 1344B, 1344A. The following conditions must occur to set DTC P1696:

    • The vehicle is moving.
    • The remote switch is either open or closed.
    • The PCM switch is commanded open, LOW but the diagnostic feedback indicates a HIGH.

Diagnostic Aids

RKE system testing can be accessed on the scan tool by selecting SPECIAL TEST, OPTIONS, and then RKE.

If the problem is intermittent:

    • Use the scan tool to view the status of the PCM diagnostic feedback. When the vehicle is not moving, the PCM diagnostic feedback should indicate a HIGH. Use the scan tool to command the PCM switch closed, LOW. Wiggle the wires while monitoring the PCM diagnostic feedback and watch it change in status from HIGH to LOW.
        When performing function checks on the RKE system, be sure to do the following:
    • Move the vehicle outside and as far away as possible from motors, heaters, alarm systems, interfering frequencies, vehicles, building walls and metal objects. This is to prevent any outside forces from influencing the system performance.
    • Turn the ignition OFF, roll the windows down, and close the doors. If the system is not working, this is to prevent locking your keys or anything else in the vehicle while performing diagnostics.

Object Number: 883998  Size: FP

Object Number: 884042  Size: FP

Object Number: 884078  Size: FP

Object Number: 884292  Size: FP

Object Number: 884364  Size: FP

Object Number: 884432  Size: FP

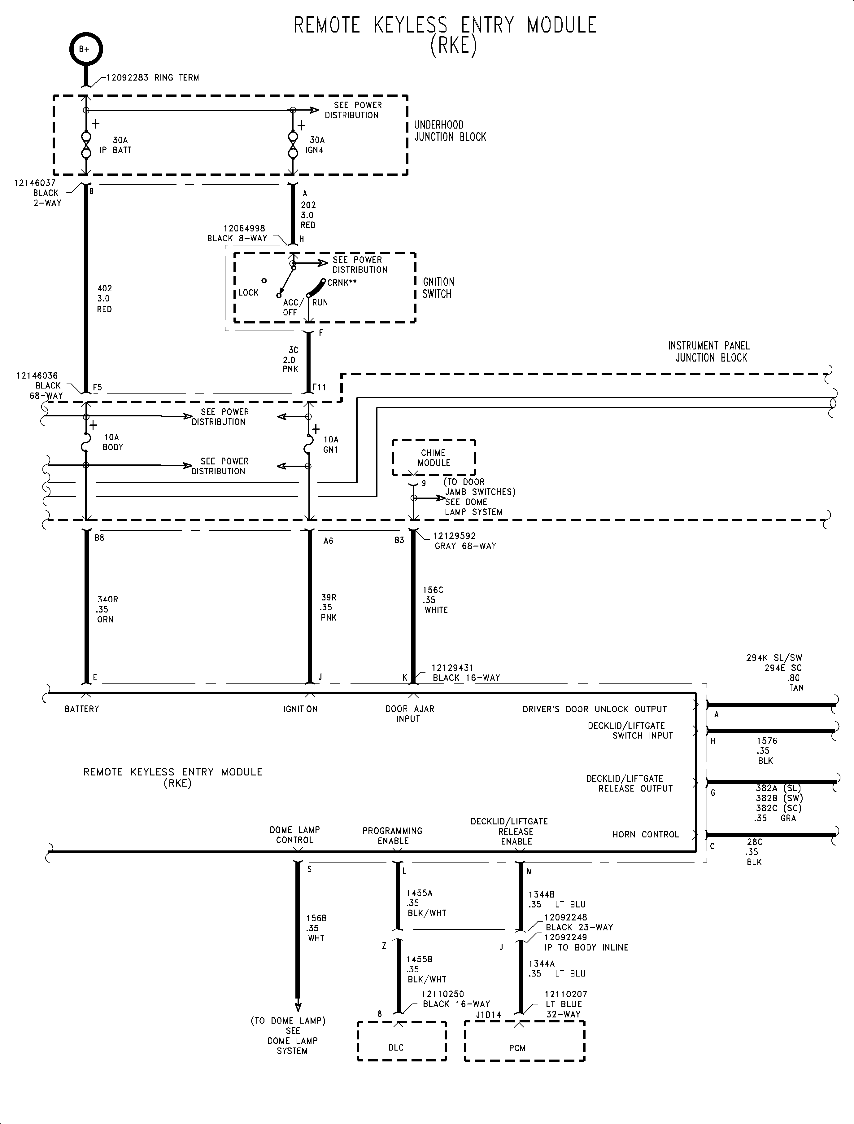
Remote Keyless Entry (RKE) System -- General Description

Remote keyless entry is a feature which allows for the operation of the door locks, interior lighting, and decklid/liftgate release from outside the vehicle.

The RKE system consists of a remote control door lock (RKE) module and 2 transmitters. The remote control door lock module can be programmed with up to 4 transmitters. The transmitter sends a signal to the remote control door lock module when the lock, unlock, or the vehicle symbol button is depressed. The remote control door lock module interprets the signal, decodes it and then executes it by activating the required circuitry to provide the requested function.

RKE Functions


Object Number: 881256  Size: SH

Lock

All doors will lock automatically when LOCK is pressed on the transmitter. If the horn chirp function is enabled, the horn will sound. The dome lamp will illuminate for 2 seconds as soon as the doors are closed.

Unlock

The drivers door will be unlocked automatically when UNLOCK is pressed on the transmitter. If UNLOCK is pressed again within 5 seconds, after the first time it was pressed, the remaining doors will be unlocked. The dome lamp illuminates for 40 seconds or until the ignition is tuned to RUN, with the dome lamp in the DOOR position and all the vehicle doors closed.

Decklid/Liftgate Release

The decklid, or liftgate, will unlock when the vehicle symbol is pressed on the transmitter with the engine OFF or the vehicle stationary. The dome lamp will come ON for 40 seconds. The dome lamp will turn OFF when the ignition is turned ON.

Illuminated Entry

The dome lamp in the DOOR position will be controlled by the doors and the transmitter. When a door is opened, the dome lamp will come ON. When all doors are closed, the dome lamp will stay ON for 40 seconds or until the ignition is turned ON.

Transmitter and Remote Control Door Lock (RKE) Module Range

The range of the RKE system is about 8 meters (26 feet). It is normal for any RKE system to experience a decrease in angle at certain times.

Important: If the transmitters won't work, perform the RKE System Check before continuing with the following transmitter and remote control door lock (RKE) module range diagnostics.

If the transmitters do not work, or if a customer is having to stand closer than normal to their Saturn for the transmitter to work:

    • The transmitter battery may have to be replaced. Refer to Replacing Battery in Transmitter in this bulletin.
    • The transmitter may need to be synchronized with the remote control door lock (RKE) module. Refer to synchronization in this bulletin.
    • The customer may be too far away from their Saturn. Check with the customer on how far away they are standing from the car.
    • The customer may be in a crowded parking lot and other vehicles are blocking the signal. Instruct the customer to take a few steps to the right or left if this happens again.
    • The customer may be experiencing radio frequency interference (RFI). RFI is caused by close proximity to radio broadcast stations, motors, heaters, alarm systems, and other frequencies that distort the RKE transmission frequency. Inform the customer and ask them to check for these items in their location.
    • The customer may need to stand closer to their Saturn in rain and snow.
    • The customer may need to stand closer to their Saturn in very high and low temperatures.
    • The orientation of the transmitter may need to be changed. The transmitter may work better held vertically or horizontally depending on the customer's location around the car.
    • Taking one step to the right or left may cause the transmitter to work. This is due to the Saturn's spaceframe structure.

Replacing the Battery in the Transmitter

Important: If the transmitters won't work, perform the RKE System Check before replacing the battery. Also, before replacing the battery in the transmitters, make sure that the battery is touching both negative and positive contacts inside the transmitters.


Object Number: 881271  Size: SH

For battery replacement, use a Panasonic type CR2032, 3 volt battery, or equivalent.

Important: Use of the wrong battery size may damage the transmitter. The correct battery can be obtained by calling

Digikey 1-800-344-4539

To replace the battery, perform the following procedure:


    Object Number: 862877  Size: SH
  1. Use a small coin or flat-bladed screwdriver, to separate the bottom of the transmitter from the top.
  2. Remove the battery and replace it with a new battery.

  3. Object Number: 862892  Size: SH
  4. Make sure the positive (+) side of the battery faces down.
  5. Snap the top and bottom sides of the transmitter together.
  6. Test the operation of the transmitter with the vehicle.
  7. If the transmitter does not work, try synchronizing your transmitter with your remote control door lock (RKE) module. Refer to Synchronization in this bulletin.

Synchronization

Synchronization may be necessary due to the security method used by this system. The transmitter does not send the same signal twice. The remote control door lock (RKE) module will not execute a signal it has been sent previously. This eliminates the possibility of the signal being recorded and played back.

Important: If the transmitters won't work, perform the RKE System Check before synchronizing the transmitters.

To synchronize a transmitter with a remote control door lock (RKE) module, simultaneously press and hold the LOCK and UNLOCK buttons on the transmitter, for approximately 5-7 seconds, near your Saturn. The door locks will cycle to confirm synchronization.

Important: If the transmitter is programmed to more than one Saturn, each Saturn must be within transmitter range during synchronization. Otherwise, the transmitter will not work for the Saturn that was out of range.

Programming Transmitters

Each transmitter is coded to prevent another transmitter from activating the RKE functions on another Saturn, as long as that particular transmitter has not been specifically programmed to that Saturn.

A transmitter can be programmed to as many different 1996 Saturn's as a customer owns, as long as they have the power door lock option. Each Saturn can be programmed with up to 4 transmitters.

Important: If a customer needs to obtain more transmitters, or replacement transmitters, make sure the customer is instructed to bring all their Saturn transmitters for programming. The remaining transmitters must be reprogrammed. Once the new transmitters are programmed to a particular Saturn, any lost transmitters will not unlock the Saturn.

To program the remote control door lock (RKE) module with a new transmitter, use the following instructions:


    Object Number: 862556  Size: CF
  1. Have all the transmitters that will be programmed to the Saturn present, even if only one is new. Put your key in the ignition, and keep it in the OFF position.
  2. Locate the data link connector (DLC). It is fastened to the bottom of the left side of the trim panel under the steering column.

  3. Object Number: 881279  Size: SH
  4. Use a jumper wire to provide a path from the remote keyless entry system program circuit, cavity 8 to ground cavity 4.
  5. Use an available Saturn lead kit and splice, to create a jumper wire as shown.

Saturn Lead Kit -- Saturn Part No.

Salmon Splice -- OTC Part No.

Salmon Splice -- Packard Electric Part No.

12112313

217670

12089189

12116709

217670

12089189

12112432

217670

12089189

Grounding the program circuit causes the door locks to lock and unlock once, and the decklid/liftgate to unlatch. After this cycling, the remote control door lock (RKE) module/controller is ready to be programmed with the transmitter.

  1. During steps 5 and 6, if you desire to have the horn chirp when you lock the Saturn with the transmitter, keep the ignition in the OFF position. If you do not want the horn to chirp when you lock the Saturn, turn the ignition key to the run position, and proceed with steps 5 and 6. This can be done individually for each transmitter.
  2. Keeping the program circuit grounded, simultaneously press and hold the LOCK and UNLOCK buttons on the transmitter for approximately 8 seconds.
  3. The door locks and the decklid/liftgate will cycle again to indicate that the transmitter is now ready to use. If there is no response, repeat this step, making sure both buttons are pressed down firmly. If there is still no response, check the transmitter battery and battery contacts. If you are only programming the remote control door lock (RKE) module with one transmitter, proceed to step 7.

  4. Still keeping the program circuit grounded, repeat step 2 with the next transmitter. You must not allow more than 1 minute between programming the transmitters, or the remote control door lock (RKE) module will exit programming mode and you will have to start over.
  5. If you accidentally disconnect the ground wire from the data link connector (DLC) before completing this step, you will have to start over at step 3. If you accidentally disconnect the ground wire from the data link connector after completing this step, only the first transmitter will be matched. If you make a mistake, start over at step 3.

  6. Remove the jumper wire.
  7. Test the operation of each transmitter with the Saturn.
  8. Close the decklid or liftgate.

Removal Procedure

For Sedans and Wagons:


    Object Number: 867848  Size: SH
  1. Disengage the seat cushion by pushing rearward, then upward at the 2 front retaining locations to release the rear cushion from the retainers.
  2. Slide the cushion from under the seat back guiding the seat belt buckle through the seat cushion and remove the seat cushion.

  3. Object Number: 878895  Size: SH
  4. Remove the rear seat carpet retainer molding.

  5. Object Number: 867263  Size: SH
  6. Lower the seat back.
  7. Remove the body lock trim finish molding by pulling firmly, starting at the bottom of the molding to disengage the clips.
  8. Slide the molding out from under the body pillar upper trim finish molding.

  9. Object Number: 881278  Size: SH
  10. Disconnect the remote control door lock (RKE) module connector.
  11. Pull firmly on the remote control door lock (RKE) module.
  12. Remove the remote control door lock (RKE) module.

For Coupes


    Object Number: 881171  Size: SH
  1. Remove the rear seat console inserts.
  2. Remove the rear seat center console fasteners.
  3. Disengage the seat cushion by pushing rearward, then upward at the 2 front retaining locations to release the rear cushion from the retainers.
  4. Slide the cushion from under the seat back guiding the seat belt buckle through the seat cushion and remove the seat cushion.

  5. Object Number: 881147  Size: SH
  6. Pull firmly on the right front lower garnish/sill molding to loosen the clips.

  7. Object Number: 881180  Size: SH
  8. Lower the rear seat back.
  9. Remove the right quarter trim panel fasteners.
  10. Remove the right quarter trim panel.

  11. Object Number: 881278  Size: SH
  12. Disconnect the remote control door lock (RKE) module connector.
  13. Pull firmly on the remote control door lock (RKE) module.
  14. Remove the remote control door lock (RKE) module.

Installation Procedure

For Coupes


    Object Number: 881278  Size: SH
  1. Install the remote control door lock (RKE) module.
  2. Connect the electrical connector.

  3. Object Number: 881180  Size: SH
  4. Install the right quarter trim panel.
  5. Install the right quarter trim panel fasteners.
  6. Raise the rear seat back.

  7. Object Number: 881147  Size: SH
  8. Position the right front lower garnish /sill molding to the vehicle and push at the clip locations.

  9. Object Number: 881171  Size: SH
  10. Position the rear edge of the rear seat cushion onto the rear compartment ramp. Route the seat belt buckles through the rear seat cushion openings. Make sure that the seat belts are not twisted or that the buckles are not stuck beneath the rear seat cushion.
  11. Align the retaining rod of the seat frame wire with the rear compartment lower retainers.
  12. Push rearward and down on the rear seat cushion to secure the wire frame assembly.
  13. Pull up on the cushion to verify that it is securely fastened into place.
  14. Install her rear seat center console fasteners and inserts.

For Sedans and Wagons


    Object Number: 881278  Size: SH
  1. Install the remote control door lock (RKE) module.
  2. Connect the electrical connector.

  3. Object Number: 867263  Size: SH
  4. Slide the body lock trim finish molding upper tab into the body lock pillar upper trim finish molding.
  5. Important: The outboard clip of the body lock pillar trim finish molding must be positioned under the weather-strip after installation.

  6. Line up the attaching clips and firmly snap the body lock trim finish molding into place.
  7. Raise the rear seat back.

  8. Object Number: 878895  Size: SH
  9. Install the rear seat carpet retainer molding.

  10. Object Number: 867848  Size: SH
  11. Position the rear edge of the rear seat cushion onto the rear compartment ramp. Route the seat belt buckles through the rear seat cushion openings. Make sure that the seat belts are not twisted or that the buckles are not stuck beneath the rear seat cushion.
  12. Align the seat frame wire with the rear compartment lower retainers and push rearward while pushing downward to the seat frame wire into the retainers. Pull up on the cushion to verify that it is secure.