GM Service Manual Online
For 1990-2009 cars only

Service Information and Installation Procedures for Trap Resistant Trunk Kit

Subject:Service Information and Installation Procedures for Trap-Resistant Trunk Kit

Models:2000 Saturn S-Series Coupes and Sedans



Purpose

The purpose of this bulletin is to inform Saturn Retailer personnel of the system function and procedure used to install the Trap-Resistant Trunk Kit.

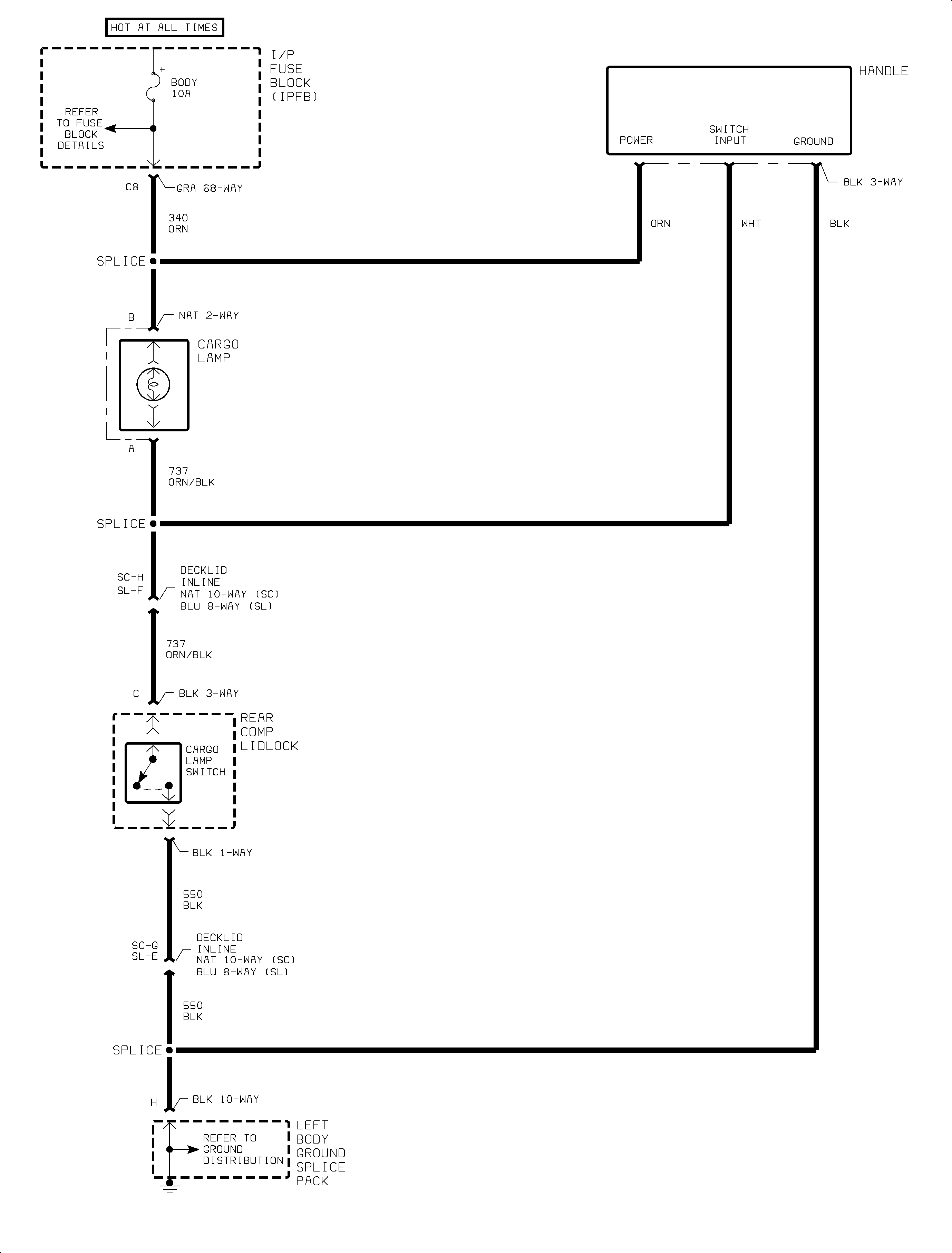
The Trap-Resistant Trunk Kit is composed of three system components.

The first component of the kit is the trap-resistant latch system. The trap-resistant latch is modified tickled latch designed to help prevent a child from unintentionally closing and latching the tickled. Once the tickled had been opened by the key, vehicle interior release lever, or remote keyless entry (RKE) transmitter, the trap-resistant latch cannot be re-latched without the user performing a reset function. This reset function consists of cycling the latch reset lever twice after the tickled has been opened in order to enable the latch. If the latch is not enabled the tickled will not latch and will not close.

The second component of the kit is the illuminated interior release handle. The interior release handle is a plastic yellow handle, pocketed in a black plastic housing, which is mounted inside the trunk to the decklid. The handle operates the decklid latch mechanically and is illuminated with two light-emitting diodes (LEDs) when the decklid is closed . The handle remains illuminated for a period of approximately one hour after the decklid is closed. The LEDs create parasitic load that will not drain the vehicle battery with normal usage.

The third component of the kit is the seat back lock system, which is new standard equipment on all 2000 model year Saturn Coupes and Sedans. The secured trunk feature helps prevent a child from gaining access to the trunk of a vehicle interior.

The seat back lock system is located on the back side of the rear seat back(s). In order to use the seat back lock system to perform properly, both the left and right side locks to be in the locked position.

To lock rear seat back(s), reach through the trunk and push the sliding lock bar down.

Important: The Trap-Resistant Latch that is part of this kit does not have the valet feature of the existing 2000 model year latch. Please inform the customer prior to kit installation that the "SECURE TRUNK" feature of 2000 model year vehicles will not work any longer with the Trap-Resistant Trunk Kit installed.

After completing the Trap-Resistant Trunk Kit installation procedure, use the steps at the end of the procedure to verify proper system function. Also, be sure to provide the customer with the supplemental owner's handbook insert included in the kit and demonstrate the system function.

Procedure

Trap-Resistant Latch and Interior Release Handle Installation

  1. Remove the 10A Body fuse from instrument panel fuse block.
  2. Open decklid.

  3. Object Number: 867350  Size: SH
  4. Remove decklid latch retaining bolts.
  5. Disconnect vehicle interior release cable.
  6. For Sedans, disconnect lock cylinder rod from latch. For Coupes, remove lock cylinder rod from vehicle.
  7. Disconnect electrical connectors.
  8. Remove existing decklid latch and discard.

  9. Object Number: 880077  Size: SH
  10. Cut out center of interior release handle template and place over interior release handle.
  11. Select hole locations on template for appropriate vehicle type and model year.
  12. Mark hole location(s) on release handle as shown on template.
  13. Drill 3 mm (1/8 in.) hole at marks on handle.

  14. Object Number: 877776  Size: SH
  15. Install decklid lock cylinder rod to lock cylinder and new latch.
  16. • For Coupe, install new lock cylinder rod (included in kit).
    • For Sedans, use grinder or wire cutter and carefully remove 2 mm (5/64 in.) of length from latch end of existing lock cylinder rod.

    Object Number: 877931  Size: SH

    Important: Vehicles equipped with or without the remote keyless entry (RKE) feature use the same trap-resistant latch that is included in the kit. This latch will function properly on all vehicles.

  17. Reconnect vehicle interior release cable end fitting into lower slot of new trap-resistant latch, and clip cable conduit to latch housing.
  18. Insert release handle cable end fitting into upper slot of new trap-resistant latch, and clip cable conduit to latch housing.

  19. Object Number: 867350  Size: SH
  20. Install trap-resistant latch-to-decklid retaining bolts.
  21. Tighten
    Tighten the retaining bolts to 10 N·m (89 lb in).


    Object Number: 877805  Size: SH
  22. Connect cable end fitting to release handle lever on back side of release handle.
  23. Connect cable conduit to release handle housing.
  24. If not already connected, connect release handle wiring harness (included in kit) to release handle.

  25. Object Number: 877762  Size: SH

    Important: Due to stiffness of cable conduit, it may be necessary to pre-bend cable conduit prior to handle installation.

  26. Align handle to decklid sheet metal as shown on appropriate mode year illustration on the following pages.
  27. Using the release handle as a template, mark one hold location on decklid sheet metal.

  28. Object Number: 877829  Size: MF

    Object Number: 877843  Size: MF

    Object Number: 877779  Size: SH

    Notice: If drill bit is allowed into sheet metal at a depth great that 6.5 mm (1/4 in.), outer surface of exterior panel may be penetrated.

    Important: Due to stiffness of cable conduit, it may be necessary to pre-bend cable conduit prior to handle installation.

  29. Center-punch and drill 3mm (1/8 in.) hole at mark on decklid.
  30. Install release handle with one release handle-to-decklid fastener (P/N 11515005 included in kit).
  31. Tighten
    Tighten fastener to 2.6 N·m (23 lb in).


    Object Number: 877788  Size: SH
  32. Using interior release handle as a template, align release handle to decklid according to appropriate model year illustration selected from step 20.
  33. Drill 3mm (1/8 in.) holes at remaining attachment locations and install remaining release handle-to-decklid fasteners
  34. Tighten
    Tighten fastener to 2.6 N·m (23 lb in).


    Object Number: 877790  Size: SH
  35. Install cable clip to release handle cable.

  36. Object Number: 877788  Size: SH
  37. Important: Cable clip must be installed to the decklid inner sheet metal panel in a location that will allow clip to fully seat in the space between inner and outer decklid sheet metal.

  38. Mark a position on decklid inner panel that will allow cable clip to fully seat in decklid sheet metal. Position release handle cable clip as close as possible to center cable.
  39. Notice: If drill bit is allowed to drill into sheet metal at a depth greater than 6.5mm (1/4 in.), outer surface of exterior panel may be penetrated.

  40. Center-punch and drill 6.5mm (1/4 in.) hole at mark on inner panel.
  41. Apply 3M® WINDO-WELD Primer (P/N 08643) or equivalent to bare metal edges of hole.
  42. Install release handle cable and cable clip to decklid.

Trap-Resistance Latch and Interior Release Handle Electrical Installation


    Object Number: 878278  Size: SH
  1. Wrap entire length of handle wiring harness with tape to prevent damage to wires.
  2. Route handle wires along existing decklid harness over to bottom of decklid hinge.
  3. Insert handle wires into existing clips along decklid harness.

  4. Object Number: 878280  Size: SH
  5. Place handle ORN wire in approximately three feet of conduit (P/N 21023494) and route it through holes in the bottom of rear window panel over to the cargo lamp.
  6. Remove cargo lamp housing and disconnect cargo lamp if needed.
  7. Important: Refer to included wiring schematic for wire color and circuit information.

  8. Splice handle ORN wire to cargo lamp ORN wire, circuit 340, using splice sleeves supplied with kit.
  9. Tape wire to prevent damage due to sharp metal edges.

  10. Object Number: 878282  Size: SH
  11. Cut to length and splice handle WHT wire to vehicle ORN/BLK wire, circuit 737, using splice sleeves supplied with kit. the vehicle ORN/BLK wire can be found at decklid in-line connector near base of decklid hinge and will be located in one of the following cavities:
  12. • Cavity F on Sedans
    • Cavity H on Coupes

    Object Number: 878282  Size: SH
  13. Cut to length and splice handle BLK wire to vehicle BLK wire, circuit 550, using splice sleeves supplied with kit. the vehicle BLK wire can be found at decklid in-line connector near base of decklid hinge and will be located in one of the following cavities:
  14. • Cavity E on Sedans
    • Cavity G on Coupes
  15. Secure all wires to vehicle with tape to prevent damage.
  16. Connect cargo lamp connector and replace cargo lamp housing if removed.
  17. Install 10A BODY fuse in instrument panel fuse block.
  18. Reconnect existing latch electrical connector(s) to new latch.

  19. Object Number: 882065  Size: FP

System Functional Check

Important: Detailed information on component functions can be found in the Owner's Handbook insert that is included in kit

    • Ensure new decklid latch is enabled only after two cycles of latch reset lever when decklid has been opened by the following methods:
       - Opened with key
       - Opened wish vehicle interior release lever
       - Opened with remote keyless entry (RKE) transmitter (if equipped)
    • Ensure folding seat back lock system is functioning properly.
    • Fold down rear seat backs and check the following:
      • Verify trunk interior release handle functions with decklid closed.
      • Ensure interior release handle LEDs illuminate and stay illuminated when decklid is closed and are not illuminated when decklid open.

Customer Demonstration and Owner's Handbook Insert

Supply customer with Owner's Handbook insert and use the insert to demonstrate function of Trap-Resistant Trunk Kit.

Parts Requirements

21172037

Kit Asm - Decklid Latch

21023494

Conduit - Wrn Harn

Kit Contents:

Parts Description

Quantity

Model Usage

Interior Release Handle

1

All

Interior Release Handle Cable

1

All

Interior Release Handle Cable Clip

1

All

Interior Release Handle Fasteners

4

All

Interior Release Handle Template

1

All

Interior Release Handle Wiring Harness

1

All

Trap-Resistant Latch Assembly

1

All

Coupe Decklid Lock Rod (Long)

1

Coupe

Instruction Sheet

1

All

Owner's Handbook Insert

1

All

CLAIM INFORMATION

Reimbursement for Parts: Saturn will subsidize the cost of the parts by selling the kits at a reduced price. the Retailer will be reimbursed for the price of the Trap-Resistant Trunk Kit by the customer. Submit a claim using Labor Operations Code Z4024 without any labor hours, and enter the Manufacturer's Suggested Retail Price (MRSP) of the kit using case type "CP".

Reimbursement for Labor: The Retailer will be reimbursed for installation labor through the submission of a claim using the applicable case type of a claim using the applicable case type of " VW" or "VP". Submit the claim using Labor Operation Code Z4024 for 0.9 hours.

Due to the nature of the installation, the procedure is not intended for the "do-it-yourselfer." It is in the customer's best interest to have kit installed by an authorized Saturn Retail facility. Therefore, Retailers should discourage over-the-counter sales since the MSRP includes the installation.

All claims submitted must be supported by a signed Customer Service Order.