| Subject: | (MIL) SERVICE ENGINE SOON Telltale Illuminated With DTC P0711 After Vehicle is Flat-Towed With All Four Wheels On The Ground (Clear DTC and Retest) |
| Models: | 1996-2002 Saturn S-Series vehicles equipped with automatic transaxle (RPO MP6/MP7) |
Some customers may comment tat the (MIL) SERVICE ENGINE SOON telltale is illuminated after vehicle is flat-towed with all four wheels on the ground.
While flat-towing a vehicle will all four wheels on the ground, the automatic transaxle fluid temperatures will increase as vehicle is being towed. Starting and driving the vehicle immediately following towing may set DTC P0711-Transaxle fluid temperature (TFT) Sensor Performance.
Refer to page 3 of this bulletin for specific DTC P0711 information.
Follow the procedure on page 2 of this bulletin to clear DTC P0711. Also, advise the customer of the cause of the DTC being set and explain the importance of correct automatic transaxle fluid level when flat-towing the vehicle with all four wheels on the ground.
Refer the customer to Service Information Bulletin 97-I-19A for comprehensive information on preparing their vehicle for flat-towing.
Important: DTC P0711 cannot be cleared using a scan tool until the TFT sensor passes at least two warm-up cycles.
Tighten
Battery Terminal Bolts: 17 N·m (13 lb ft)
Tighten
Battery Terminal Bolts: 17 N·m (13 lb ft)
DTC P0711 sets when the transaxle fluid temperature (TFT) sensor reading is above a calibrated temperature (below a calibrated voltage) based on IAT temperature when vehicle has been started cold. A cold start is determined when ECT and IAT readings are within a certain temperature of each other. This DTC is a rational check of the TFT sensor.
DTC P0711 will set if TFT sensor temperature is greater than 9°C plus IAT sensor temperature when:
| • | Vehicle is in cold soak (ECT and IAT temperature are within +/- 6° C [11° F] of each other |
| • | Condition exists for longer than 2 seconds |
| • | IAT is less than 40° C (104°F) |
| • | No ECT, IAT, P0710, P0712, P0713, P0714 DTCs have been set |
DTC P0711 diagnostic runs once per ignition cycle once the above conditions have been met.
DTC P0711 is a type A DTC.
Important: If DTC P1635 is also set, diagnose that DTC first. A short to ground/short to voltage on the 5 volt reference circuit may set this DTC.
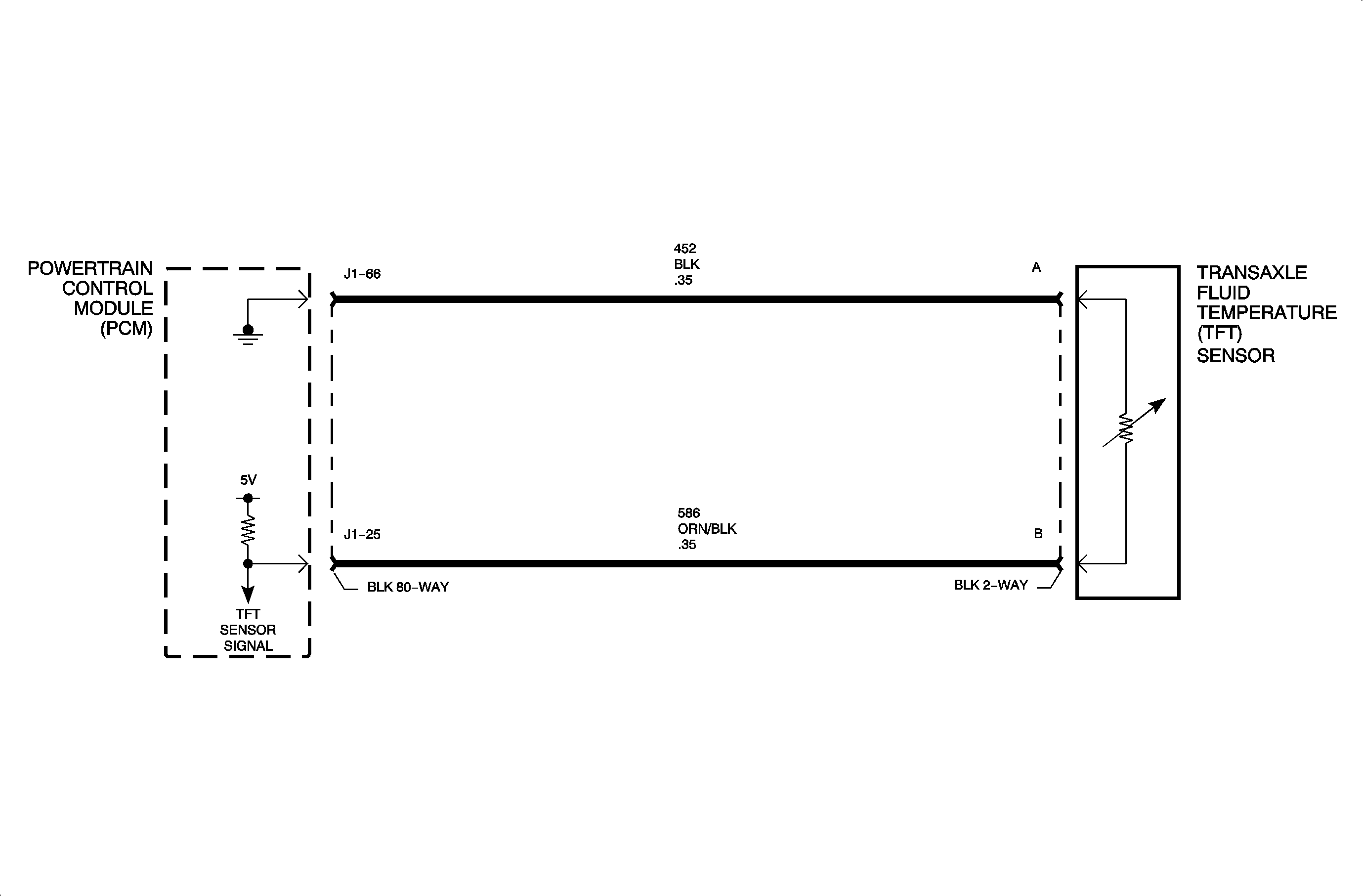
DTC P0711 indicates a skewed TFT sensor or decreased sensor circuit resistance.
Transaxle fluid leaking from the sensor into the sensor connector will cause a shorted condition across the sensor terminals resulting in an elevated temperature.
DTC P0711 may set if the vehicle is towed with the front or all four wheels on the ground. If this is suspected, clear the DTC and return vehicle to the customer. Refer to page 2 of this bulletin for Clearing DTC procedure.
To receive credit for this repair during warranty coverage period, submit a claim through the Saturn Dealer System as follows:
Case Type | Description | Labor Operation Code | Time |
|---|---|---|---|
VW | Clear DTC(s), Disconnect Battery Cables and Ground Together | Z4161 | 0.2 hrs |