GM Service Manual Online
For 1990-2009 cars only

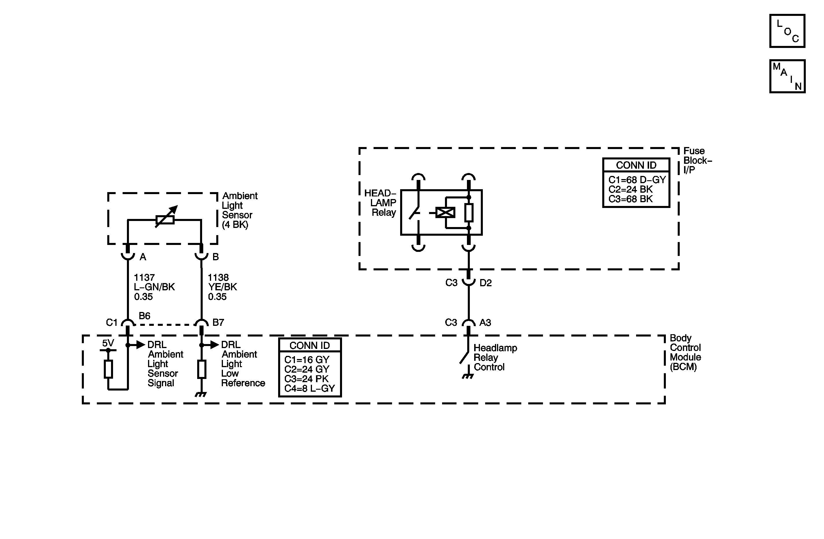
Object Number: 1351205  Size: MF

Circuit Description

The body control module (BCM) turns ON the headlamp relay when the ambient light sensor senses a dark condition. Battery positive voltage is supplied to the headlamp relay at all times through the BACKUP/TURN fuse. The BCM grounds the headlamp relay control circuit in order to activate the relay.

Conditions for Running the DTC

    • The ignition switch is in the ON position.
    • The ambient light sensor senses a dark condition, automatic lamp control (ALC) headlamps ON.

Conditions for Setting the DTC

The headlamp relay control circuit is open for 5 seconds.

Action Taken When the DTC Sets

The SERVICE indicator illuminates.

Conditions for Clearing the DTC

    • The conditions for setting the DTC are no longer present.
    • A history DTC clears after 100 malfunction free ignition cycles.
    • The BCM receives the clear code command from the scan tool.

Diagnostic Aids

    • Turn the ignition switch to the OFF position, cover the ambient light sensor on the dash, wait for 15 seconds and then return the ignition to the ON position. The low beam headlamps should illuminate.
    • If the DTC is a history DTC, the problem may be intermittent. Refer to Testing for Intermittent Conditions and Poor Connections in Wiring Systems.

Test Description

The numbers below refer to the step numbers on the diagnostic table.

  1. Listen for an audible click when the headlamp relay operates. Command both the ON and OFF states. Repeat the commands, as necessary.

  2. Tests for voltage at the coil side of the headlamp relay. The BACKUP/TURN fuse supplies battery positive voltage to the coil side of the headlamp relay.

  3. Verifies that the BCM is providing ground to the headlamp relay.

Step

Action

Yes

No

Schematic Reference: Headlights/Daytime Running Lights (DRL) Schematics

1

Did you perform the Lighting System Diagnostic System Check?

Go to Step 2

Go to Diagnostic System Check - Lighting Systems

2

  1. Install a scan tool.
  2. Turn ON the ignition, with the engine OFF.
  3. With a scan tool, command the headlamp relay ON and OFF.

Does the headlamp relay turn ON and OFF with each command?

Go to Testing for Intermittent Conditions and Poor Connections in Wiring Systems

Go to Step 3

3

  1. Turn OFF the ignition.
  2. Disconnect the headlamp relay.
  3. Turn ON the ignition, with the engine OFF.
  4. Probe the coil side battery positive voltage circuit of the headlamp relay with a test lamp that is connected to a good ground.

Does the test lamp illuminate?

Go to Step 4

Go to Step 8

4

  1. Connect a test lamp between the control circuit of the headlamp relay and the coil side battery positive voltage circuit of the headlamp relay.
  2. With a scan tool, command the headlamp relay ON and OFF .

Does the test lamp turn ON and OFF with each command?

Go to Step 6

Go to Step 5

5

Test the control circuit of the headlamp relay for a high resistance or an open. Refer to Circuit Testing and Wiring Repairs in Wiring Systems.

Did you find and correct the condition?

Go to Step 11

Go to Step 7

6

Inspect for poor connections at the headlamp relay. Refer to Testing for Intermittent Conditions and Poor Connections and Connector Repairs in Wiring Systems.

Did you find and correct the condition?

Go to Step 11

Go to Step 9

7

Inspect for poor connections at the harness connector of the body control module. Refer to Testing for Intermittent Conditions and Poor Connections and Connector Repairs in Wiring Systems.

Did you find and correct the condition?

Go to Step 11

Go to Step 10

8

Repair the open in the coil side battery positive voltage circuit of the headlamp relay. Refer to Wiring Repairs in Wiring Systems.

Did you complete the repair?

Go to Step 11

--

9

Replace the headlamp relay. Refer to Relay Replacement in Wiring Systems.

Did you complete the replacement?

Go to Step 11

--

10

Important: Perform the set up procedure for the body control module.

Replace the body control module. Refer to Body Control Module Replacement in Body Control System.

Did you complete the replacement?

Go to Step 11

--

11

  1. Use the scan tool in order to clear the DTCs .
  2. Operate the vehicle within the Conditions for Running the DTC as specified in the supporting text.

Does the DTC reset?

Go to Step 2

System OK