GM Service Manual Online
For 1990-2009 cars only
Makes
🢒
Saturn
🢒
2005
🢒
VUE - FWD
🢒
Vehicle Control Systems
🢒
Vehicle DTC Information
🢒 SIR Schematics
Figure
1:
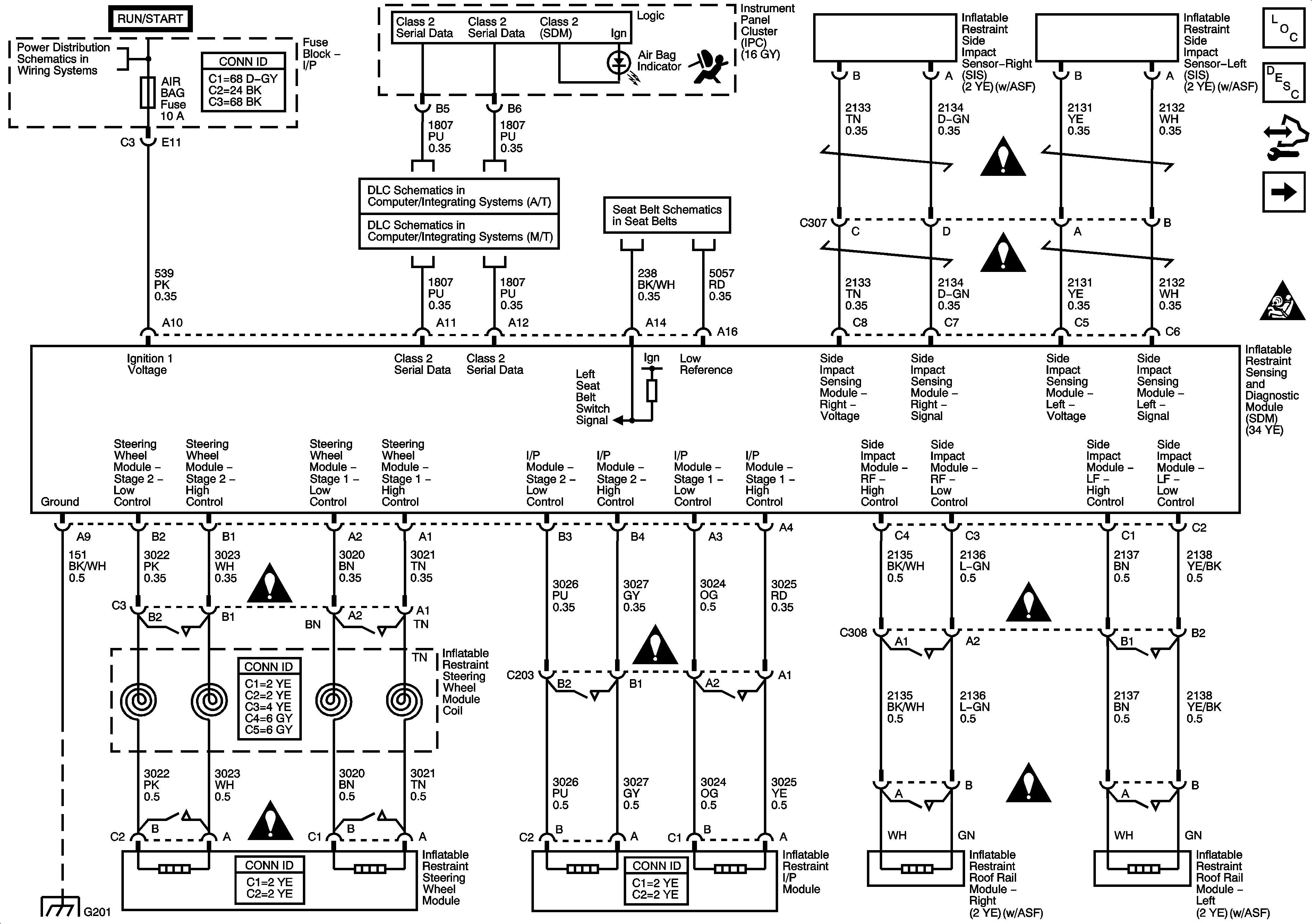
Module and Sensors
Figure
2:
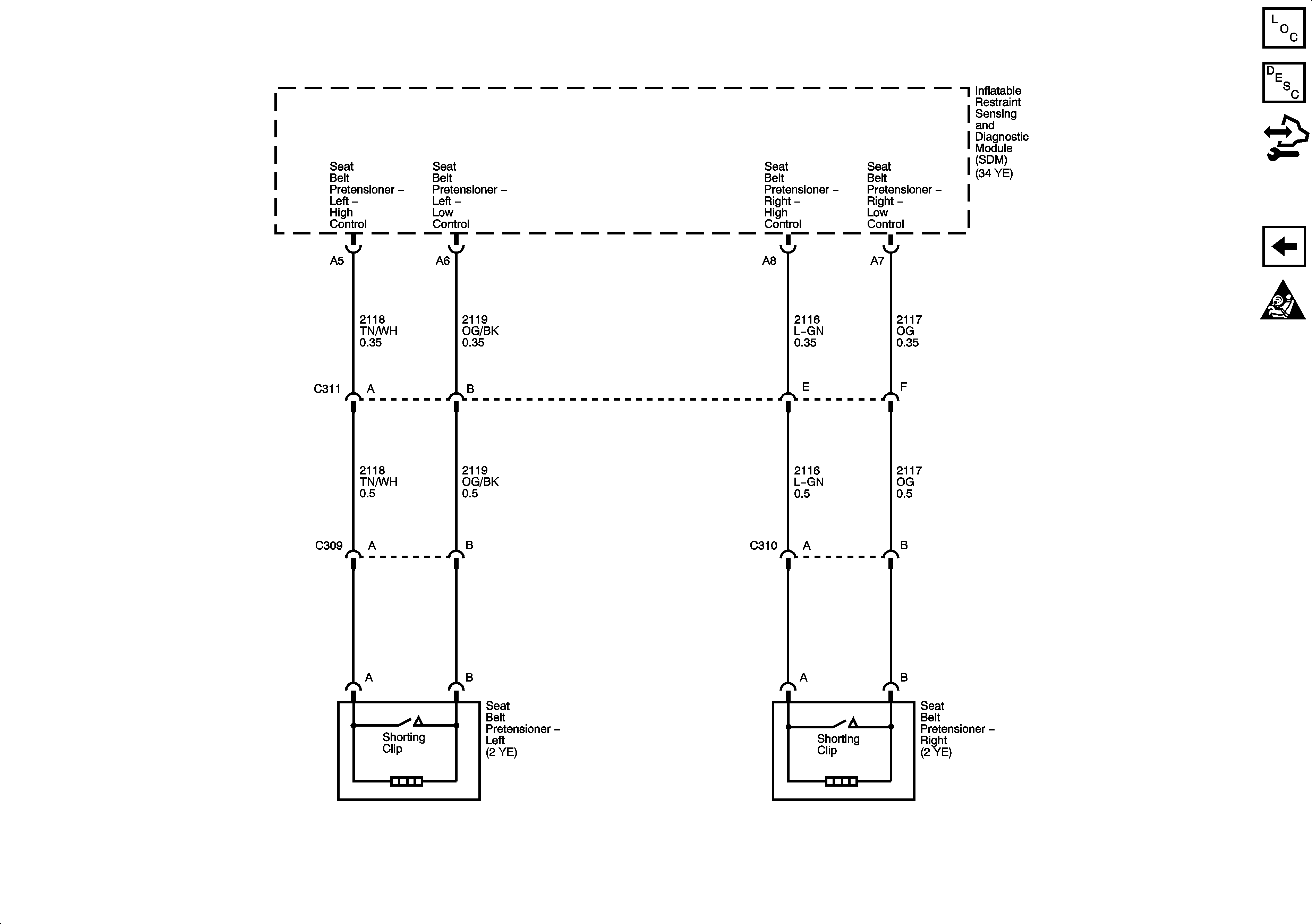
Pretentioners