GM Service Manual Online
For 1990-2009 cars only

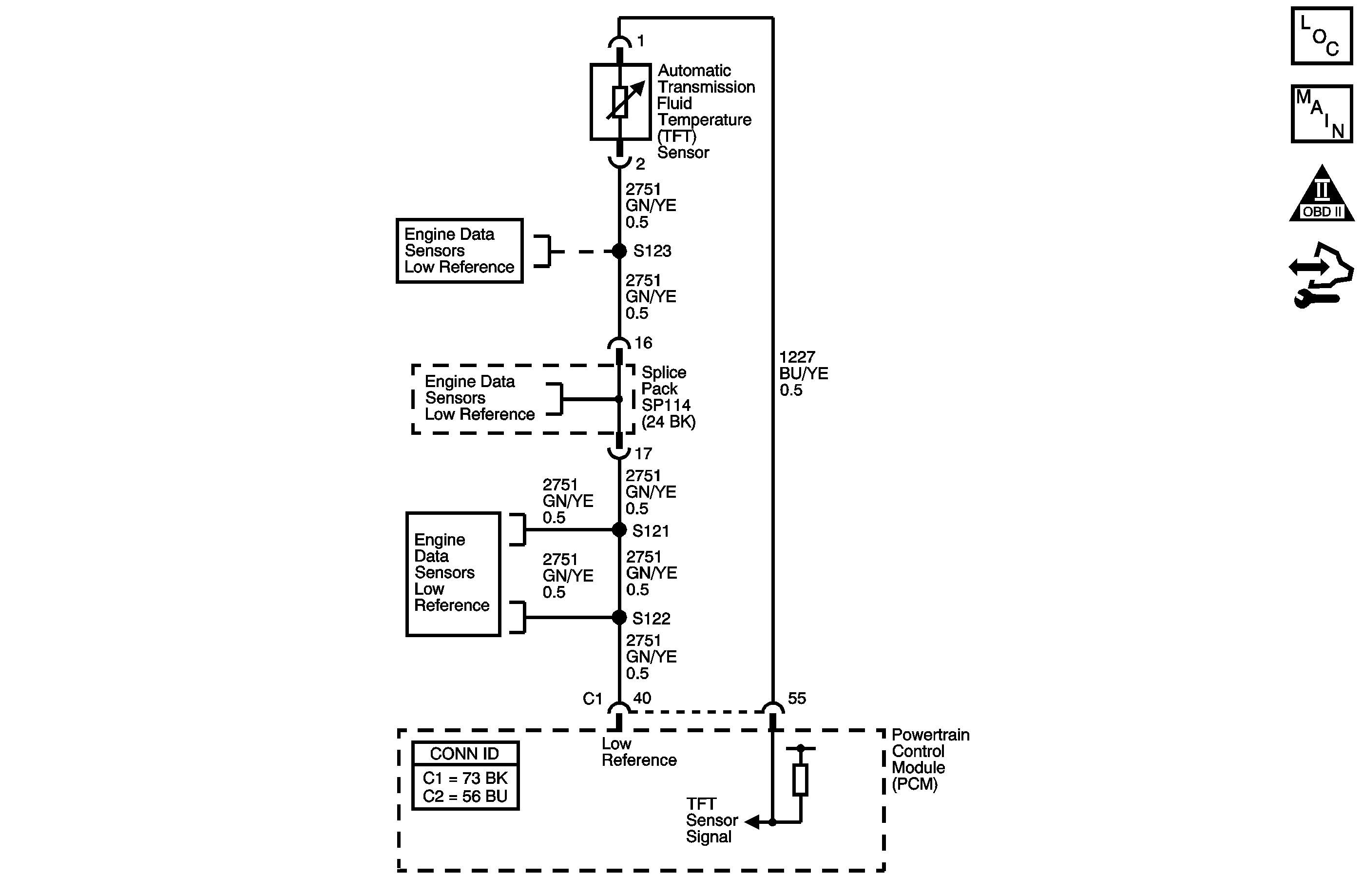
Object Number: 1466932  Size: MF
Master Electrical Component List
Automatic Transmission Controls Schematics
OBD II Symbol Description Notice
Control Module References

Circuit Description

The automatic transmission fluid temperature (TFT) sensor is a thermistor. The powertrain control module (PCM) supplies a 5 volt reference signal to the sensor. When the transmission fluid is cold, the sensor resistance is high and the PCM senses a high signal voltage. As the transmission fluid warms, the sensor resistance lowers and the PCM senses lower voltage. The PCM uses the TFT reading in order to control the torque converter clutch (TCC), line pressure adjustments, and temperature compensated shifts.

When the PCM detects a continuous short to ground in the TFT circuit or the TFT sensor, DTC P0712 sets. DTC P0712 is a type C DTC.

DTC Descriptor

This diagnostic procedure supports the following DTC:

DTC P0712 Transmission Fluid Temperature (TFT) Sensor Circuit Low Voltage

Conditions for Running the DTC

    • No TFT DTC P0711.
    • The system voltage is 11 volts or greater.

Conditions for Setting the DTC

The TFT sensor voltage is 0.07 V or less for at least 10 seconds.

Action Taken When the DTC Sets

    • The PCM does not illuminate the malfunction indicator lamp (MIL).
    • The PCM illuminates the SVS Lamp.
    • The PCM flashes the Coolant Temp indicator.
    • The PCM ignores the input from TFT sensor and uses the default values.
    • The PCM records the operating conditions when the Conditions for Setting the DTC are met. The PCM stores this information as Failure Records.
    • The PCM stores DTC P0712 in PCM history.

Conditions for Clearing the SVS Lamp/DTC

    • The PCM turns OFF the SVS lamp when the condition no longer exists.
    • A scan tool can clear the SVS lamp/DTC.
    • The PCM clears the DTC from PCM history if the vehicle completes 40 warm-up cycles without a non-emission related diagnostic fault occurring.

Diagnostic Aids

    • Inspect the connectors at the PCM, the TFT sensor, and all other circuit connecting points for an intermittent condition. Refer to Testing for Intermittent Conditions and Poor Connections in Wiring Systems.
    • Inspect the circuit wiring for an intermittent condition. Refer to Testing for Electrical Intermittents in Wiring Systems.
    • Inspect for a shorted TFT sensor wire.
    • Inspect for a faulty TFT sensor.
    • Inspect for an internal fault of the PCM.

Test Description

The numbers below refer to the step numbers on the diagnostic table.

  1. This step verifies DTC P0712, by indicating a short to ground. If the scan tool does not display a transmission fluid temperature equal to or greater than 159°C (318°F), then the DTC is intermittent.

  2. This step isolates the PCM and the engine wiring harness. If the scan tool displays a transmission fluid temperature less than -29°C (-20°F), then the PCM and the engine wiring harness are not damaged.

Step

Action

Values

Yes

No

1

Did you perform the Diagnostic System Check - Vehicle?

--

Go to Step 2

Go to Diagnostic System Check - Vehicle in Vehicle DTC Information

2

  1. Install a scan tool.
  2. Turn ON the ignition, with the engine OFF.
  3. Important: Before clearing the DTC, use the scan tool in order to record the Failure Records. Using the Clear Info function erases the Failure Records from the PCM.

  4. Record the DTC Failure Records.
  5. Clear the DTC.
  6. Select Trans. Fluid Temp. on scan tool.

Does the scan tool display a Trans. Fluid Temp. less than the specified value?

159°C (318°F)

Go to Intermittent Conditions in Engine Controls - 3.5L (L66)

Go to Step 3

3

  1. Turn OFF the ignition.
  2. Disconnect the TFT sensor. Additional DTCs may set.
  3. Turn ON the ignition, with the engine OFF.

Does the scan tool display a Trans. Fluid Temp. less than the specified value?

-29°C (-20°F)

Go to Step 5

Go to Step 4

4

Test the TFT sensor signal circuit for a short to ground. Refer to Testing for Short to Ground and Wiring Repairs in Wiring Systems.

Did you find and correct the condition?

--

Go to Step 7

Go to Step 6

5

Replace the TFT sensor. Refer to Transmission Fluid Temperature Sensor Replacement .

Did you complete the replacement?

--

Go to Step 7

--

6

Replace the PCM. Refer to Control Module References in Computer/Integrating Systems for replacement, setup, and programming.

Did you complete the replacement?

--

Go to Step 7

--

7

Perform the following procedure in order to verify the repair:

  1. Select DTC.
  2. Select Clear Info.
  3. Operate the vehicle under the following conditions:
  4. • Turn ON the ignition with the engine OFF.
    • The Trans. Fluid Temp. must be between -20 and +110°C (-4 and +230°F) for 10 seconds.
  5. Select Specific DTC.
  6. Enter DTC P0712.

Has the test run and passed?

--

Go to Step 8

Go to Step 2

8

With the scan tool, observe the stored information, capture info. and DTC info.

Does the scan tool display any DTCs that you have not diagnosed?

--

Go to Diagnostic Trouble Code (DTC) List - Vehicle in Vehicle DTC Information

System OK