GM Service Manual Online
For 1990-2009 cars only

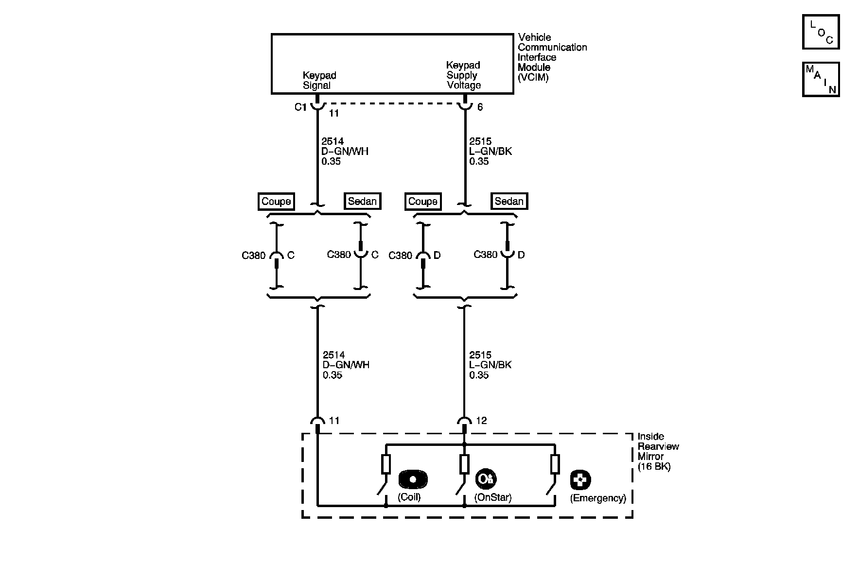
Object Number: 877506  Size: MF
Master Electrical Component List
OnStar Schematics

Circuit Description

The OnStar® button assembly consists of 3 buttons: Call/Answer, OnStar® Call Center and OnStar® Emergency. Ten volts is supplied to the button assembly on the keypad supply voltage circuit. Each of the buttons, when pressed, completes the circuit across a resister allowing a specific voltage to be returned to the vehicle communication interface module (VCIM) on the keypad signal circuit. Depending upon the voltage range returned, the VCIM is able to identify which button has been pressed.

DTC Descriptor

This diagnostic procedure supports the following DTC:

DTC B2482 Cellular Phone Select Switch Range/Performance

Conditions for Running the DTC

    • The ignition must be in the RUN or ACC position.
    • The system voltage is at least 9.5 volts and no more than 15.5 volts.
    • All the above conditions are present for greater than 15 seconds.

Conditions for Setting the DTC

    • A button is pressed or stuck for more than 15 seconds.
    • The above conditions are present for greater than 15 seconds.

Action Taken When the DTC Sets

    • The VCIM will ignore all inputs from the OnStar® button assembly.
    • No calls can be placed.
    • The OnStar® status LED turns RED.

Conditions for Clearing the DTC

    • The button will be declared unstuck after a 50 ms normal cycle.
    • A history DTC clears after 50 malfunction free ignition cycles.
    • The VCIM receives the clear DTC command from the scan tool.

Test Description

The number below refers to the step number on the diagnostic table.

  1. This step tests the at rest state of the keypad signal circuit.

Step

Action

Value(s)

Yes

No

Schematic Reference: OnStar Schematics

Connector End View Reference: Cellular Communication Connector End Views

1

Did you perform the Diagnostic System Check - Vehicle?

--

Go to Step 2

Go to Diagnostic System Check - Vehicle in Vehicle DTC Information

2

  1. Turn the ignition ON, with the engine OFF.
  2. Measure the voltage from the keypad signal circuit at the vehicle communication interface module (VCIM) connector to a good ground.

Does the voltage measure greater than the specified value?

0 V

Go to Step 3

Go to Step 4

3

Test the keypad signal circuit for a short to voltage or high resistance. Refer to Circuit Testing and Wiring Repairs in Wiring Systems.

Did you find and correct the condition?

--

Go to Step 9

Go to Step 5

4

Test the keypad supply voltage circuit for an open or short. Refer to Circuit Testing and Wiring Repairs in Wiring Systems.

Did you find and correct the condition?

--

Go to Step 9

Go to Step 6

5

Inspect for poor connections at the harness connector of the rearview mirror. Refer to Testing for Intermittent Conditions and Poor Connections and Connector Repairs in Wiring Systems.

Did you find and correct the condition?

--

Go to Step 9

Go to Step 7

6

Inspect for poor connections at the harness connector of the VCIM. Refer to Testing for Intermittent Conditions and Poor Connections and Connector Repairs in Wiring Systems.

Did you find and correct the condition?

--

Go to Step 9

Go to Step 8

7

Replace the rearview mirror. Refer to Inside Rearview Mirror Replacement in Stationary Windows.

Did you complete the replacement?

--

Go to Step 9

--

8

Replace the VCIM. Refer to Control Module References in Computer/Integrating Systems for replacement, setup, and programming.

Did you complete the replacement?

--

Go to Step 9

--

9

  1. Use the scan tool in order to clear the DTCs.
  2. Operate the vehicle within the Conditions for Running the DTC as specified in the supporting text.

Does the DTC reset?

--

Go to Step 2

System OK