GM Service Manual Online
For 1990-2009 cars only
Makes
🢒
Suzuki
🢒
2008
🢒
XL-7 FWD
🢒
Diagnostic Navigation
🢒
Vehicle Diagnostic Information
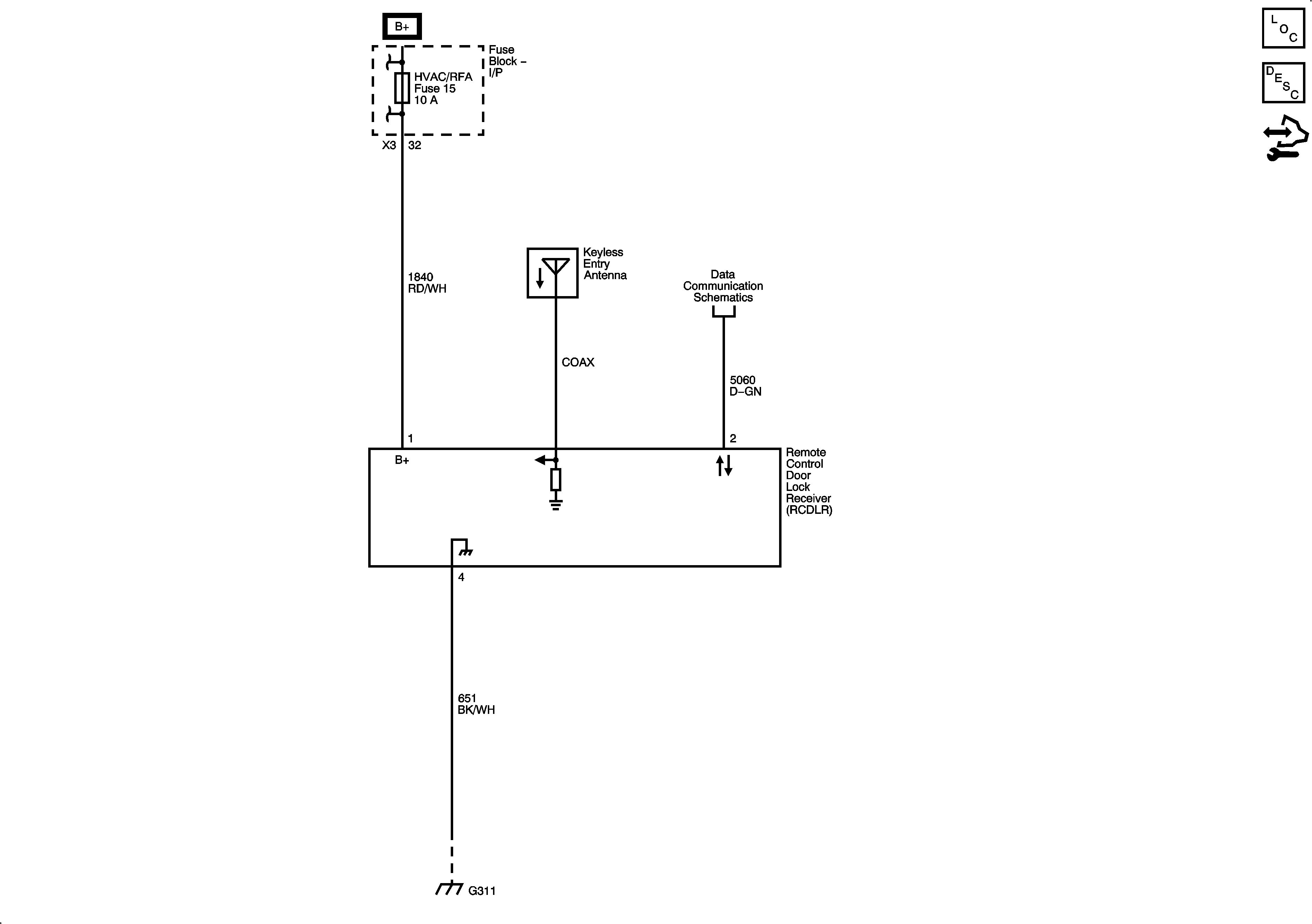
🢒 Remote Function Schematics
Keyless Entry
Master Electrical Component List
Keyless Entry System Description and Operation without Accessory 2 Way remote
Control Module References