GM Service Manual Online
For 1990-2009 cars only
Makes
🢒
Buick
🢒
2005
🢒
LeSabre
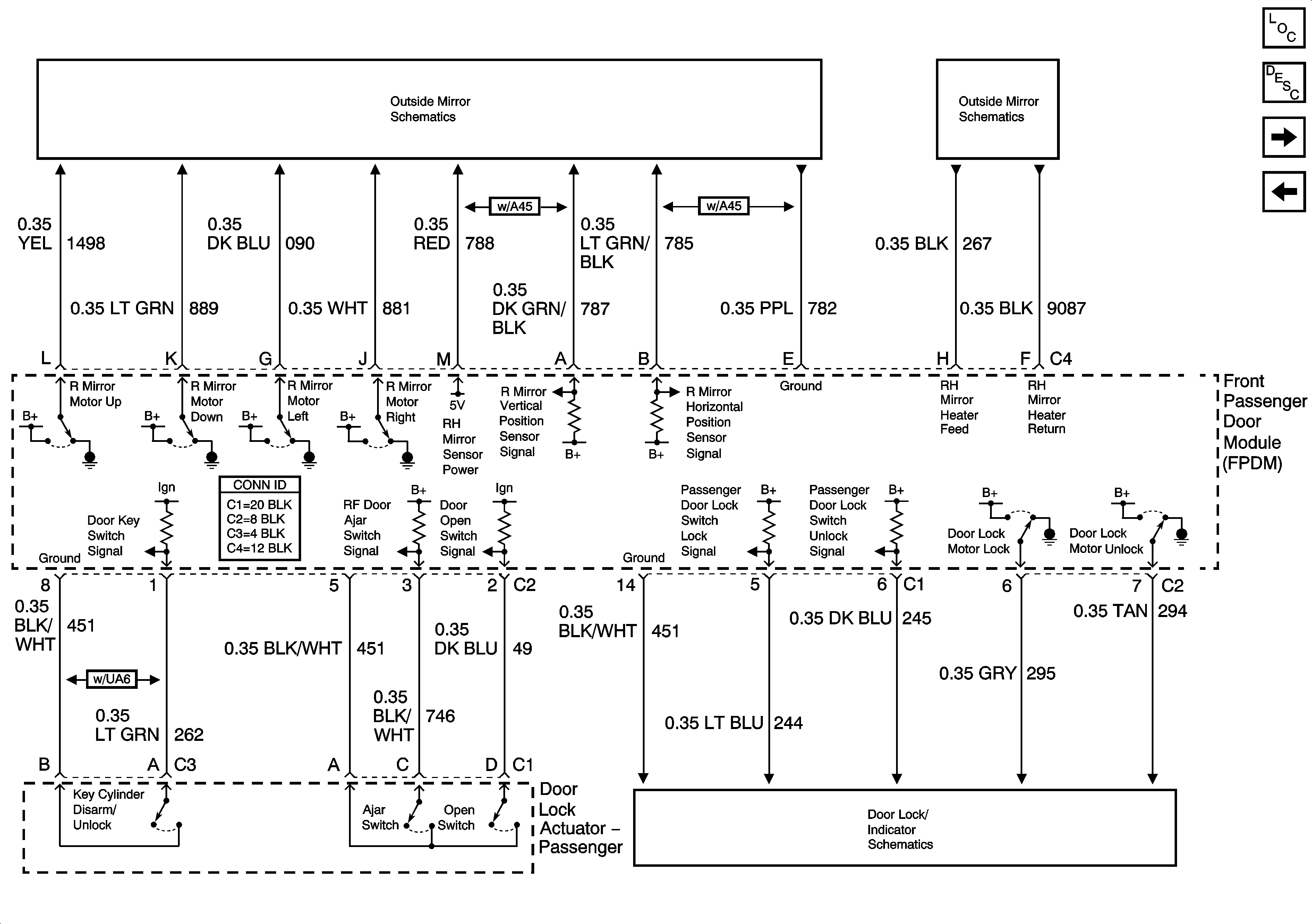
🢒 Front Passenger Door Module (FPDM) Inputs/Outputs
Front Passenger Door Module (FPDM) Inputs/Outputs
Front Passenger Door Module (FPDM) Inputs/Outputs
Master Electrical Component List
Power Door Locks Description and Operation
Left Rear Door Module (LRDM)
Driver Door Module (DDM) Inputs/Outputs
Driver Mirror and Front Passenger Mirror (A45)
Heated Mirrors
Front Passenger Door