GM Service Manual Online
For 1990-2009 cars only
Makes
🢒
Buick
🢒
2006
🢒
Lucerne
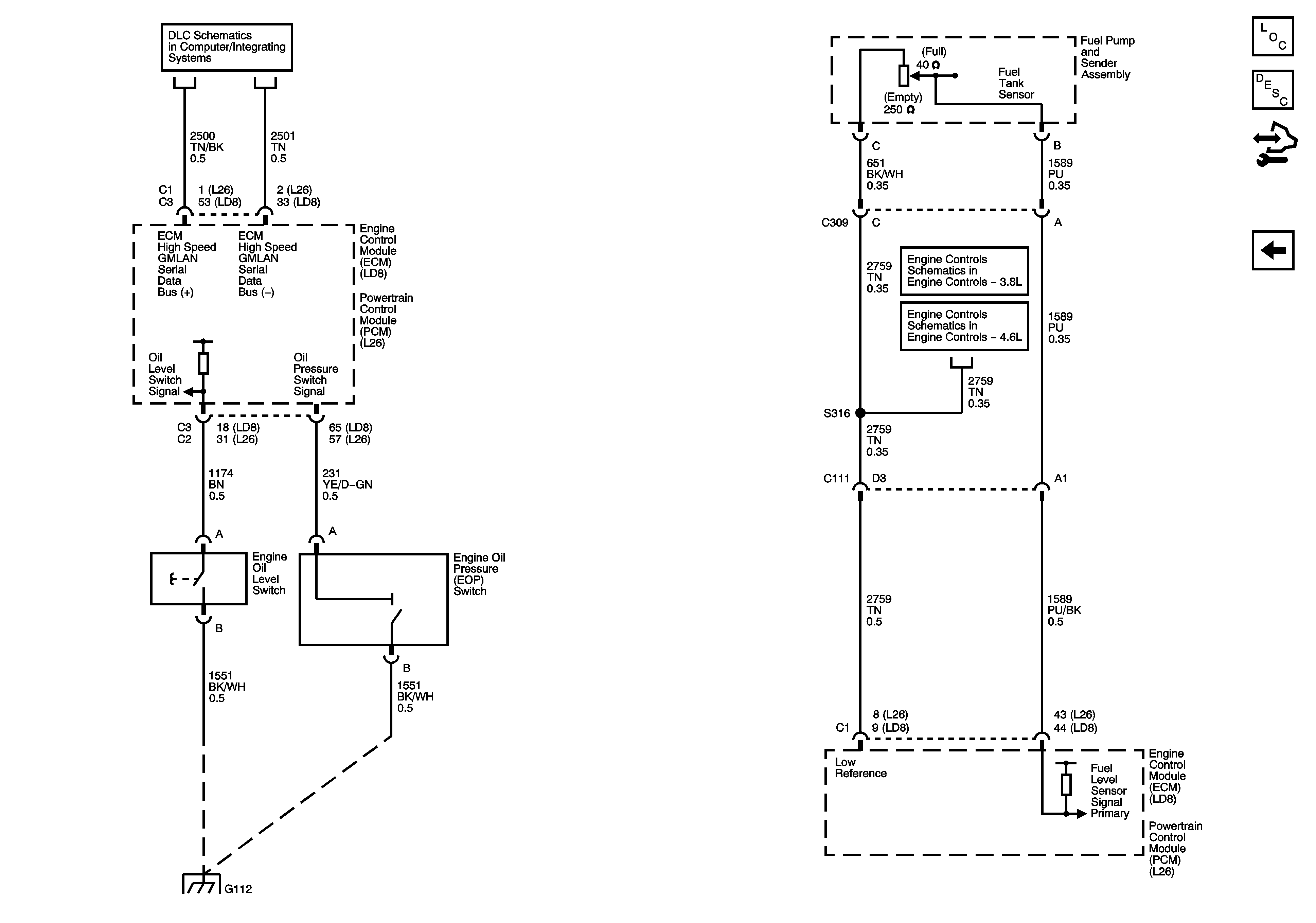
🢒 Oil Level, EOP, Fuel Level Sensor
Oil Level, EOP, Fuel Level Sensor
Oil Level, EOP, Fuel Level Sensor
Master Electrical Component List
Instrument Cluster Description and Operation
Control Module References
Inflatable Restraint Indicator and Driver Information Display
High Speed Serial Data
EVAP Controls
Fuel Controls
G112 (L26)