GM Service Manual Online
For 1990-2009 cars only
Makes
🢒
Buick
🢒
2007
🢒
Lucerne
🢒
Diagnostic Navigation
🢒
Vehicle Diagnostic Information
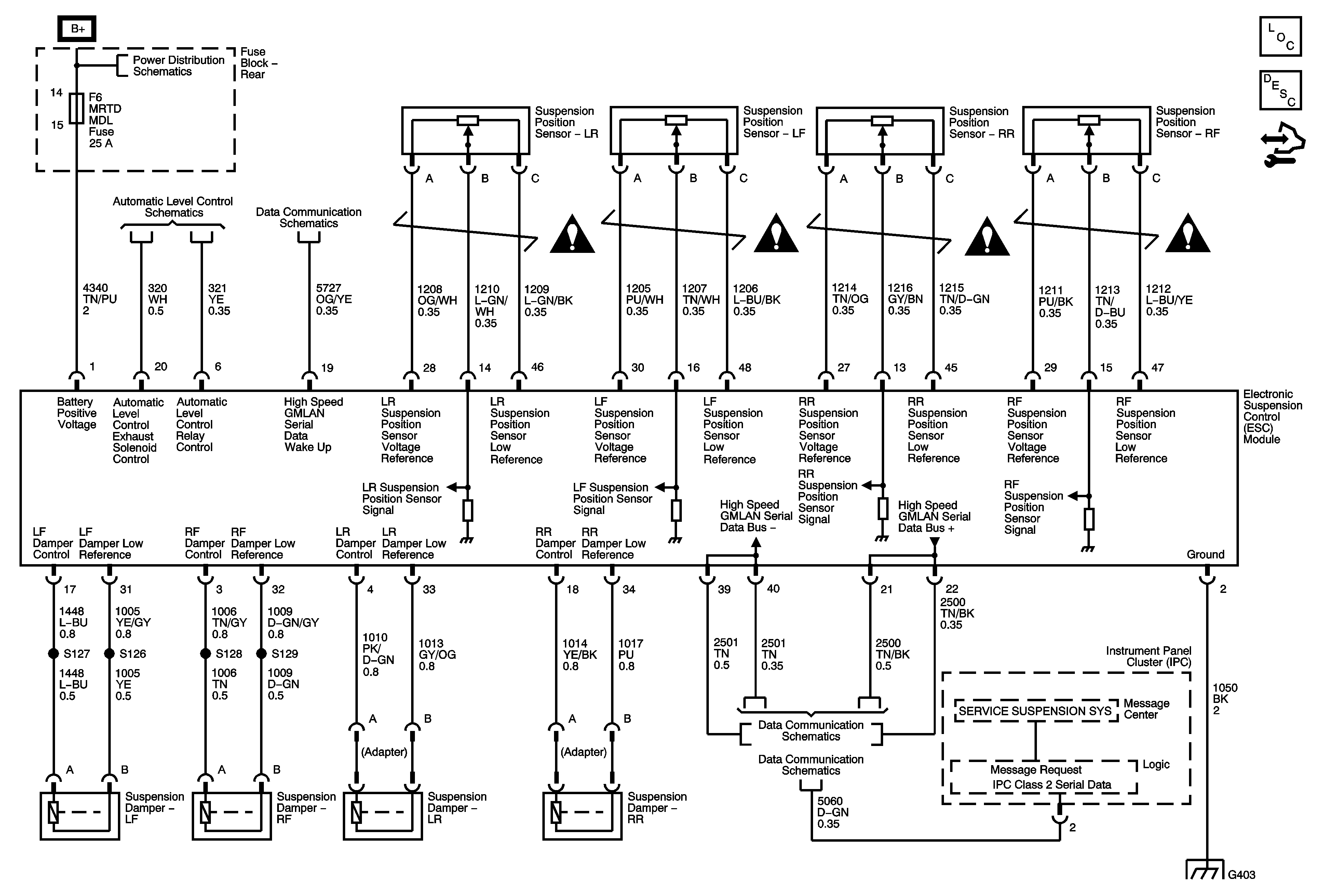
🢒 Electronic Suspension Control Schematics
Electronic Suspension Control - F55
Master Electrical Component List
Electronic Suspension Control Description and Operation
Control Module References
Rear Fuse Block B+
Automatic Level Control Schematics - F55, FE3
Serial Data Wake Up
Electronic Suspension Control Schematic Icons
Electronic Suspension Control Schematic Icons
Electronic Suspension Control Schematic Icons
Electronic Suspension Control Schematic Icons
High Speed Serial Data
Power, Ground, and Low Speed GMLAN
G403