GM Service Manual Online
For 1990-2009 cars only
Makes
🢒
Buick
🢒
2007
🢒
Lucerne
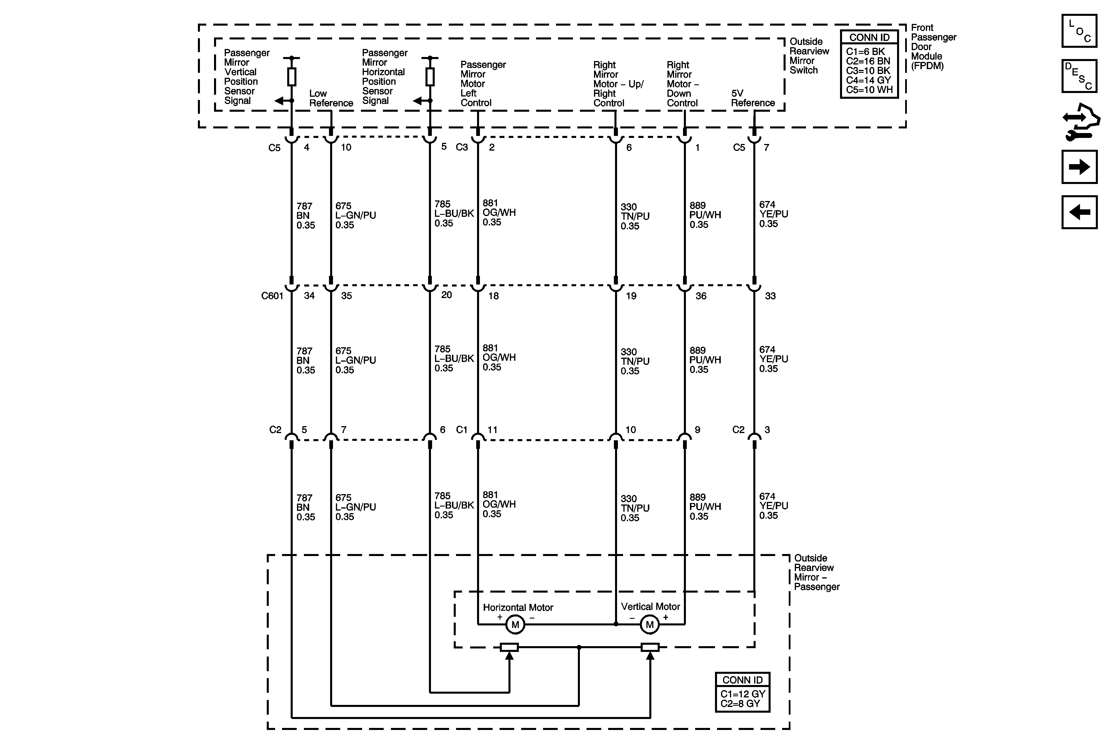
🢒 Passenger Outside Rearview Mirror
Passenger Outside Rearview Mirror
Passenger Outside Rearview Mirror
Master Electrical Component List
Outside Mirror Description and Operation
Control Module References
Heated Mirrors w/ DR2
Driver Outside Rearview Mirror