GM Service Manual Online
For 1990-2009 cars only

Object Number: 554059  Size: MF
HVAC Components
Temperature Controls
Temperature Controls
Dimming Control: Passenger Temperature Control, Ashtray, and Heated Seat Switches Backlighting
Handling ESD Sensitive Parts Notice
Handling ESD Sensitive Parts Notice

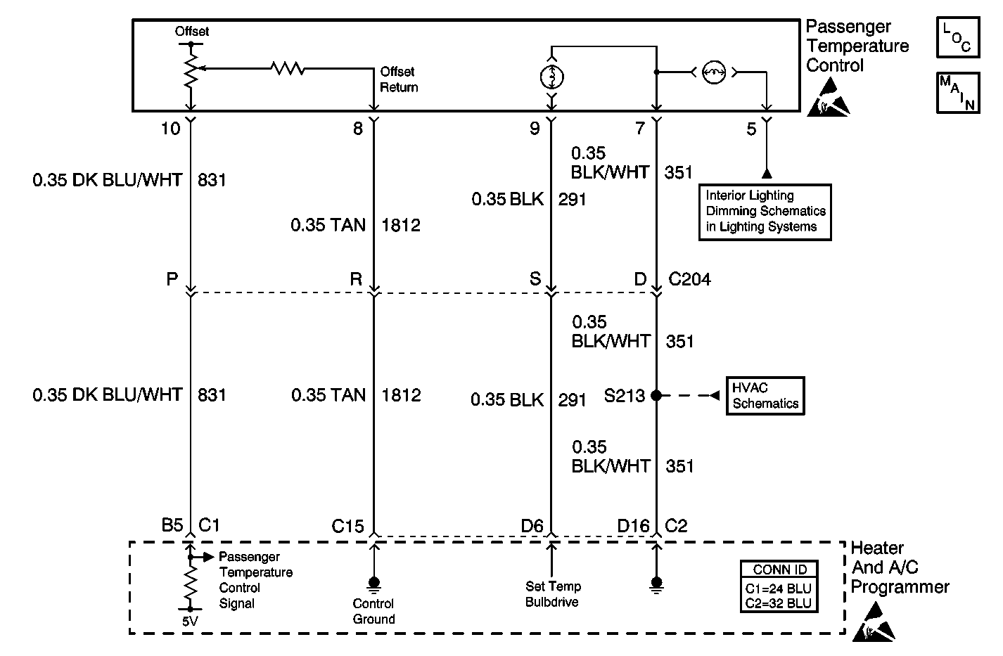
Circuit Description

The passenger temperature control is a sliding potentiometer with detents that correspond to fixed resistance values. The heater and A/C programmer determines which switch position has been selected by the voltage drop across the corresponding resistance value.

Conditions for Running the DTC

The ignition is turned ON.

Conditions for Setting the DTC

The heater and A/C programmer detects that the signal circuit of the passenger temperature control is less than 0.09 V (5 counts) or greater than 4.90 V (250 counts).

Action Taken When the DTC Sets

The heater and A/C programmer will ignore the passenger temperature control. The data displayed on the scan tool, 3.19 V (163 counts) in the HVAC System Data list, will be the default value.

Conditions for Clearing the DTC

    • The DTC will become history if the heater and A/C programmer no longer detects a failure.
    • The history DTC will clear after 50 fault free ignition cycles.
    • The DTC can be cleared with a scan tool.

Diagnostic Aids

Switch Position

Counts

Volts

COOL

67

1.31

COOL

106

2.10

COOL

132

2.60

COOL

150

2.96

NEUTRAL

163

3.19

WARM

174

3.41

WARM

182

3.57

WARM

189

3.70

WARM

194

3.80

Refer to Testing for Intermittent Conditions and Poor Connections .

Step

Action

Value(s)

Yes

No

1

Did you perform the HVAC Diagnostic System Check?

--

Go to Step 2

Go to Diagnostic System Check

2

  1. Install a scan tool.
  2. Turn ON the ignition, with the engine OFF.
  3. Adjust the passenger temperature control from minimum to maximum offset.
  4. With a scan tool, observe the Pass HVAC Control parameter in the Heating and Air Conditioning data list.

Does the scan tool indicate that the Pass HVAC Control parameter changes state?

--

Go to Diagnostic Aids

Go to Step 3

3

  1. Turn OFF the ignition.
  2. Disconnect the passenger temperature control.
  3. Turn ON the ignition, with the engine OFF.
  4. Measure the voltage from the signal circuit of the passenger temperature control to a good ground.

Does the voltage measure near the specified value?

5 V

Go to Step 4

Go to Step 5

4

Measure the voltage from the signal circuit of the passenger temperature control to the ground circuit of the passenger temperature control.

Does the voltage measure near the specified value?

5 V

Go to Step 7

Go to Step 6

5

Test the signal circuit of the passenger temperature control for a short to ground, a short to voltage, a high resistance, or an open. Refer to Circuit Testing and Wiring Repairs in Wiring Systems.

Did you find and correct the condition?

--

Go to Step 11

Go to Step 8

6

Test the ground circuit of the passenger temperature control for a high resistance or an open. Refer to Circuit Testing and Wiring Repairs in Wiring Systems.

Did you find and correct the condition?

--

Go to Step 11

Go to Step 8

7

Inspect for poor connections at the harness connector of the passenger temperature control. Refer to Testing for Intermittent Conditions and Poor Connections and Connector Repairs in Wiring Systems.

Did you find and correct the condition?

--

Go to Step 11

Go to Step 9

8

Inspect for poor connections at the harness connector of the heater and A/C programmer. Refer to Testing for Intermittent Conditions and Poor Connections and Connector Repairs in Wiring Systems.

Did you find and correct the condition?

--

Go to Step 11

Go to Step 10

9

Replace the passenger temperature control. Refer to Control Assembly Replacement - Passenger .

Did you complete the replacement?

--

Go to Step 11

--

10

Replace the heater and A/C programmer. Refer to Programmer Replacement .

Did you complete the replacement?

--

Go to Step 11

--

11

  1. Use the scan tool in order to clear the DTCs.
  2. Operate the vehicle within the Conditions for Running the DTC as specified in the supporting text.

Does the DTC reset?

--

Go to Step 2

System OK