GM Service Manual Online
For 1990-2009 cars only
Makes
🢒
Buick
🢒
1999
🢒
Riviera
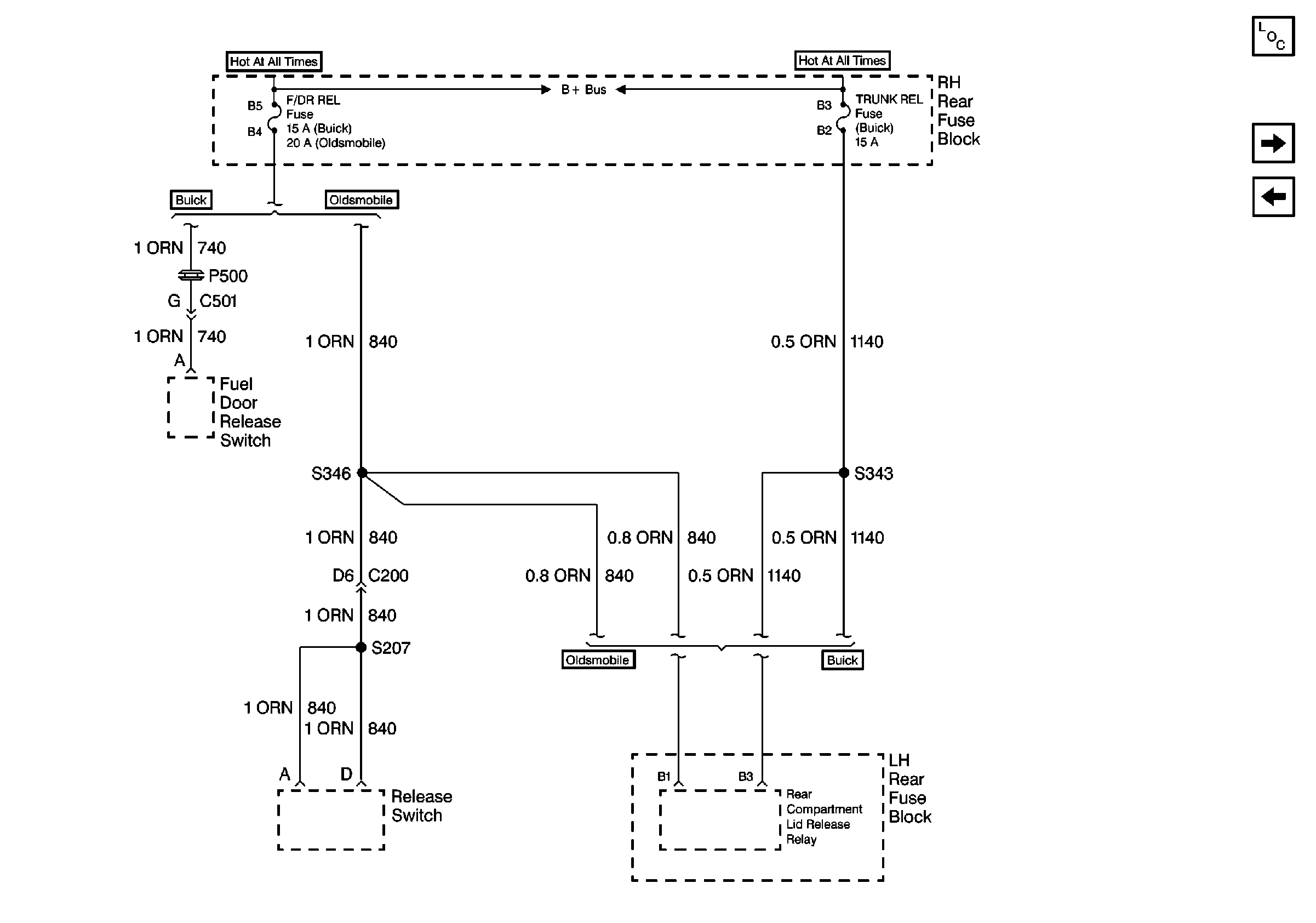
🢒 Cell 10: F/DR REL Fuse (Buick/Oldsmobile) and TRUNK REL Fuse (Buick)
Cell 10: F/DR REL Fuse (Buick/Oldsmobile) and TRUNK REL Fuse (Buick)
Cell 10: F/DR REL Fuse (Buick/Oldsmobile) and TRUNK REL Fuse (Buick)
Power and Grounding Component Views
Cell 10: IP 2 Fuse and HTD ST Fuse
Cell 10: F/PMP Fuse, HZRD/STOP Fuse, and INTR LP Fuse
Cell 10: Battery