GM Service Manual Online
For 1990-2009 cars only
Makes
🢒
Cadillac
🢒
2004
🢒
CTS
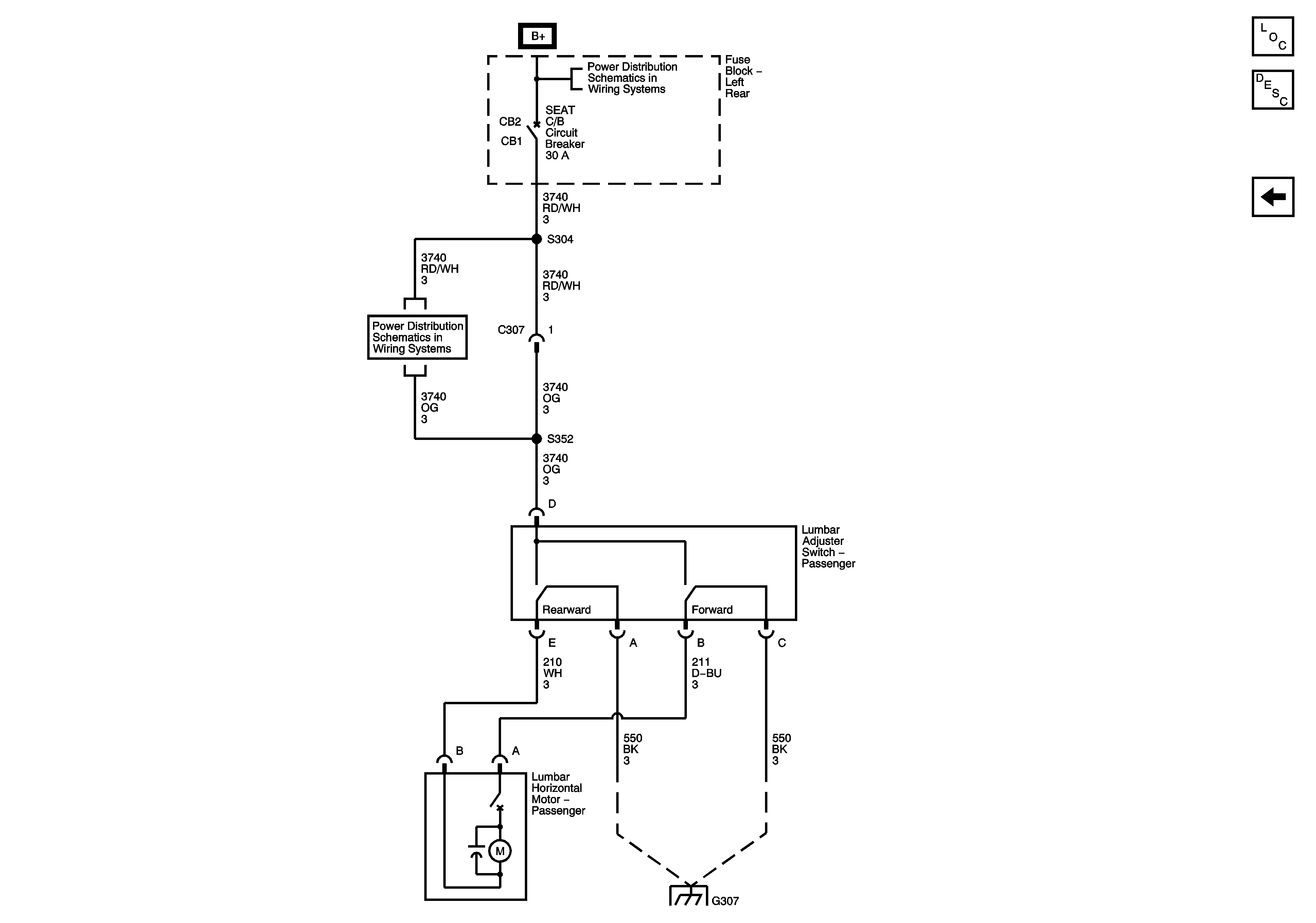
🢒 Power Lumbar - Passenger (AL2)
Power Lumbar - Passenger (AL2)
Power Lumbar - Passenger (AL2)
Master Electrical Component List
Lumbar Support Description and Operation w/o A45
Heated Seat - Passenger (KA1)
Left Rear Fuse Block B+ Bus
Left Rear Fuse Block SEAT Circuit Breaker, TRUNK Fuse/Relay, AMP, AUDIO, DRIVER DR MOD and REAR DR MOD Fuses
G307