GM Service Manual Online
For 1990-2009 cars only
Makes
🢒
Cadillac
🢒
2004
🢒
CTS
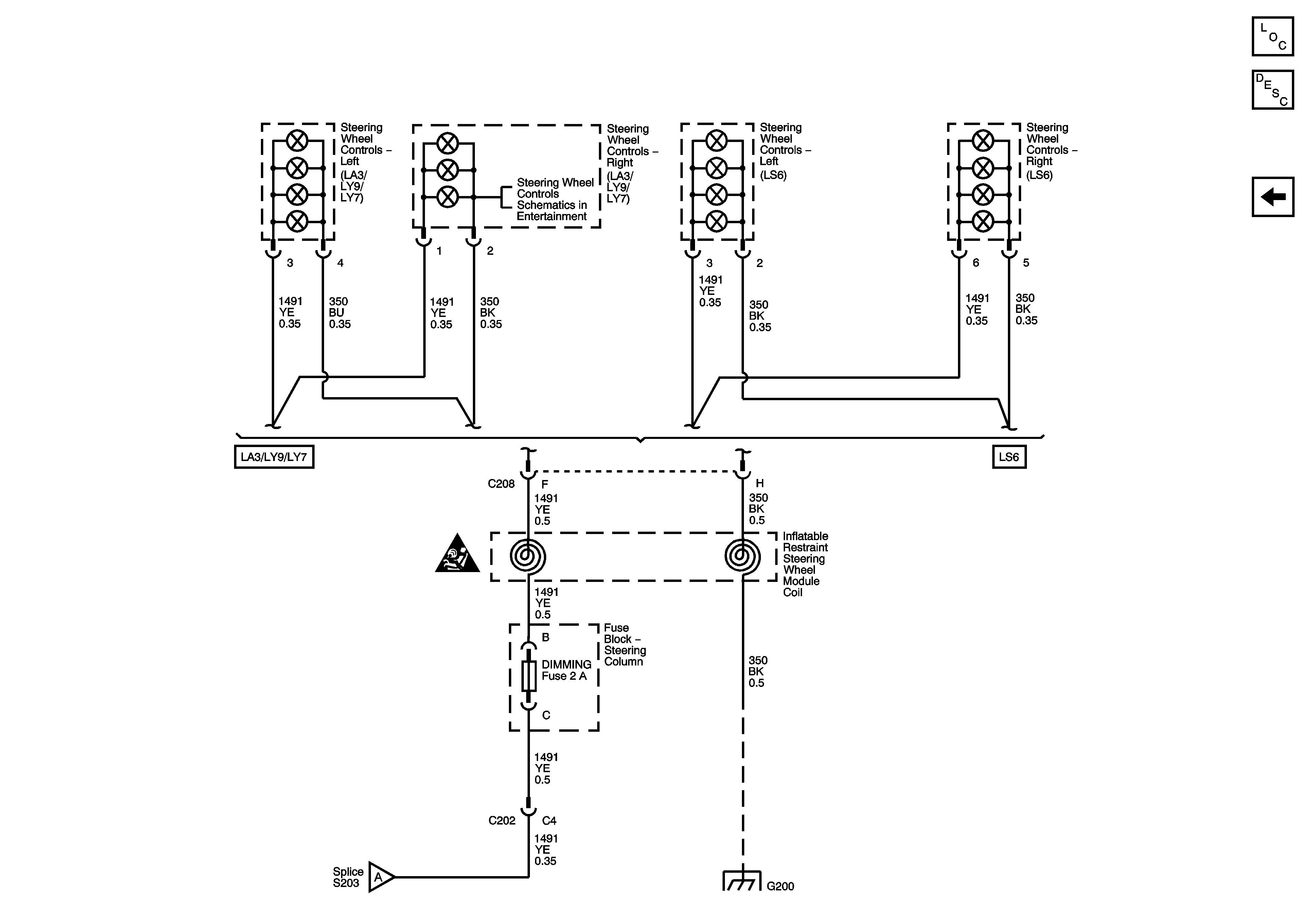
🢒 Steering Wheel Controls Dimming
Steering Wheel Controls Dimming
Steering Wheel Controls Dimming
Master Electrical Component List
Interior Lighting Systems Description and Operation
Power, Ground, and Serial Data - 2 of 2
Steering Wheel Controls - 2.6L/3.2L/3.6L (LY9/LA3/LY7)
SIR Caution for Zoning
Power, Ground, and Serial Data - 1 of 2
G200