GM Service Manual Online
For 1990-2009 cars only
Makes
🢒
Cadillac
🢒
1998
🢒
Catera
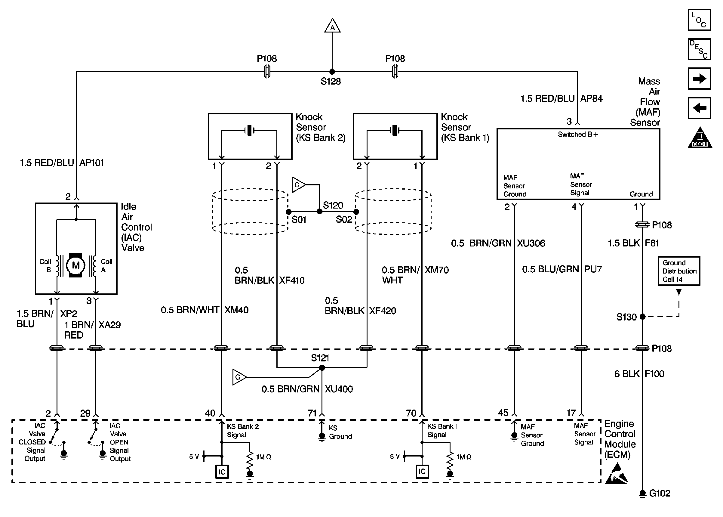
🢒 Cell 20: Knock Sensors Banks 1 & 2 and IAC, MAF Sensors
Cell 20: Knock Sensors Banks 1 & 2 and IAC, MAF Sensors
Cell 20: Knock Sensors Banks 1 & 2 and IAC,MAF Sensors
Engine Controls Components
Information Sensors
Cell 20: A/C Controls
Cell 20: EVAP, Air Injection and Intake Resonance Controls
Ground Distribution Schematics