GM Service Manual Online
For 1990-2009 cars only
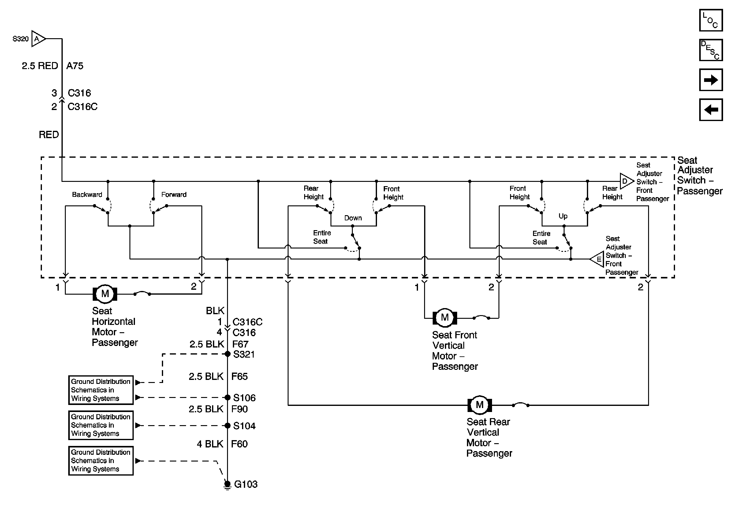
Figure 1:

Driver Seat


Object Number: 596346  Size: FS
Master Electrical Component List
Power Seats System Description and Operation
Passenger Seat
Underhood Fuse Block Fuse V6 and Fuse Block Fuses 17, 28, 29, 33, and34
Fuse Block Fuses 5, 11, 16, and 35
Passenger Seat
Seat Recliner Actuators
Seat Recliner Actuators
G103 (5 of 8)
G103 (3 of 8)
G103 (1 of 8)
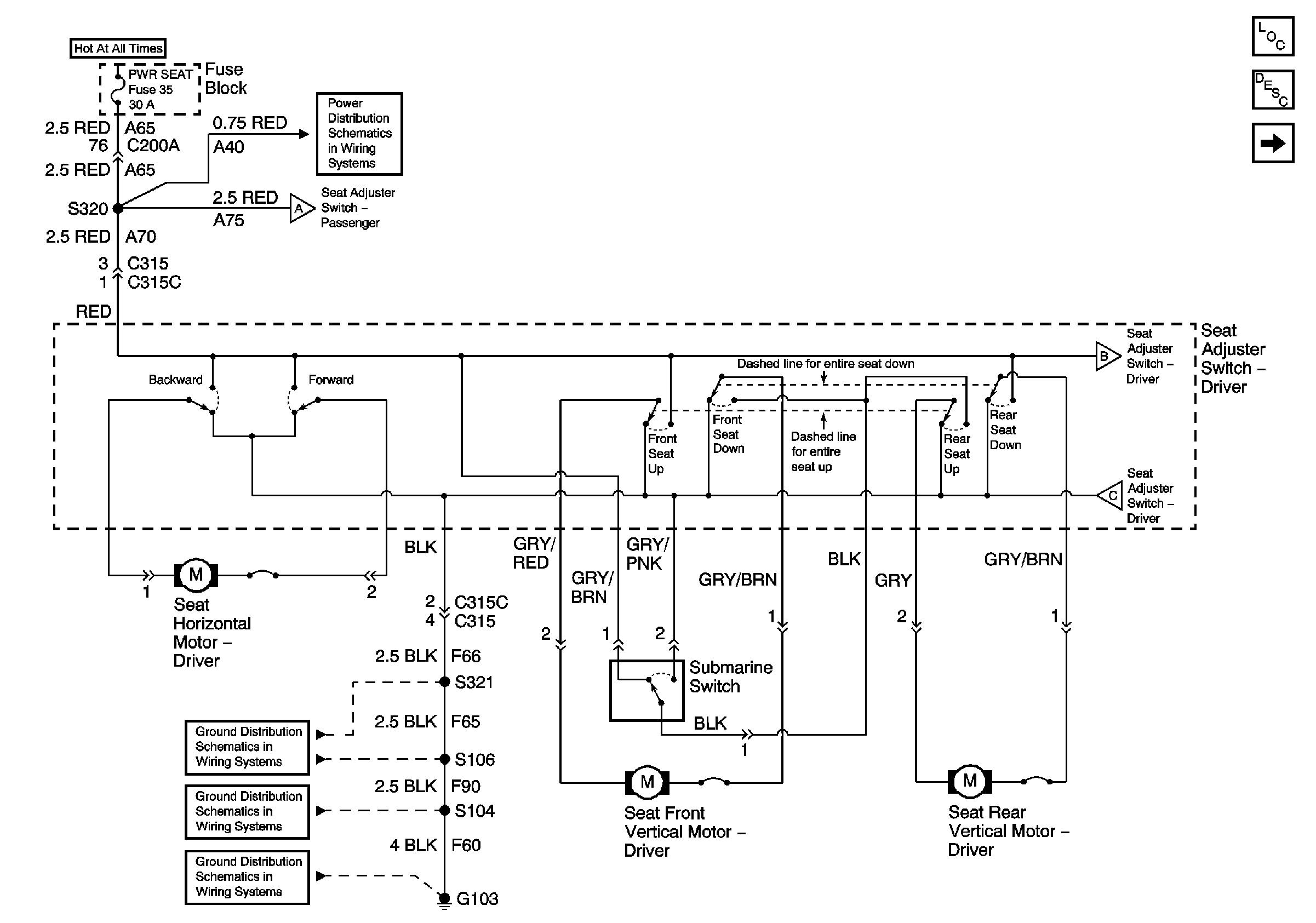
Figure 2:

Passenger Seat


Object Number: 596347  Size: FS
Master Electrical Component List
Power Seats System Description and Operation
Seat Recliner Actuators
Drivers Seat
Drivers Seat
Seat Recliner Actuators
Seat Recliner Actuators
G103 (5 of 8)
G103 (3 of 8)
G103 (1 of 8)
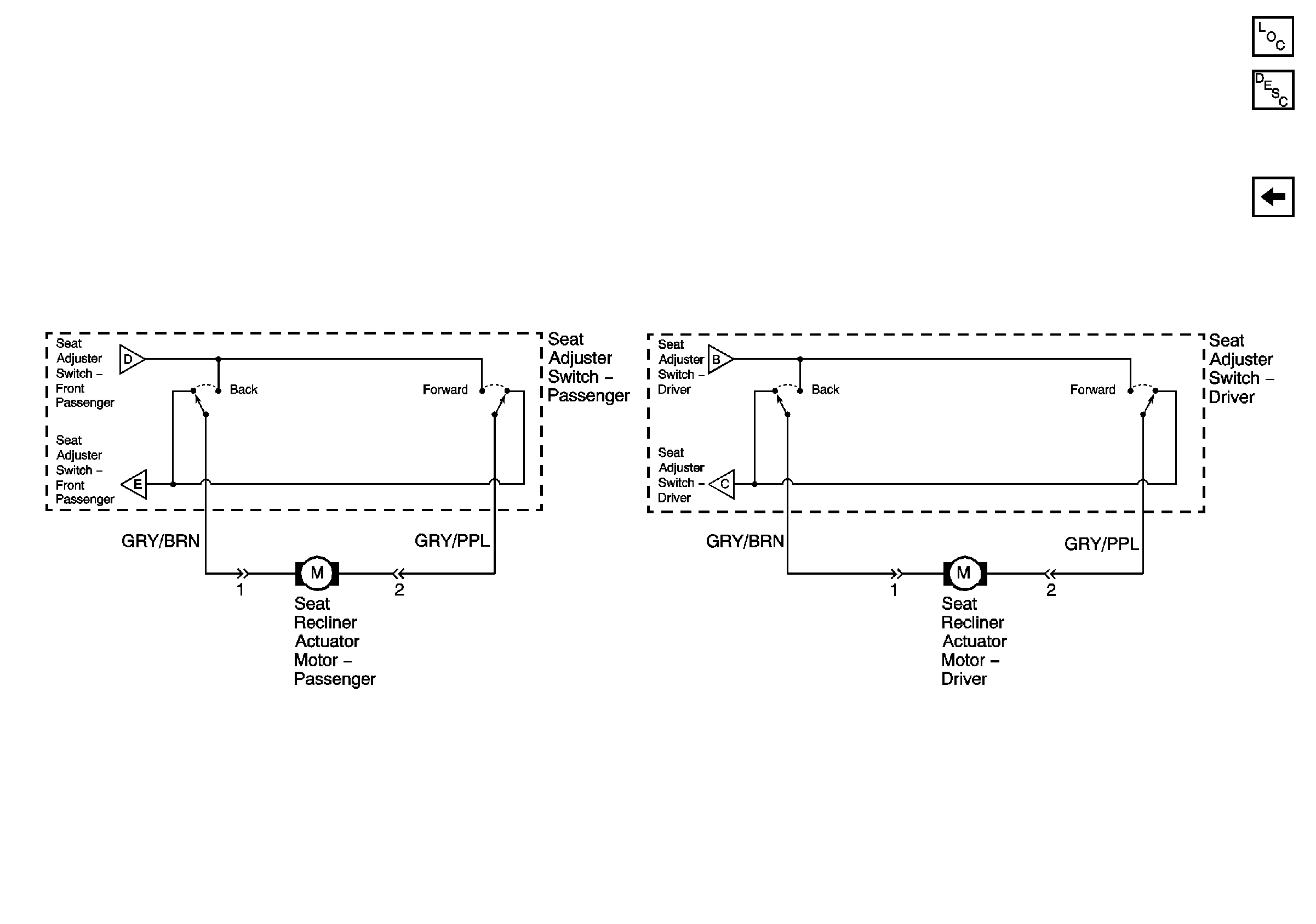
Figure 3:

Seat Recliner Actuators


Object Number: 596348  Size: FS
Master Electrical Component List
Power Seats System Description and Operation
Passenger Seat
Passenger Seat
Passenger Seat
Drivers Seat
Drivers Seat