GM Service Manual Online
For 1990-2009 cars only
Makes
🢒
Cadillac
🢒
2006
🢒
DTS
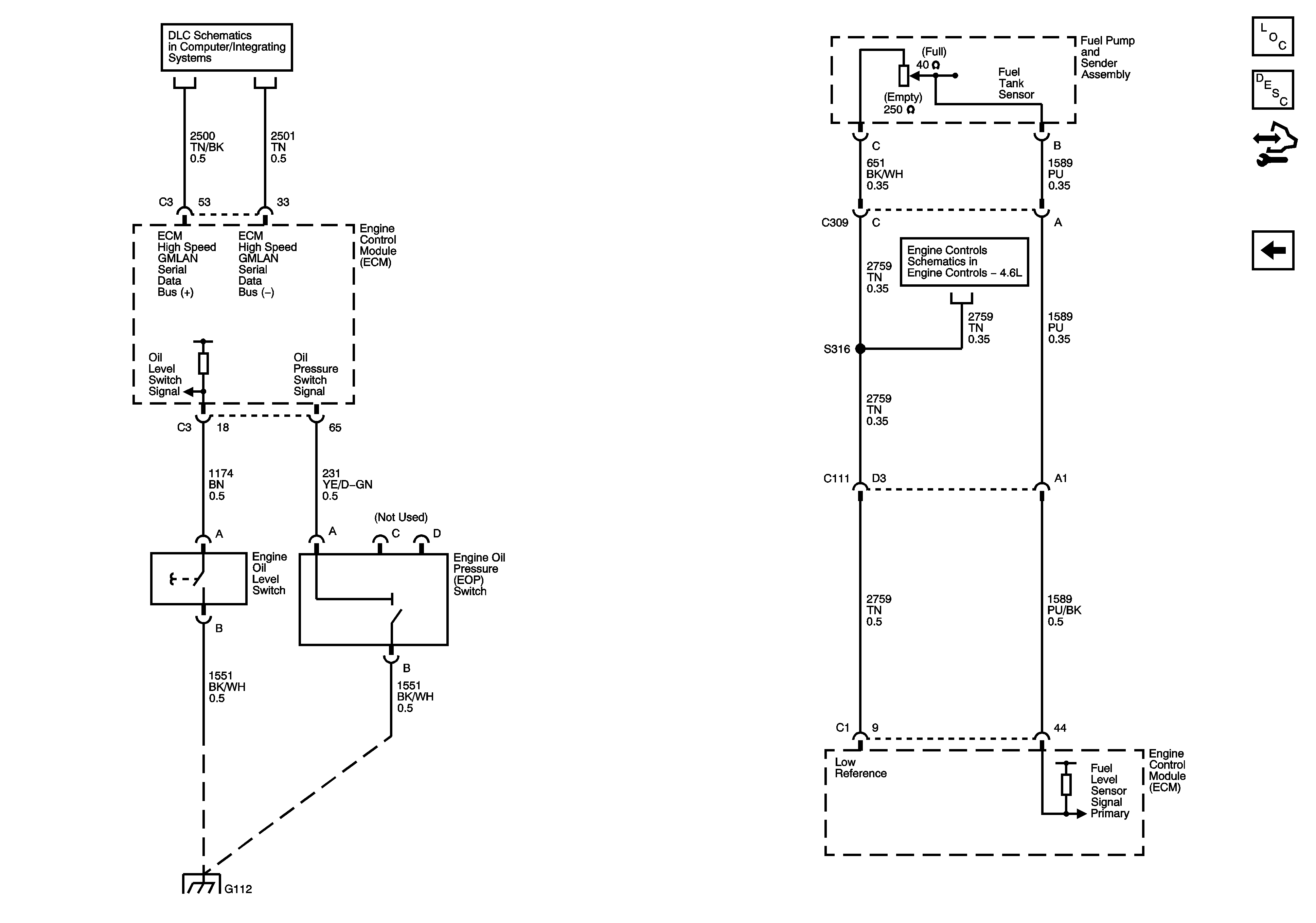
🢒 Oil Level, EOP, Fuel Level Sensor
Oil Level, EOP, Fuel Level Sensor
Oil Level, EOP, Fuel Level Sensor
Master Electrical Component List
Audible Warnings Description and Operation
Control Module References
Inflatable Restraint I/P Module Indicator, Telltale Assembly Info Center, Driver Information Display
DLC High Speed Serial Data
G100, G112
Fuel Controls