GM Service Manual Online
For 1990-2009 cars only
Makes
🢒
Cadillac
🢒
2005
🢒
Escalade - 2WD
🢒 Mode Selection
Mode Selection
Mode Selection
Master Electrical Component List
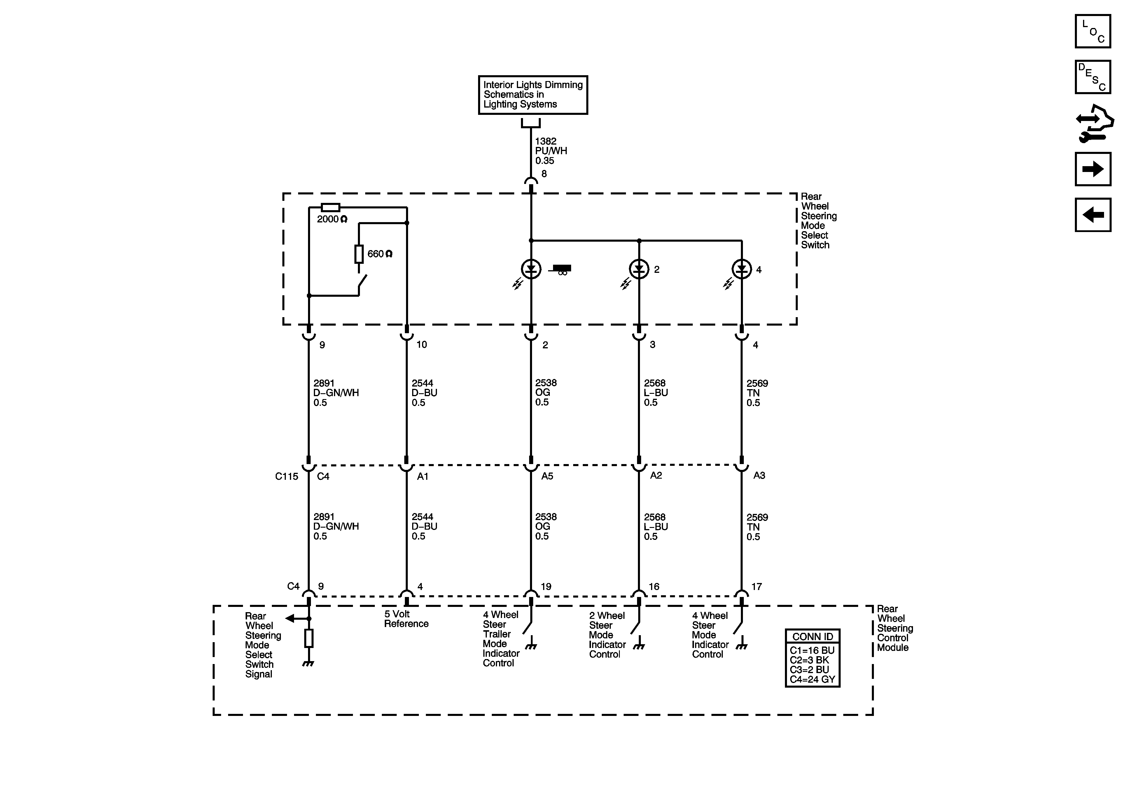
Rear Wheel Steering Description and Operation
Control Module References
Steering Wheel Speed/Position Sensor
Module - Power, Ground, Serial Data, and Vehicle Speed
Dimming Control and LED DImming Supply Voltage - 1 of 2