GM Service Manual Online
For 1990-2009 cars only
Makes
🢒
Cadillac
🢒
2008
🢒
SLS
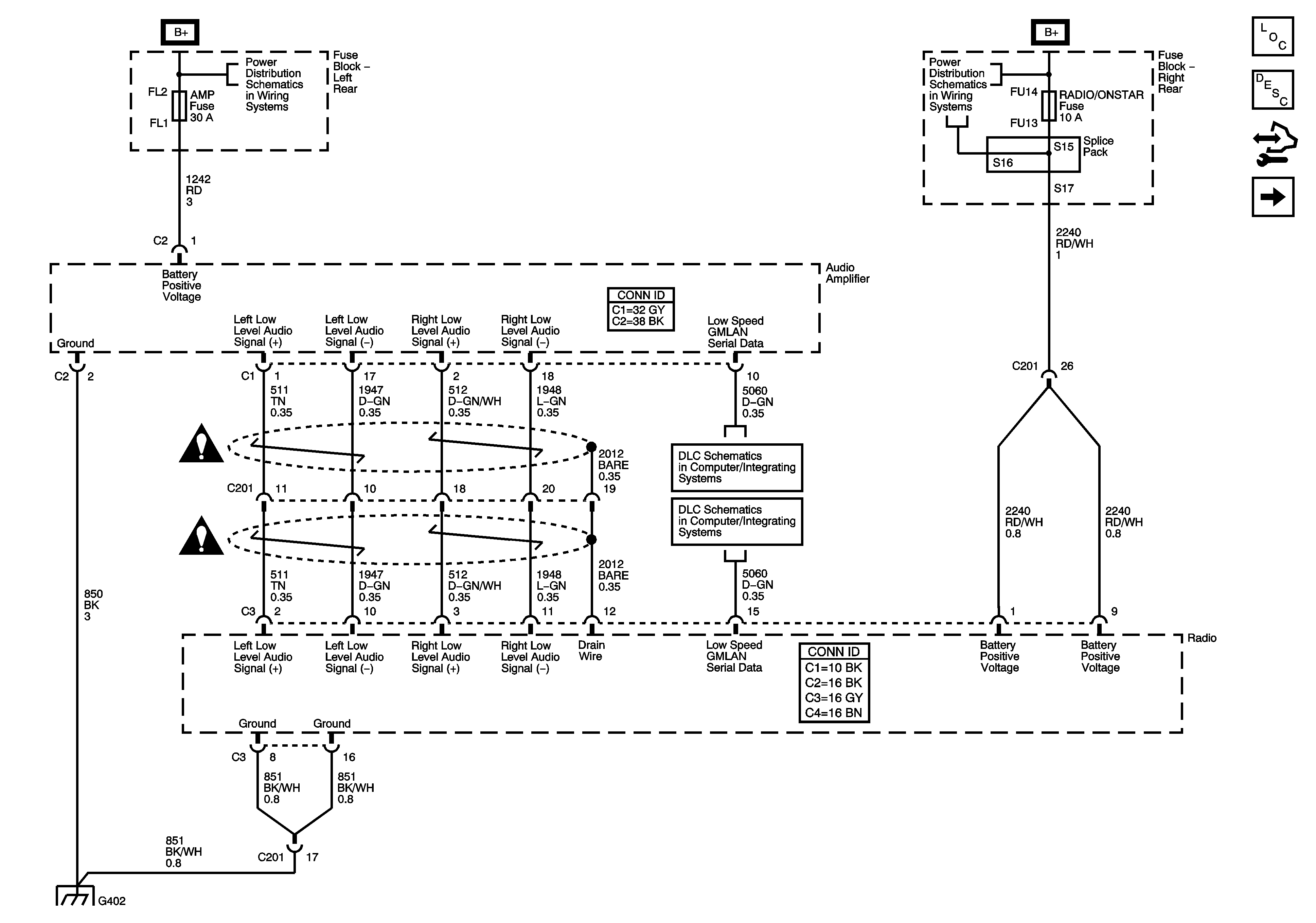
🢒 Radio Power, Ground, DLC and Audio Communications
Radio Power, Ground, DLC and Audio Communications
Radio Power, Ground, DLC and Audio Communications
Master Electrical Component List
Radio/Audio System Description and Operation
Control Module References
Speakers w/ UX8
Fuse Block Left Rear Bussing
Fuse Block Right Rear: Radio/OnStar, RT Turn Signal, Canister Vent and RF Heated/Vented Seat Fuses; Window Motors Circuit Breaker
Entertainment Schematic Icons
Entertainment Schematic Icons
GMLAN Low Speed (1 of 2)
GMLAN Low Speed (2 of 2)
G402 (2 of 2)