GM Service Manual Online
For 1990-2009 cars only
Makes
🢒
Cadillac
🢒
2006
🢒
SRX
🢒
Accessories
🢒
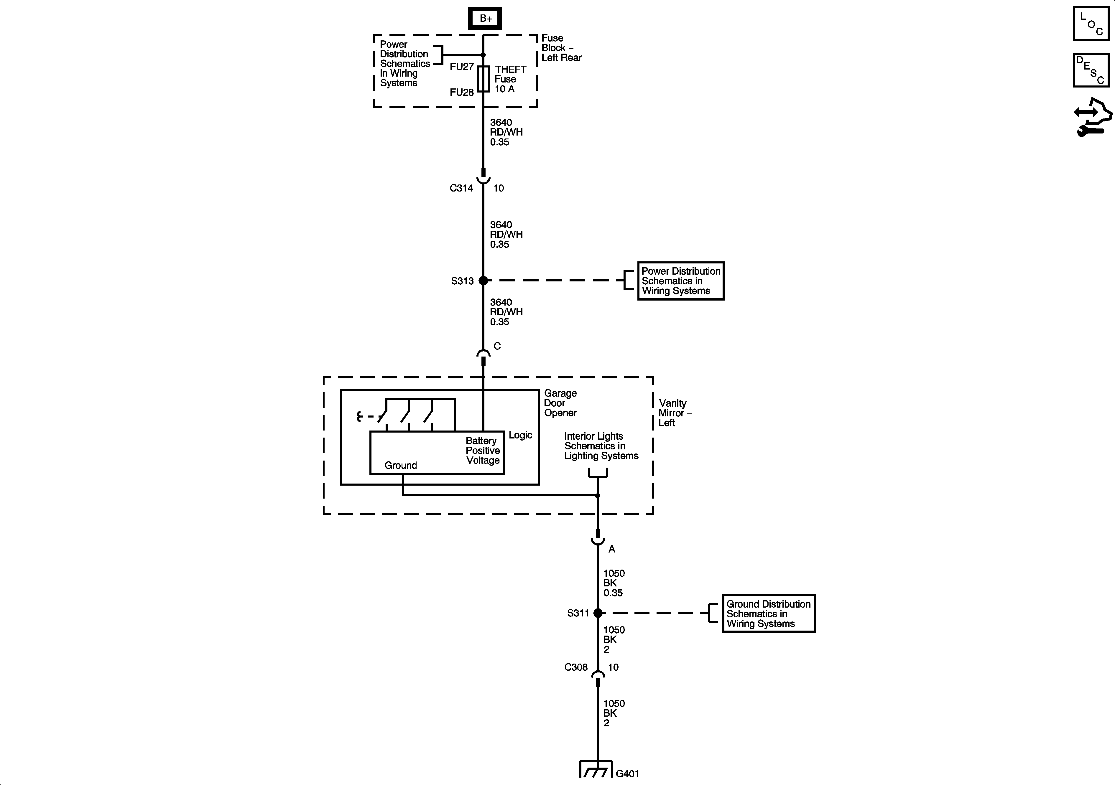
Garage Door Opener
🢒 Garage Door Opener Schematics
Master Electrical Component List
Garage Door Opener Description and Operation
Control Module References
06 ESUV-Fuse Block Left Rear B+ Bus
FFSM, FFS SW AND THEFT FUSES AND SEAT CIRCUIT BREAKER
G401 2 of 2
G401 2 of 2