GM Service Manual Online
For 1990-2009 cars only
Makes
🢒
Cadillac
🢒
2007
🢒
SRX
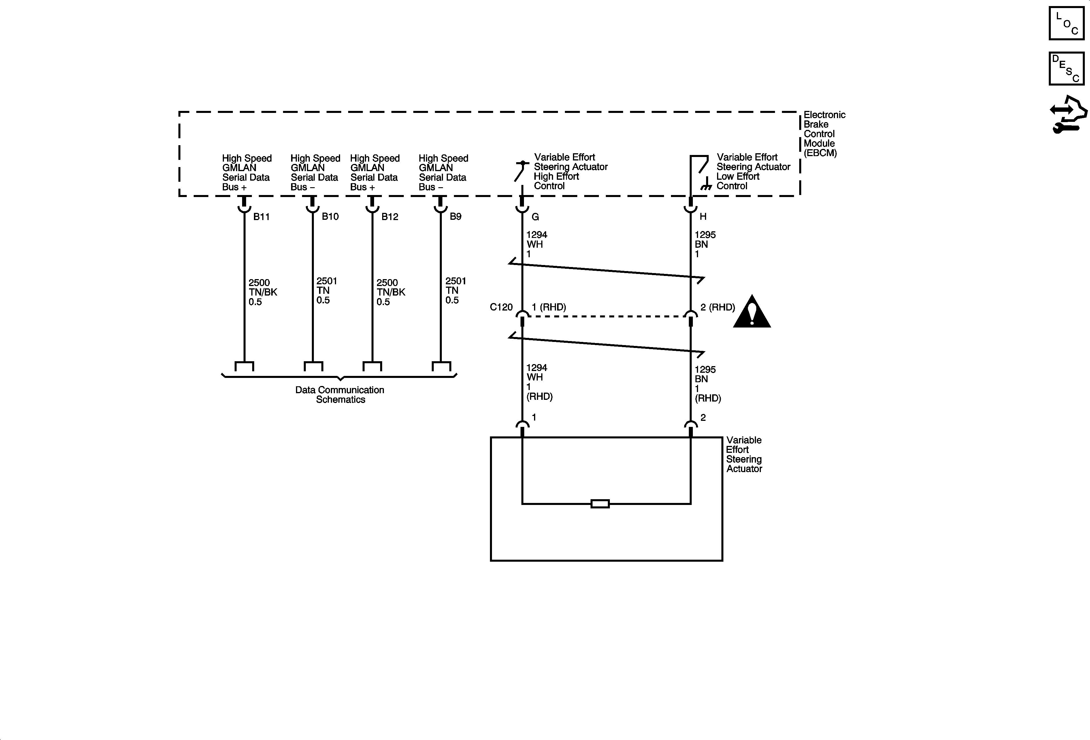
🢒 Variable Effort Steering Schematic
Variable Effort Steering Schematic
Variable Effort Steering
Master Electrical Component List
Data Link Communications Description and Operation
Control Module References
Steering Assist Schematic Icons
High Speed GMLAN