GM Service Manual Online
For 1990-2009 cars only
Makes
🢒
Cadillac
🢒
2007
🢒
SRX
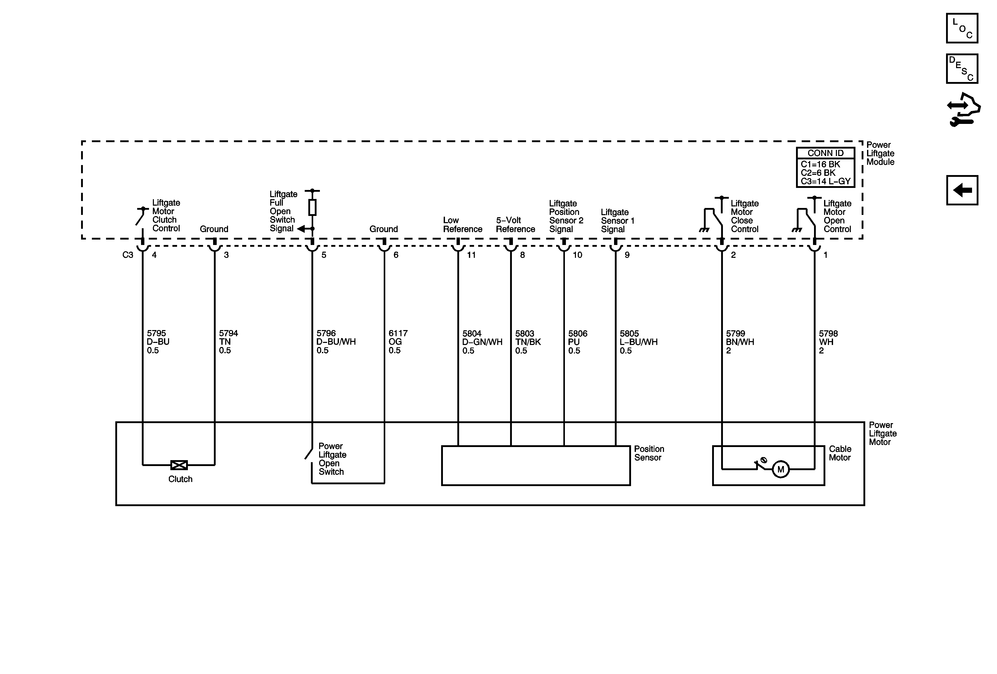
🢒 Power Lift Gate Motor
Power Lift Gate Motor
Power Liftgate Motor
Master Electrical Component List
Liftgate Description and Operation
Control Module References
Power, Ground, DLC, and Controls