GM Service Manual Online
For 1990-2009 cars only
Makes
🢒
Cadillac
🢒
2007
🢒
SRX
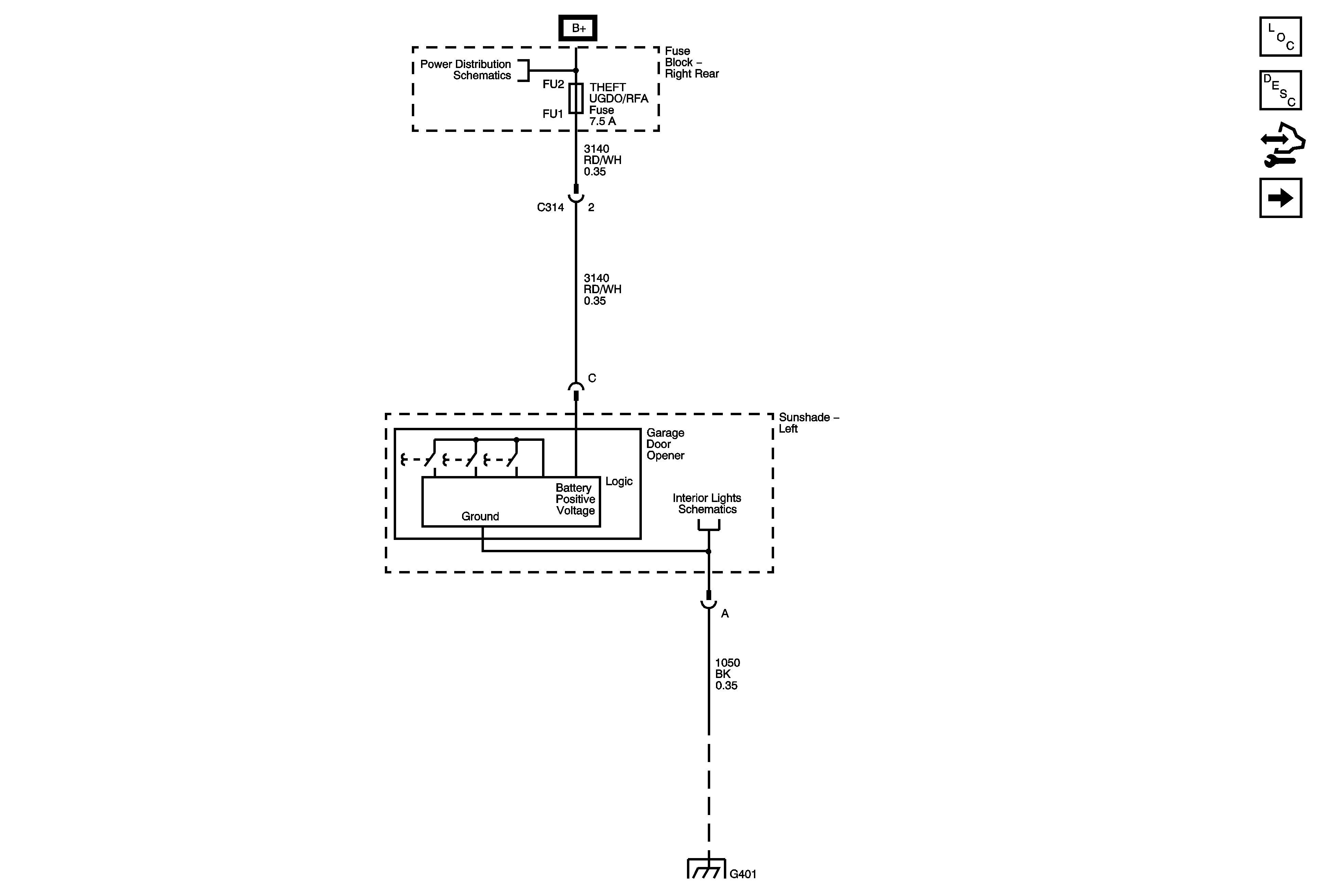
🢒 Garage Door Opener Schematics
Garage Door Opener Schematics
Garage Door Opener
Master Electrical Component List
Garage Door Opener Description and Operation (One LED)
Control Module References
Keyless Entry Schematics
Right Rear Fuse Block B+ Bus
Courtesy Lamps
G401 (2 of 3)