GM Service Manual Online
For 1990-2009 cars only
Makes
🢒
Cadillac
🢒
2007
🢒
STS
🢒
Transmission/Transaxle
🢒
Automatic Transmission - 5L40-E/5L50-E
🢒 Automatic Transmission Controls Schematics
Figure
1:
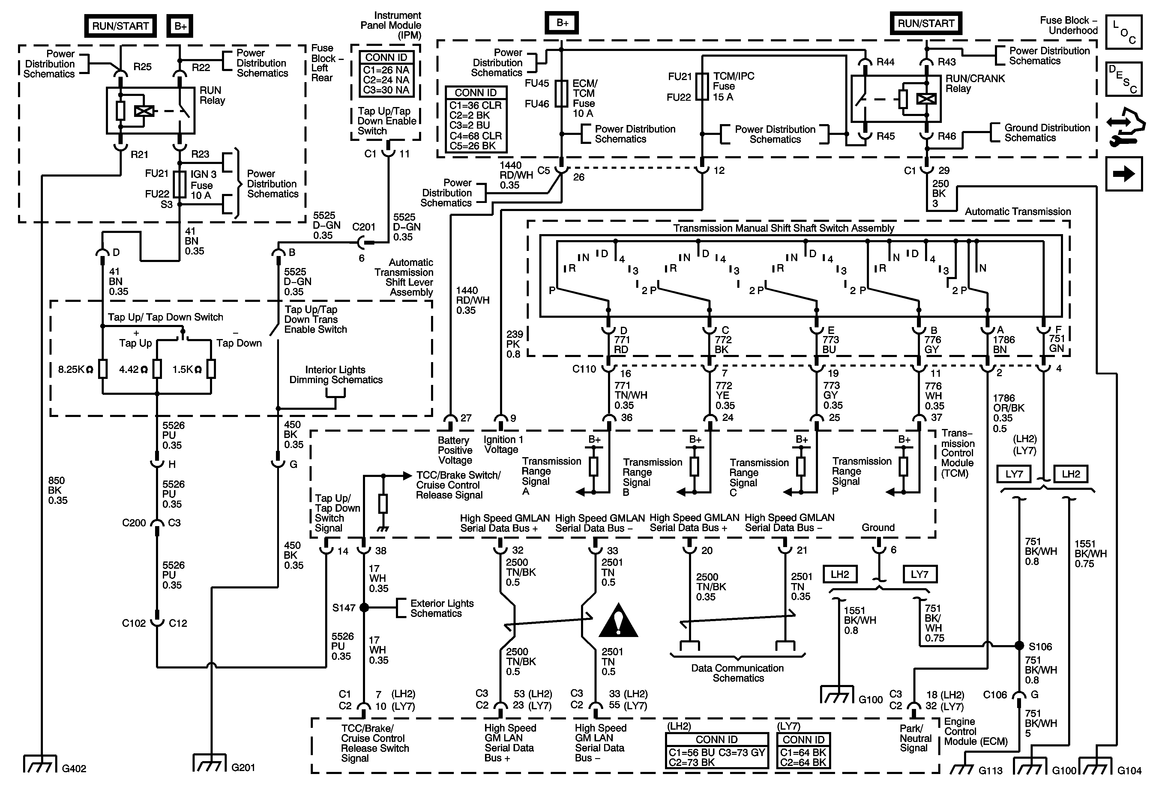
TCM Power, Grounds and DLC
Master Electrical Component List
Transmission General Description (5L40-E/5L50-E)
Control Module References
Transmission Sensors and Solenoids (LY7/LH2)
Fuse Block - Left Rear - Ign 3 Relay, Ign 3, Rear Heated Seat, Memory, Airbag and Rear Shelf Speaker Fuses
Fuse Block - Left Rear Bussing
Fuse Block - Left Rear - Ign 3 Relay, Ign 3, Rear Heated Seat, Memory, Airbag and Rear Shelf Speaker Fuses
Fuse Block Underhood Wiring Bussing
Fuse Block - Underhood: Starter, RUN/CRANK Relays; Starter, Starter Relay, CCP, TCM/IPM/ECM, MAF, ABS and Washer Nozzle/ACC Fuses
Fuse Block - Underhood: Starter, RUN/CRANK Relays; Starter, Starter Relay, CCP, TCM/IPM/ECM, MAF, ABS and Washer Nozzle/ACC Fuses
Fuse Block - Underhood: Starter, RUN/CRANK Relays; Starter, Starter Relay, CCP, TCM/IPM/ECM, MAF, ABS and Washer Nozzle/ACC Fuses
Fuse Block Underhood Wiring Bussing
Fuse Block - Underhood: Starter, RUN/CRANK Relays; Starter, Starter Relay, CCP, TCM/IPM/ECM, MAF, ABS and Washer Nozzle/ACC Fuses
Dimming 1 of 3
Backup Lamps, CHMSL - Domestic and Export
G401 (1 of 2)
G201 (1 of 2)
GM LAN - High Speed, Domestic w/ UE1
G100 (LH2/LC3)
G107 (LH2/LC3), G113 (LY7)
G100 (LH2/LC3)
G104 (1 of 2)
Automatic Transmission Schematic Icons
Figure
2:
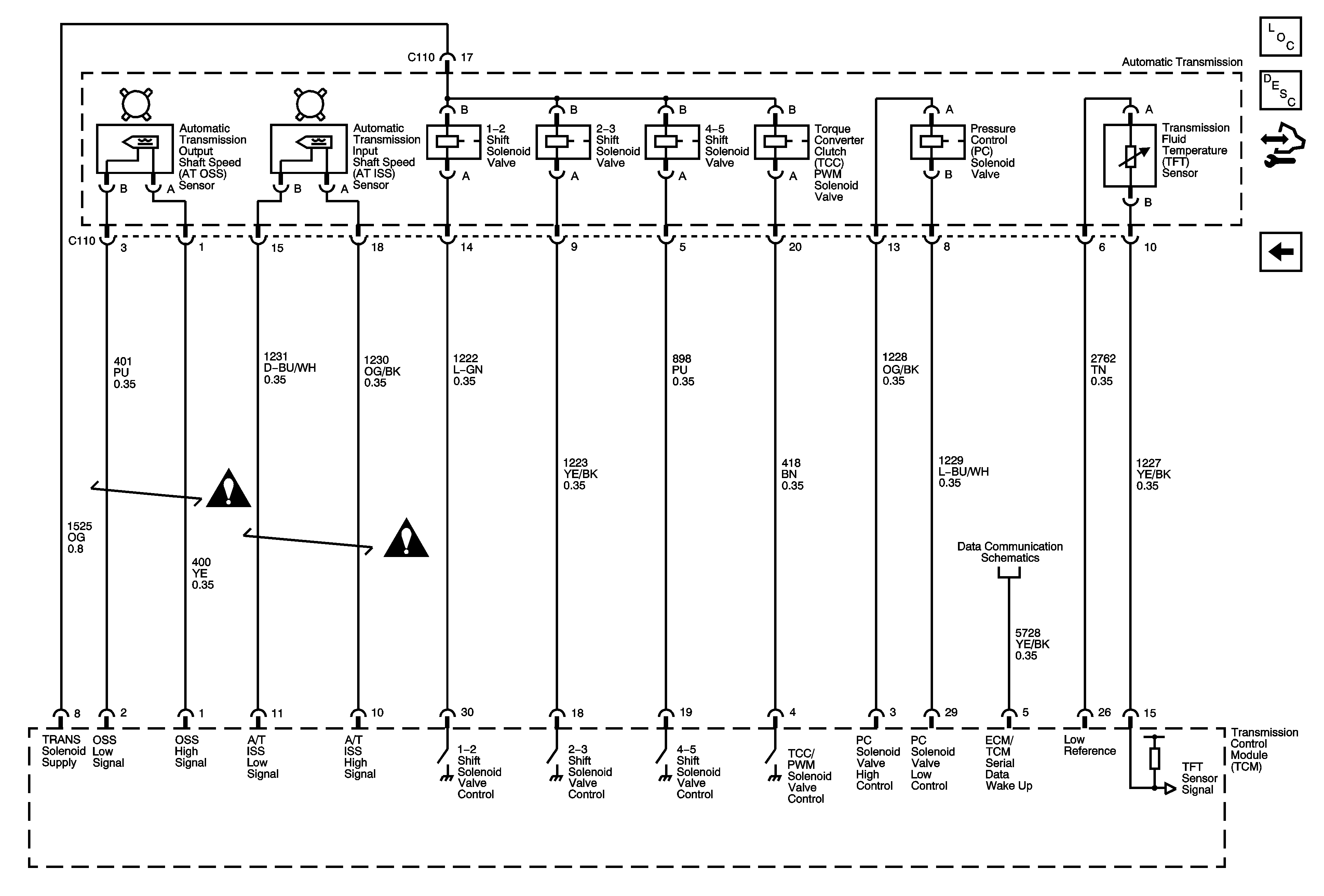
Transmission Sensors and Solenoids
Master Electrical Component List
Transmission General Description (5L40-E/5L50-E)
Control Module References
TCM Power, Grounds, and DLC (LY7/LH2)
GM LAN - High Speed, Domestic w/ UE1
Automatic Transmission Schematic Icons
Automatic Transmission Schematic Icons