GM Service Manual Online
For 1990-2009 cars only

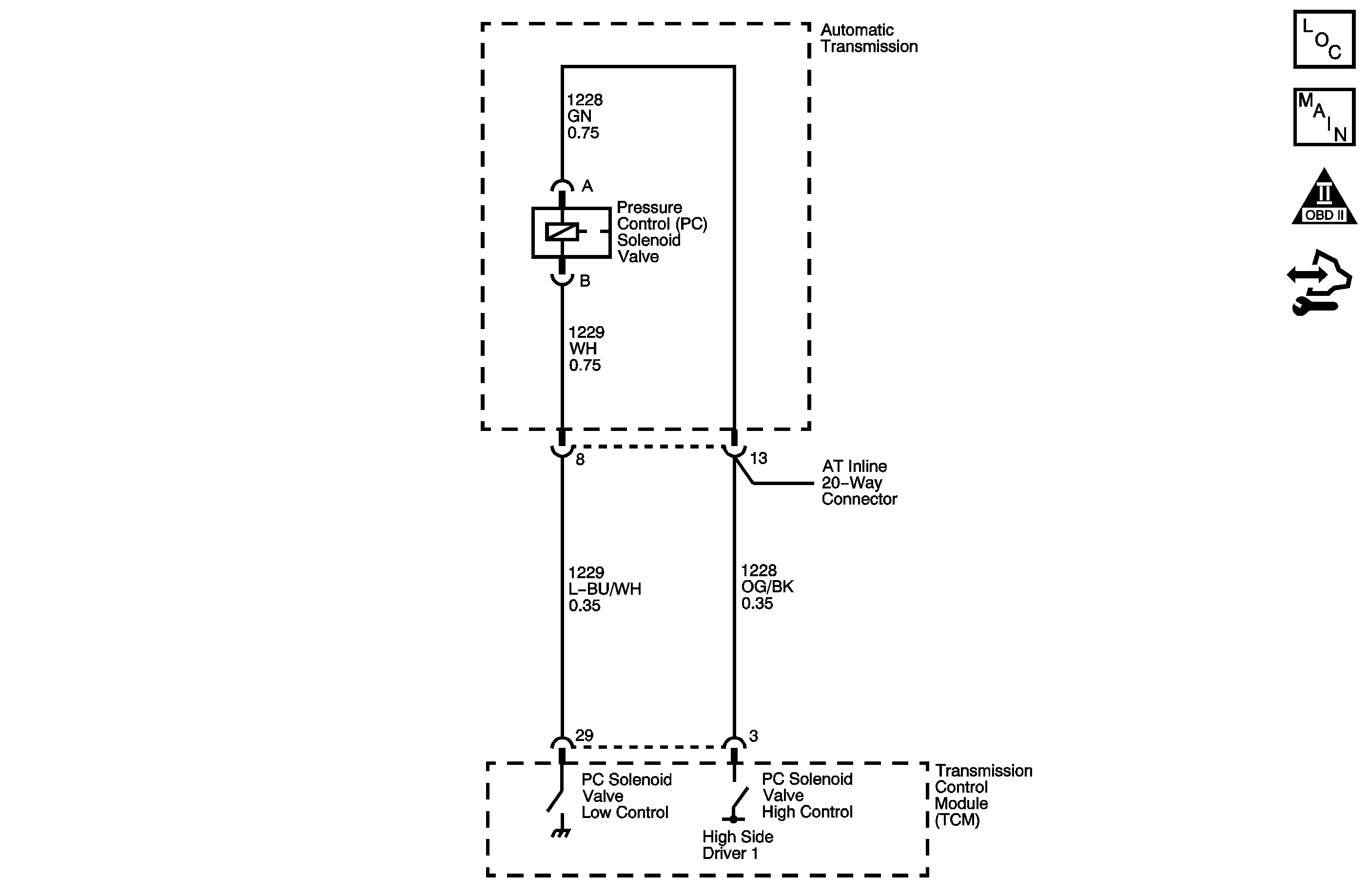
Object Number: 1466327  Size: MF
Master Electrical Component List
Automatic Transmission Controls Schematics
OBD II Symbol Description Notice
Control Module References

Circuit Description

The transmission control module (TCM) provides voltage to the pressure control solenoid, the shift solenoids, and the TCC PWM solenoid through two separate solid-state devices called High Side Drivers, called HSD1 and HSD2. HSD1 provides electrical power to the pressure control solenoid. HSD2 provides power to the shift solenoids. A normal function of the TCM is to run tests on each driver to ensure that it is functioning properly.

When the TCM detects a short to ground on HSD1, then DTC P1831 sets. DTC P1831 is a type C DTC.

DTC Descriptor

This diagnostic procedure supports the following DTC:

DTC P1831 Pressure Control (PC)/Shift Lock Solenoid Control Circuit Low Voltage

Conditions for Running the DTC

The engine run time is greater than 5 seconds.

Conditions for Setting the DTC

The TCM detects a short to ground on the HSD1 circuit when the HSD1 is commanded ON.

Action Taken When the DTC Sets

    • The TCM does not request the ECM to illuminate the malfunction indicator lamp (MIL).
    • SERVICE VEHICLE SOON displays on the driver information center (DIC).
    • The TCM commands maximum line pressure.
    • The TCM freezes transmission adaptive functions.
    • The TCM records the operating conditions when the Conditions for Setting the DTC are met. The TCM stores this information as a Failure Record.
    • The TCM stores DTC P1831 in TCM history.

Conditions for Clearing the DTC/DIC

    • The TCM clears the DIC when the condition no longer exists.
    • A scan tool can clear the DTC.
    • The TCM clears the DTC from TCM history if the vehicle completes 40 warm-up cycles without a non emission related diagnostic fault occurring.
    • The TCM cancels the DTC default actions when the ignition is OFF long enough in order to power down the TCM.

Step

Action

Value(s)

Yes

No

1

Did you perform the Diagnostic System Check - Vehicle?

--

Go to Step 2

Go to Diagnostic System Check - Vehicle

2

  1. Install a scan tool.
  2. Turn ON the ignition with the engine OFF.
  3. Important: 

       • Before clearing the DTC, use the scan tool in order to record the ECM and the TCM Failure Records. Using the Clear Info function erases the Failure Records from the ECM and TCM.
       • Using the Clear Info function erases stored DTCs in both the ECM and TCM.

  4. Record the DTC Freeze Frame and Failure Records.
  5. Clear the DTC.
  6. Turn OFF the ignition for at least 30 seconds.
  7. Start the engine.

Did DTC P1831 reset?

--

Go to Step 3

Go to Testing for Intermittent Conditions and Poor Connections

3

  1. Turn OFF the ignition.
  2. Disconnect the AT inline 20-way connector.
  3. Turn ON the ignition with the engine OFF.
  4. Clear the DTC.
  5. Turn OFF the ignition for at least 30 seconds.
  6. Start the engine. Additional DTCs may set.

Did DTC P1831 reset?

--

Go to Step 4

Go to Step 5

4

  1. Disconnect the TCM.
  2. Test the Pressure Control (PC) solenoid high control circuit between the AT inline 20-way connector and the TCM for a short to ground. Refer to Testing for Short to Ground .

Did you find a condition?

--

Go to Step 8

Go to Step 7

5

Test the PC solenoid high control circuit between the AT inline 20-way connector and the pressure control solenoid for a short to ground. Refer to Testing for Short to Ground .

Did you find a condition?

--

Go to Step 9

Go to Step 6

6

Replace the pressure control solenoid. Refer to Pressure Control Solenoid Valve Replacement .

Is the action complete?

--

Go to Step 10

--

7

Replace the TCM. Refer to Control Module References for replacement, setup and programming.

Is the action complete?

--

Go to Step 10

--

8

Repair the short to ground on the PC solenoid high control circuit. Refer to Testing for Intermittent Conditions and Poor Connections .

Is the action complete?

--

Go to Step 10

--

9

Replace the internal transmission electrical harness. Refer to Transmission Internal Electrical Harness Replacement .

Is the action complete?

--

Go to Step 10

--

10

Perform the following procedure in order to verify the repair:

  1. Select DTC.
  2. Select Clear Info.
  3. Start the engine.
  4. Select Specific DTC.
  5. Enter DTC P1831.

Has the test run and passed?

--

Go to Step 11

Go to Step 2

11

With the scan tool, observe the stored information, capture info and DTC info.

Does the scan tool display any DTCs that you have not diagnosed?

--

Go to Diagnostic Trouble Code (DTC) List - Vehicle

System OK