GM Service Manual Online
For 1990-2009 cars only
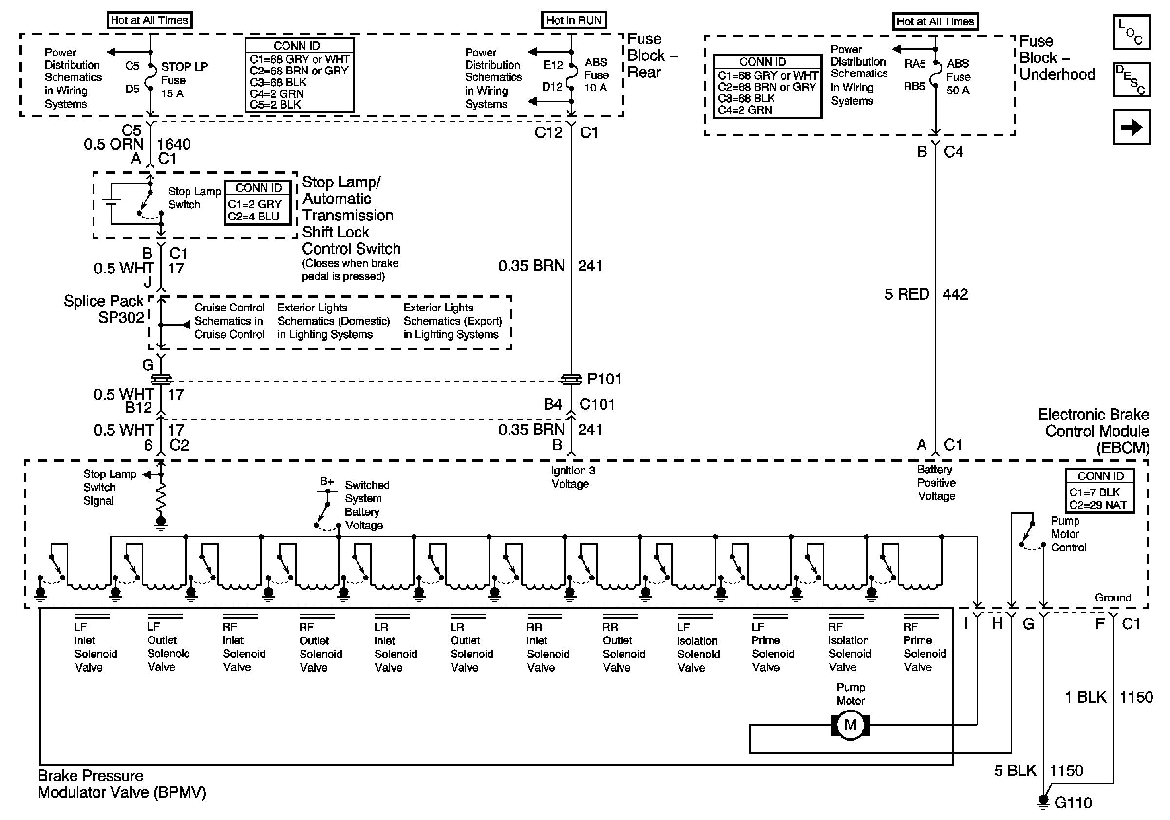
Figure 1:

Power, Ground, Stop Lamp Switch, Solenoid Valves, and Pump Motor


Object Number: 783615  Size: FS
Master Electrical Component List
ABS Description and Operation
Wheel Speed Sensors
Stop Lamp Switch
Stop Lamp Switch
PCM Controls and Class 2
Battery Feed to Fuse Block - Rear
Battery Feed to Fuse Block - Rear
Battery Feed to Fuse Block - Underhood
Figure 2:

Wheel Speed Sensors


Object Number: 788506  Size: FS
Master Electrical Component List
ABS Description and Operation
Vehicle Stability Enhancement System (JL4)
Power, Ground, Stop Lamp Switch, Solenoid Valves, and Pump Motor
Antilock Brake System Schematic Icons
Antilock Brake System Schematic Icons
Antilock Brake System Schematic Icons
Antilock Brake System Schematic Icons
Antilock Brake System Schematic Icons
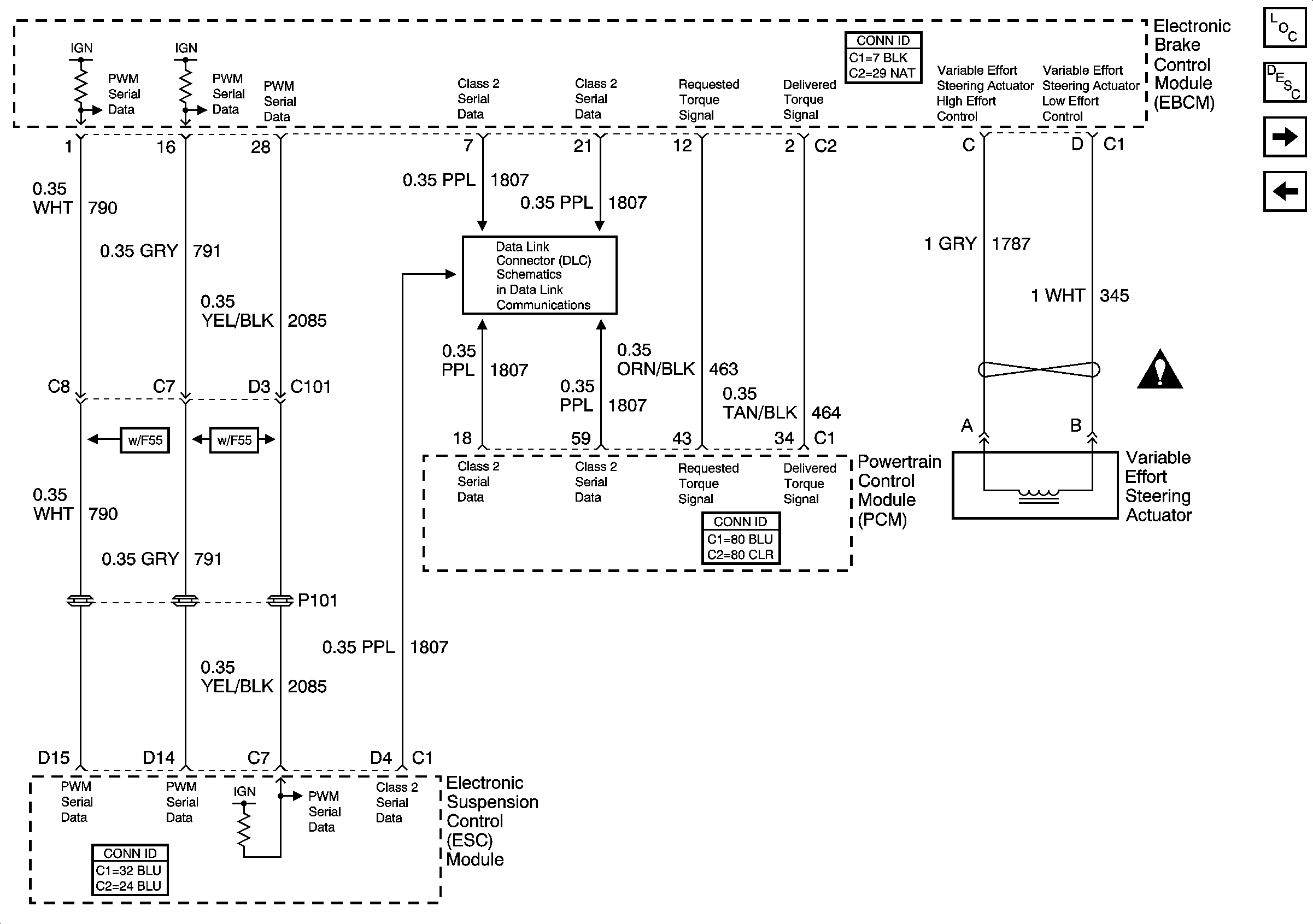
Figure 3:

Vehicle Stability Enhancement System (JL4)


Object Number: 642093  Size: FS
Master Electrical Component List
ABS Description and Operation
Suspension Inputs (w/F45 or F55), Class 2 and Variable Effort Steering
Wheel Speed Sensors
Figure 4:

Suspension Inputs (w/F45 or F55), Class 2, and Variable Effort Steering


Object Number: 788508  Size: FS
Master Electrical Component List
ABS Description and Operation
Traction Control Switch and ABS Indicators
Vehicle Stability Enhancement System (JL4)
Antilock Brake System Schematic Icons
Class 2 Serial Data Line (LH Drive) (1 of 2)
Figure 5:

Traction Control Switch and ABS Indicators


Object Number: 791994  Size: FS
Master Electrical Component List
ABS Description and Operation
Suspension Inputs (w/F45 or F55), Class 2 and Variable Effort Steering
G300
G300
Class 2 Serial Data Line (LH Drive) (1 of 2)