GM Service Manual Online
For 1990-2009 cars only
Makes
🢒
Cadillac
🢒
2003
🢒
Seville
🢒 Electric Actuators
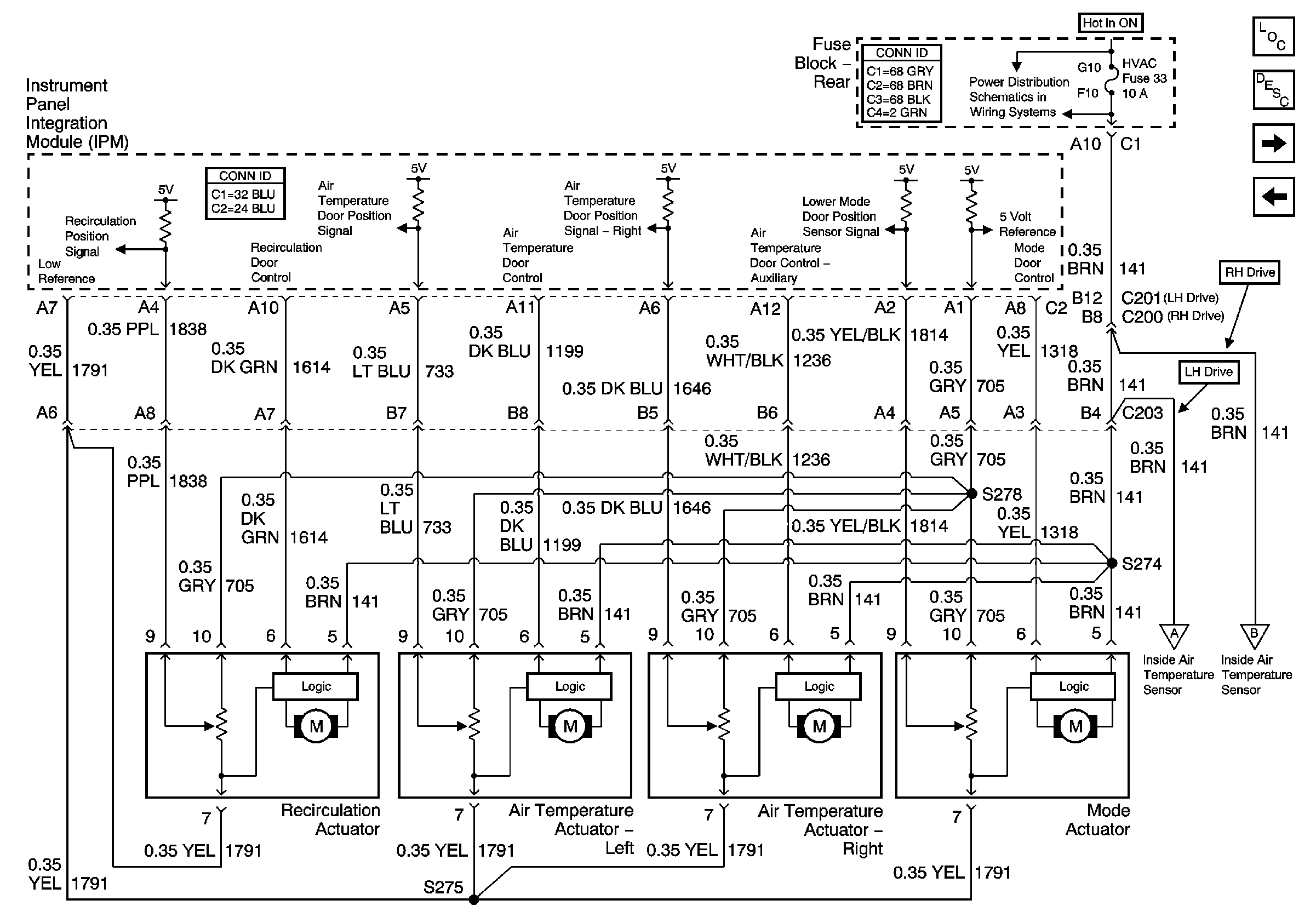
Electric Actuators
Electric Actuators
Master Electrical Component List
Air Delivery Description and Operation
Temperature Sensors (LH Drive)
A/C Compressor Clutch
Battery Feed to Fuse Block - Rear
Temperature Sensors (LH Drive)
Temperature Sensors (RH Drive)