GM Service Manual Online
For 1990-2009 cars only
Makes
🢒
Cadillac
🢒
1998
🢒
Seville - RHD
🢒
Body and Accessories
🢒
Keyless Entry
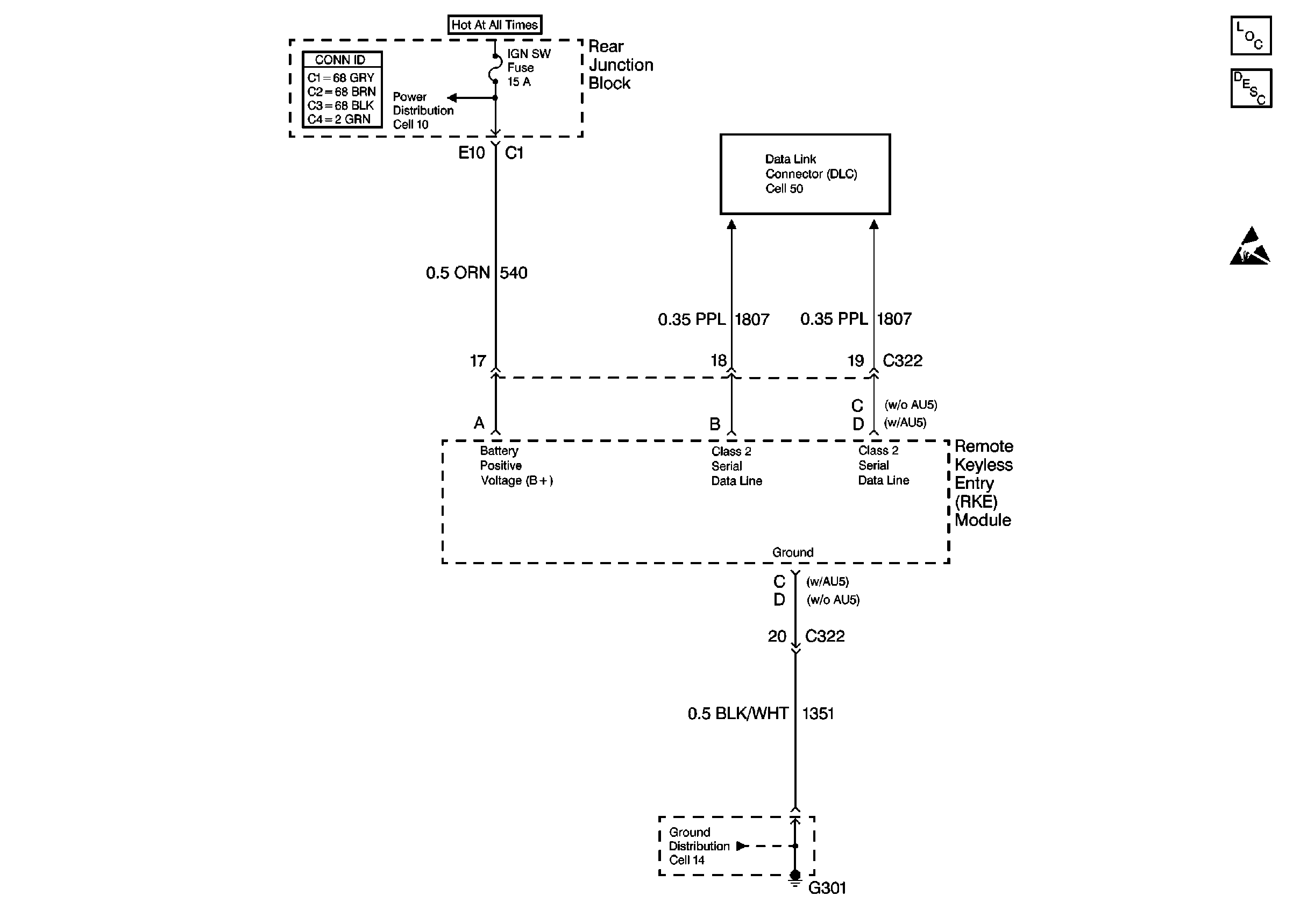
🢒 Keyless Entry Schematics
Cell 132
Keyless Entry Components
Keyless Entry System Circuit Description
Handling ESD Sensitive Parts Notice
Cell 10: IGN SW, HTDST LR, HTDST RR, HTDST LF, and HTDST RF Fuses
Cell 50: Class Serial Data Line 1 of 2
Cell 14: G301