GM Service Manual Online
For 1990-2009 cars only
Makes
🢒
Cadillac
🢒
2007
🢒
XLR
🢒 Electronic Throttle Controls
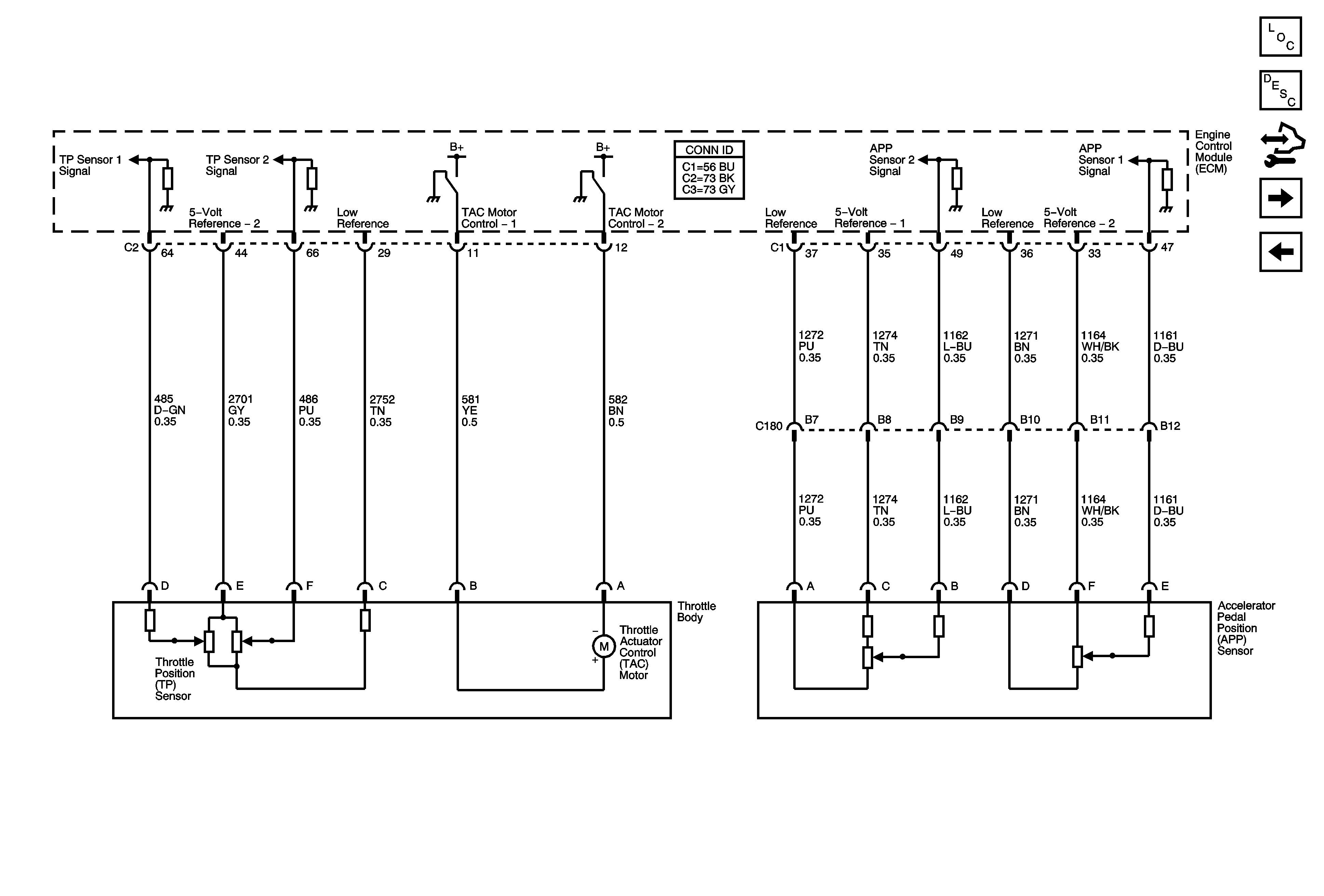
Electronic Throttle Controls
Electronic Throttle Controls
Master Electrical Component List
Engine Control Module Description
Control Module References
Ignition Coils Bank 1
Heated Oxygen Sensors