GM Service Manual Online
For 1990-2009 cars only
Makes
🢒
Chevrolet
🢒
1999
🢒
Chevy P12 Chassis
🢒 Cell 10: Junction Block
Cell 10: Junction Block
Cell 10: Junction Block
Power and Grounding Components
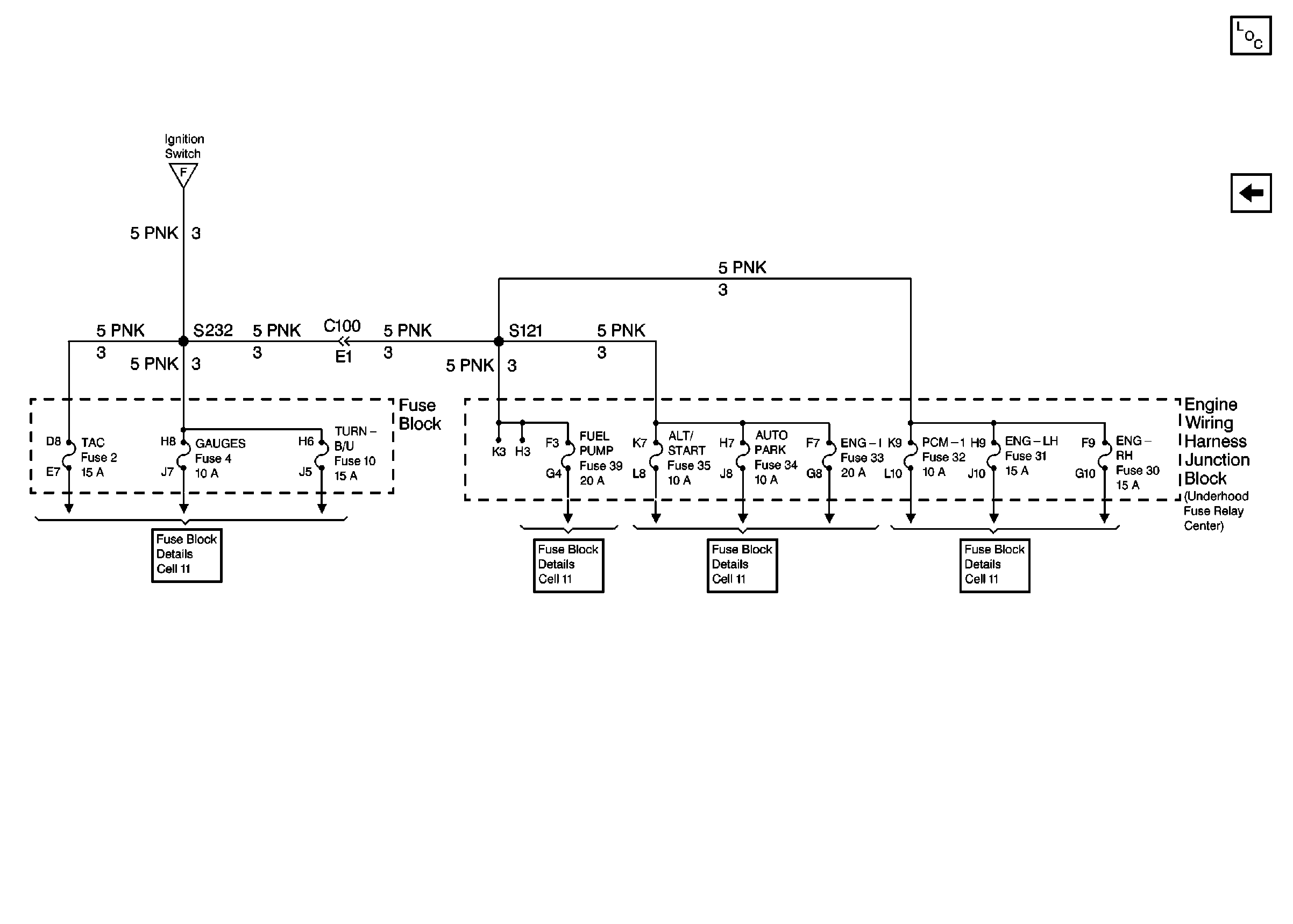
Cell 10: Ignition Switch, Fuse Block
Cell 10: Ignition Switch, Fuse Block
Cell 11: GAUGES, TURN/BU, and TAC fuses
Cell 11: HORN, BRAKE LPS, PCM BATT, A/C CMPR, and FUEL PUMP fuses
Cell 11: ALT/START, AUTO PARK, and ENG-I fuses
Cell 11: ENG-LH, PCM-I, and ENG-RH fuses