GM Service Manual Online
For 1990-2009 cars only
Makes
🢒
Chevrolet
🢒
2004
🢒
Colorado Pickup - 2WD
🢒
Accessories
🢒
Entertainment
🢒 Radio/Audio System Schematics
Figure
1:
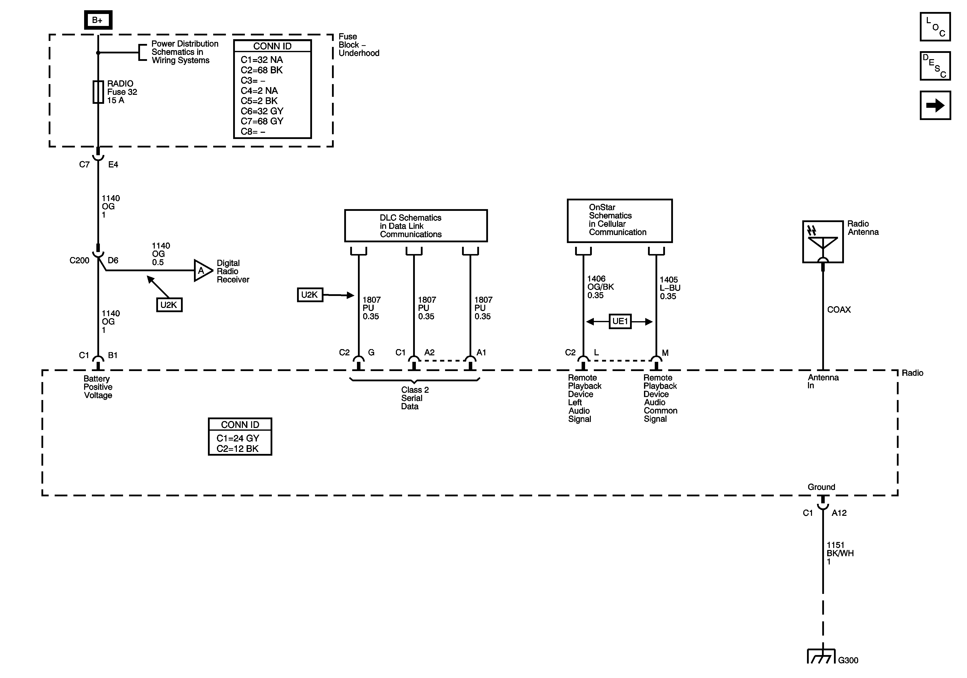
Power, Ground, and DLC
Master Electrical Component List
Radio/Audio System Description and Operation
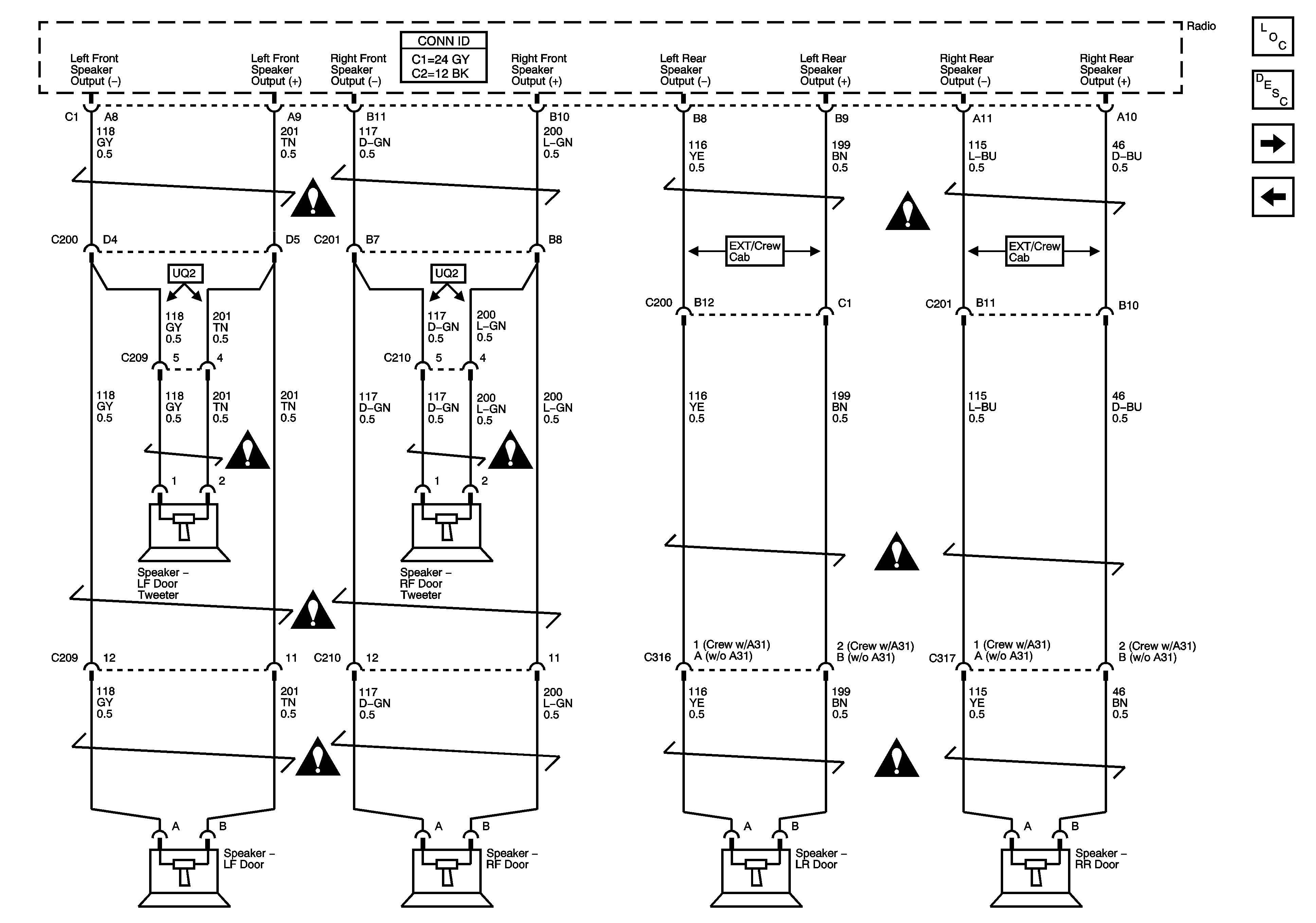
Speakers
B+ Bus - Underhood Fuse Block
Digital Radio (U2K)
Data Link Connector (DLC) Schematics
OnStar Schematics
G300, G301, and G302
Figure
2:
Speakers
Master Electrical Component List
Radio/Audio System Description and Operation
Digital Radio (U2K)
Power, Ground, and DLC
Entertainment Schematic Icons
Entertainment Schematic Icons
Entertainment Schematic Icons
Entertainment Schematic Icons
Entertainment Schematic Icons
Entertainment Schematic Icons
Entertainment Schematic Icons
Entertainment Schematic Icons
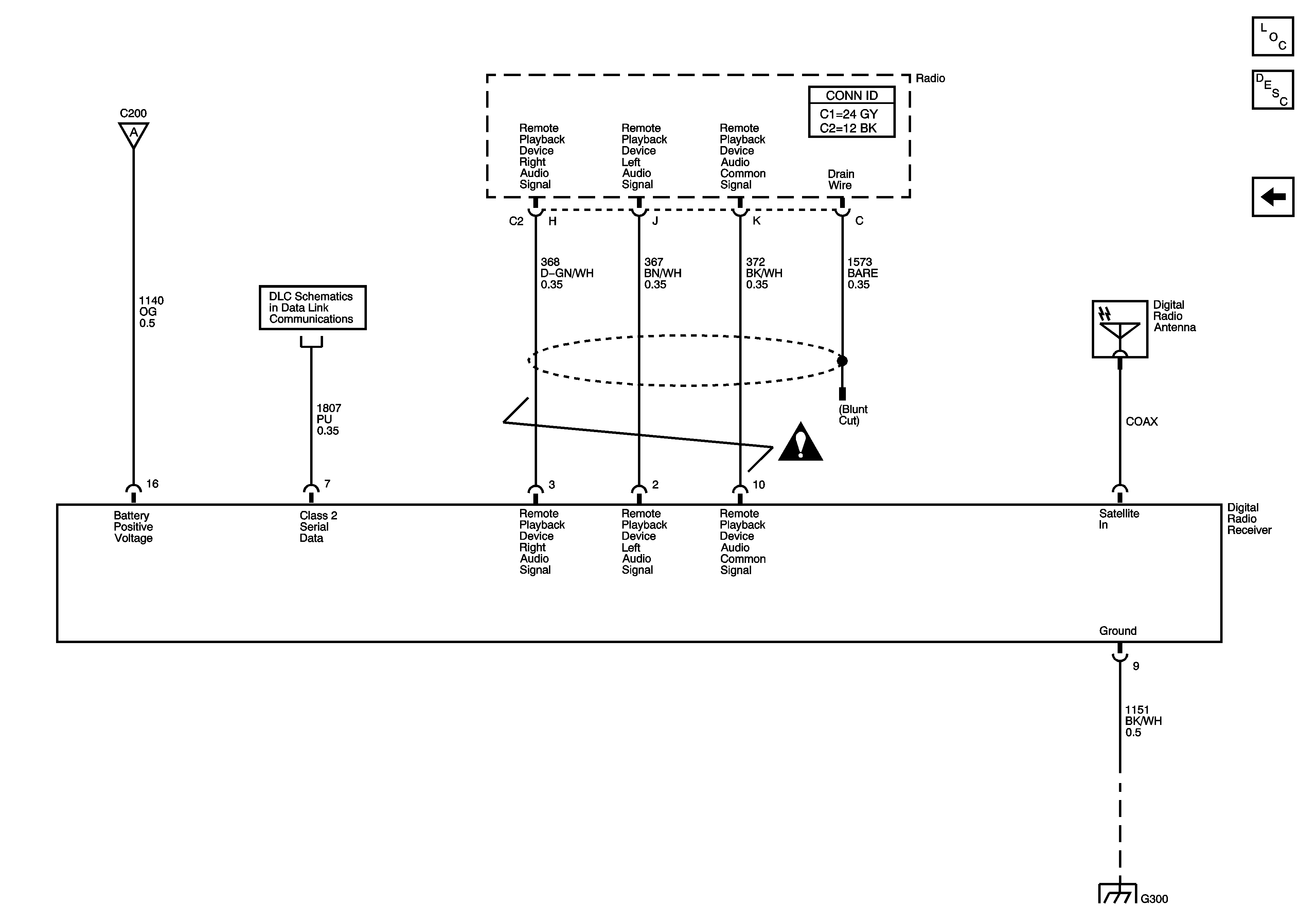
Figure
3:
Digital Radio - U2K
Master Electrical Component List
Radio/Audio System Description and Operation
Speakers
Power, Ground, and DLC
Data Link Connector (DLC) Schematics
Entertainment Schematic Icons
G300, G301, and G302