GM Service Manual Online
For 1990-2009 cars only
Makes
🢒
Chevrolet
🢒
2008
🢒
Epica
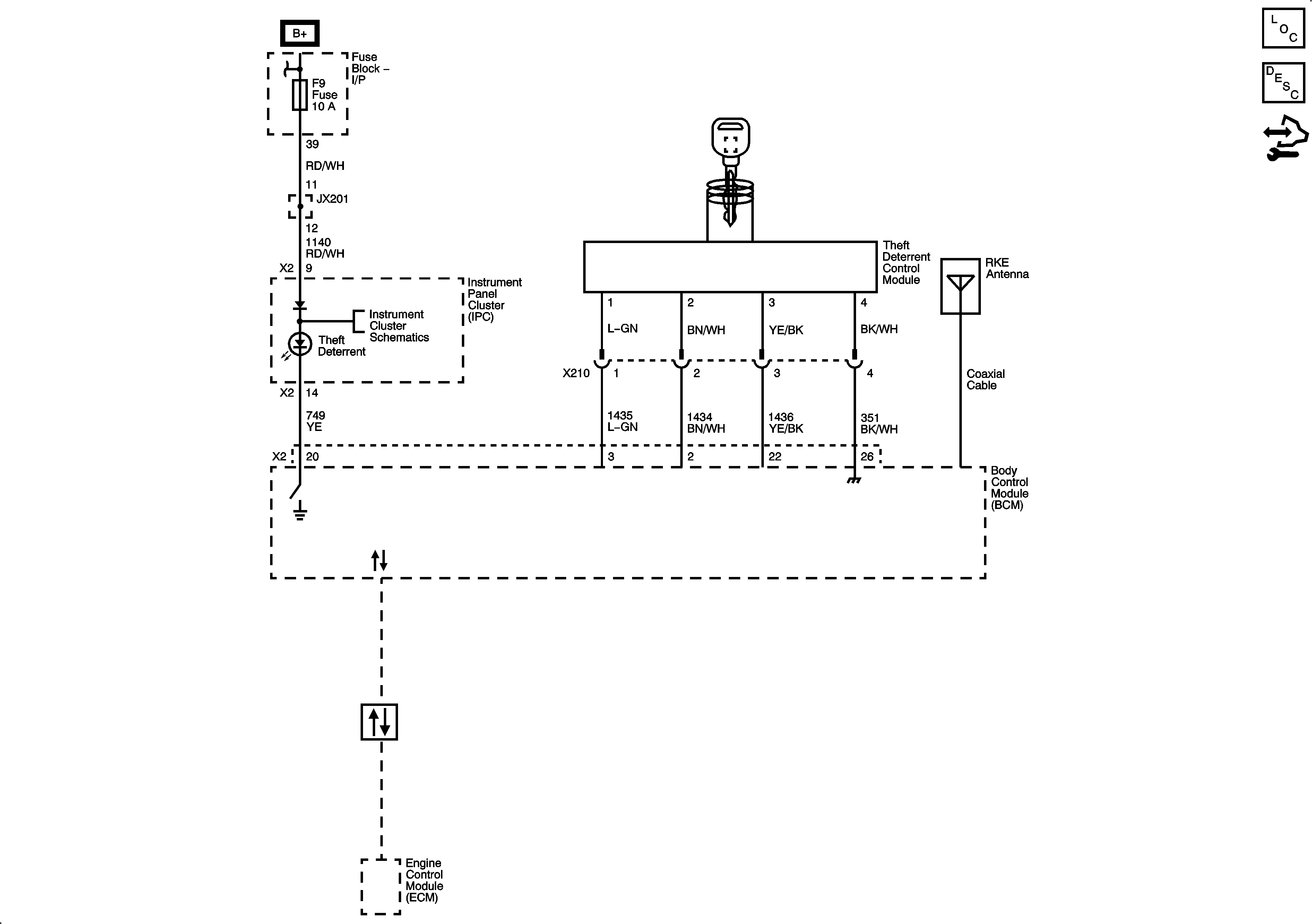
🢒 Immobilizer Schematics
Immobilizer Schematics
Master Electrical Component List
Immobilizer Description and Operation
Control Module References
Fuse Block - I/P F8, F9, F15, F22, F23 Fuses
Indicators 2 of 3
Power, Ground, Class 2