GM Service Manual Online
For 1990-2009 cars only
Makes
🢒
Chevrolet
🢒
2008
🢒
Epica
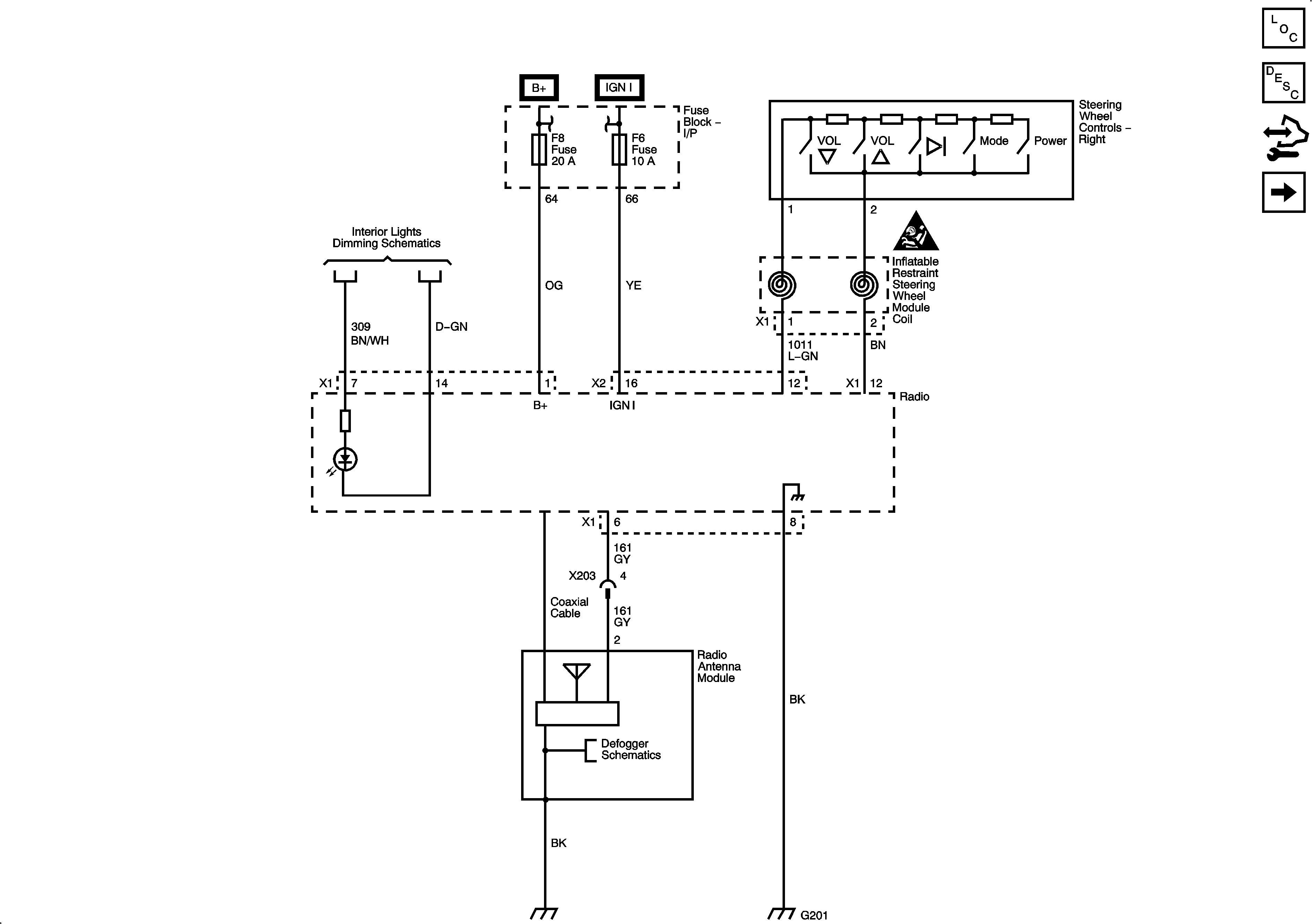
🢒 Radio Power, Ground, Steering Wheel Controls, Antenna
Radio Power, Ground, Steering Wheel Controls, Antenna
Radio Power, Ground, Steering Wheel Controls, Antenna
Master Electrical Component List
Radio/Audio System Description and Operation
Control Module References
LHD Speakers (UW6)
Fuse Block - I/P F8, F9, F15, F22, F23 Fuses
Ignition Switch
Illumination
SIR Caution for Zoning
Defogger Schematics
G103, G105, G108 (Diesel), G201